14407 W Lake Ridge Drive, Eagle River, AK 99577
Local realty services provided by:Better Homes and Gardens Real Estate Dream Makers
14407 W Lake Ridge Drive,Eagle River, AK 99577
$625,000
- 3 Beds
- 2 Baths
- 2,100 sq. ft.
- Multi-family
- Active
Listed by: michael tavoliero, derek j. hert
Office: core real estate group, llc.
MLS#:26-1510
Source:AK_AMLS
Price summary
- Price:$625,000
- Price per sq. ft.:$297.62
About this home
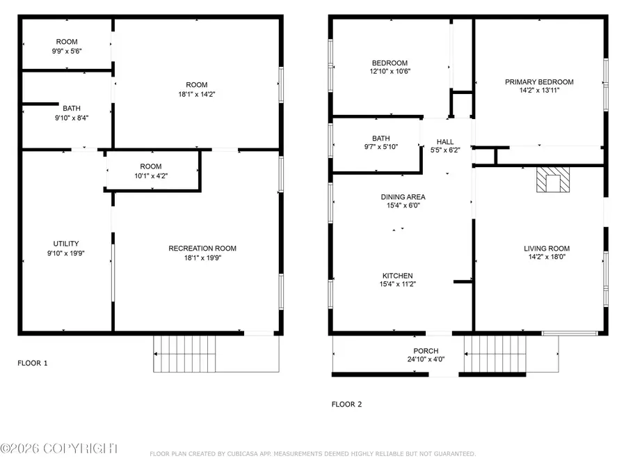
Amazing waterfront opportunity on Lower Fire Lake! This wonderful lakefront raised ranch offers versatility with duplex use, floatplane dock potential w/ over 120 ft waterfront (BTV). Enjoy the layout and thoughtful extras upstairs, back deck with lake views private retreat. Rare chance for property on the lake.Extras include: Solid oak hardwood floors, Solid cherry kitchen cabinets upstairs, granite countertops, farm sink with pro-style pre-rinse sprayer faucet, GE Cafe stove and refrigerator, Miele dishwasher, GE beverage cooler, Tile bathroom upstairs with Kohler fixtures and heated tub, Wrap around upper deck and lower level deck with sauna, Solid copper plumbing, 200 amp electrical service panel with grounded wiring and generator safety switch, Certified "Four Star Plus" energy rating, High efficiency forced air gas furnace and new high efficiency water heater, Pella wood casement windows, Fiber optic cable, Independent basement apartment for duplex potential. The shop/storage space provides plenty of space for storage and work shop. The roof was replaced in about 2010. COSA completed...
Contact an agent
Home facts
- Year built:1949
- Listing ID #:26-1510
- Added:36 day(s) ago
- Updated:March 19, 2026 at 02:37 PM
Rooms and interior
- Bedrooms:3
- Total bathrooms:2
- Full bathrooms:2
- Flooring:Carpet, Concrete, Laminate
- Living area:2,100 sq. ft.
Heating and cooling
- Heating:Forced Air
Structure and exterior
- Roof:Asphalt, Shingle
- Year built:1949
- Building area:2,100 sq. ft.
- Lot area:0.41 Acres
- Lot Features:City Lot
- Construction Materials:Frame, Wood Siding
- Exterior Features:Dock
Schools
- High school:Chugiak
- Middle school:Mirror Lake
- Elementary school:Fire Lake
Utilities
- Water:Private, Well
- Sewer:Septic Tank
Finances and disclosures
- Price:$625,000
- Price per sq. ft.:$297.62
- Tax amount:$4,808
Features and amenities
- Appliances:Washer/Dryer
- Laundry features:Washer/Dryer, Washer/Dryer Hookup
Parking
- Parking description:RV Access/Parking
New listings near 14407 W Lake Ridge Drive
- New
$524,900Active4 beds 3 baths1,940 sq. ft.16427 Davis Street, Eagle River, AK 99577
MLS# 26-2911Listed by: RE/MAX DYNAMIC PROPERTIES - EAGLE RIVER BRANCH - Coming Soon
$795,000Coming Soon4 beds 3 baths4441 Panther, Eagle River, AK 99577
MLS# 26-2908Listed by: RE/MAX DYNAMIC PROPERTIES - New
$275,000Active5 beds 3 baths2,880 sq. ft.12705 Tandy Place, Eagle River, AK 99577
MLS# 26-2877Listed by: CENTURY 21 REALTY SOLUTIONS - EAGLE RIVER - Coming SoonOpen Sat, 1 to 4pm
$475,000Coming Soon4 beds 2 baths19311 Trail Bay Drive, Eagle River, AK 99577
MLS# 26-2885Listed by: RMG REAL ESTATE - New
$775,000Active4 beds 2 baths2,377 sq. ft.25413 Mc Intyre Road, Eagle River, AK 99577
MLS# 26-2867Listed by: HERRINGTON AND COMPANY, LLC - New
$1,875,000Active4 beds 5 baths6,071 sq. ft.18455 Mccrary Road, Eagle River, AK 99577
MLS# 26-2863Listed by: RE/MAX DYNAMIC PROPERTIES - EAGLE RIVER BRANCH
$1,031,600Pending4 beds 4 baths3,455 sq. ft.16123 Parksville Drive, Eagle River, AK 99577
MLS# 26-2858Listed by: ELITE REAL ESTATE GROUP- Coming Soon
$639,000Coming Soon3 beds 3 baths13137 Rosser Drive, Eagle River, AK 99577
MLS# 26-2849Listed by: FIREBIRD REALTY, LLC - Coming Soon
$1,100,000Coming Soon5 beds 4 baths27365 Vantage Avenue, Eagle River, AK 99577
MLS# 26-2826Listed by: SOMERS SOTHEBY'S INTERNATIONAL REALTY EAGLE RIVER - New
$529,500Active5 beds 2 baths1,632 sq. ft.10608 Sanford Circle, Eagle River, AK 99577
MLS# 26-2788Listed by: RE/MAX DYNAMIC PROPERTIES - EAGLE RIVER BRANCH