808 W Canal Drive, Gulf Shores, AL 36542
Local realty services provided by:Better Homes and Gardens Real Estate Main Street Properties
808 W Canal Drive,Gulf Shores, AL 36542
$2,400,000
- 4 Beds
- 4 Baths
- 2,982 sq. ft.
- Single family
- Active
Listed by: amy cunyCELL: 251-709-4331
Office: bellator real estate, llc. fair
MLS#:389263
Source:AL_BCAR
Price summary
- Price:$2,400,000
- Price per sq. ft.:$804.83
About this home
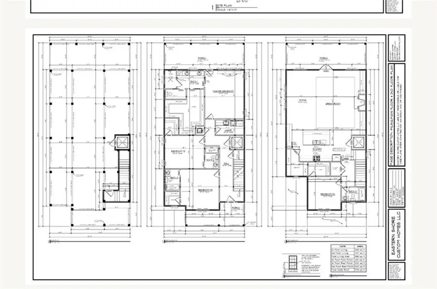
Currently under construction by ARK Builders, this Gold Fortified waterfront residence is designed for those who appreciate elevated craftsmanship and modern coastal luxury. With an expected completion in March 2026, every detail of this 2,982-square-foot home reflects thoughtful design and high-end finishes throughout. The home features four bedrooms and four full baths, with the primary suite, bedrooms two and three, and a well-appointed laundry room with cast iron sink located on the second level. The primary suite includes a spacious 10x30 private balcony overlooking the waterway, dual vanities, linen cabinet, water closet, and a custom walk-in closet with built-in dressers. The top level showcases an open kitchen, dining, and great room layout. The chef’s kitchen is outfitted with a 48-inch commercial-grade gas range, quartz countertops, a built-in coffee system with direct waterline, a walk-in pantry with custom cabinetry, and an elevated design that blends function with sophistication. Additional features include 10-foot ceilings, 8-foot doors, hardwood flooring throughout the main living spaces, and tile in baths and laundry. Each upper level spans the width of the home with fully tiled waterside decks, offering seamless indoor-outdoor flow. Luxe plumbing fixtures, designer lighting, impact windows, a gas tankless water heater, and elevator access to both upper floors complete this home’s exceptional offering. The property has a boat dock with water and power with up to 30' boat lift as well as a whole home generator. There is an inground gunite saltwater pool and fence around the back of the home. Every space has been crafted with precision and an uncompromising attention to detail, setting a new standard for modern waterfront living in Gulf Shores. Listing agent is a licensed real estate agent in the state of Alabama and is a member of the selling entity. Buyer to verify all information during due diligence....
Contact an agent
Home facts
- Year built:2026
- Listing ID #:389263
- Added:148 day(s) ago
- Updated:March 24, 2026 at 02:14 PM
Rooms and interior
- Bedrooms:4
- Total bathrooms:4
- Full bathrooms:4
- Flooring:Tile, Wood
- Dining Description:Breakfast Bar
- Bathrooms Description:En-Suite
- Kitchen Description:Dishwasher, Disposal, Gas Range, Microwave, On Third Level
- Bedroom Description:Balcony/Patio, Master Bedroom on Second Level, Split Bedroom Plan, Walk-In Closet(s)
- Living area:2,982 sq. ft.
Heating and cooling
- Cooling:Ceiling Fan(s)
- Heating:Heat Pump
Structure and exterior
- Roof:Metal
- Year built:2026
- Building area:2,982 sq. ft.
- Lot area:0.18 Acres
- Lot Features:Boat Lift, Interior Lot, Less than 1 acre, Level
- Architectural Style:Raised Beach
- Construction Materials:Concrete Board, Fortified-Gold, Wood Frame
- Exterior Features:Covered, Front Porch, Irrigation Sprinkler, Outdoor Shower, Porch-Open, Storage, Termite Contract
- Foundation Description:Pilings, Slab
- Levels:2 Story
Schools
- High school:Gulf Shores High
- Middle school:Gulf Shores Middle
- Elementary school:Gulf Shores Elementary
Utilities
- Sewer:Public Sewer
Finances and disclosures
- Price:$2,400,000
- Price per sq. ft.:$804.83
- Tax amount:$3,500
Features and amenities
- Appliances:Dishwasher, Disposal, Gas Range, Gas Water Heater, Microwave, Tankless Water Heater
- Laundry features:Inside, Level 2
- Amenities:Carbon Monoxide Detector(s), Double Pane Windows, ENERGY STAR Qualified Windows, Elevator, Gas Water Heater, High Ceilings, Tankless Water Heater
- Pool features:In Ground
Parking
- Total parking spaces:5
- Parking description:Automatic Garage Door
- Garage:Yes
- Garage spaces:5
New listings near 808 W Canal Drive
- New
$399,900Active3 beds 2 baths1,797 sq. ft.325 Dawson Drive, Gulf Shores, AL 36542
MLS# 394162Listed by: RE/MAX PARADISE - New
$1,050,000Active4 beds 4 baths1,745 sq. ft.0 Verano Drive, Gulf Shores, AL 36542
MLS# 394163Listed by: RE/MAX PARADISE - New
$1,350,000Active4 beds 4 baths2,020 sq. ft.0 Estival Place, Gulf Shores, AL 36542
MLS# 394164Listed by: RE/MAX PARADISE - New
$1,168,900Active5 beds 4 baths2,498 sq. ft.484 Our Road, Gulf Shores, AL 36542
MLS# 394145Listed by: ASHURST & NIEMEYER LLC - New
$315,000Active3 beds 3 baths1,570 sq. ft.1701 Regency Road #120, Gulf Shores, AL 36542
MLS# 394149Listed by: N8 REAL ESTATE - New
$327,500Active2 beds 2 baths856 sq. ft.728 Beach Boulevard #121, Gulf Shores, AL 36542
MLS# 7741714Listed by: KELLER WILLIAMS MOBILE - New
$342,500Active2 beds 2 baths792 sq. ft.728 Beach Boulevard #226, Gulf Shores, AL 36542
MLS# 7741727Listed by: KELLER WILLIAMS MOBILE - New
$895,000Active3 beds 4 baths2,617 sq. ft.9261 Genipa Way, Gulf Shores, AL 36542
MLS# 394126Listed by: RE/MAX PARADISE - New
$327,500Active2 beds 2 baths856 sq. ft.728 W Beach Boulevard #121, Gulf Shores, AL 36542
MLS# 394131Listed by: KELLER WILLIAMS - MOBILE - New
$342,500Active2 beds 2 baths792 sq. ft.728 W Beach Boulevard #226, Gulf Shores, AL 36542
MLS# 394132Listed by: KELLER WILLIAMS - MOBILE