8598 Boulder Brook Road Nw, Madison, AL 35756
Local realty services provided by:Better Homes and Gardens Real Estate Southern Branch
8598 Boulder Brook Road Nw,Madison, AL 35756
$538,022
- 3 Beds
- 2 Baths
- 2,121 sq. ft.
- Single family
- Pending
Listed by: brenda hinshaw
Office: covington & company, inc.
MLS#:21905281
Source:AL_NALMLS
Price summary
- Price:$538,022
- Price per sq. ft.:$253.66
- Monthly HOA dues:$50
About this home
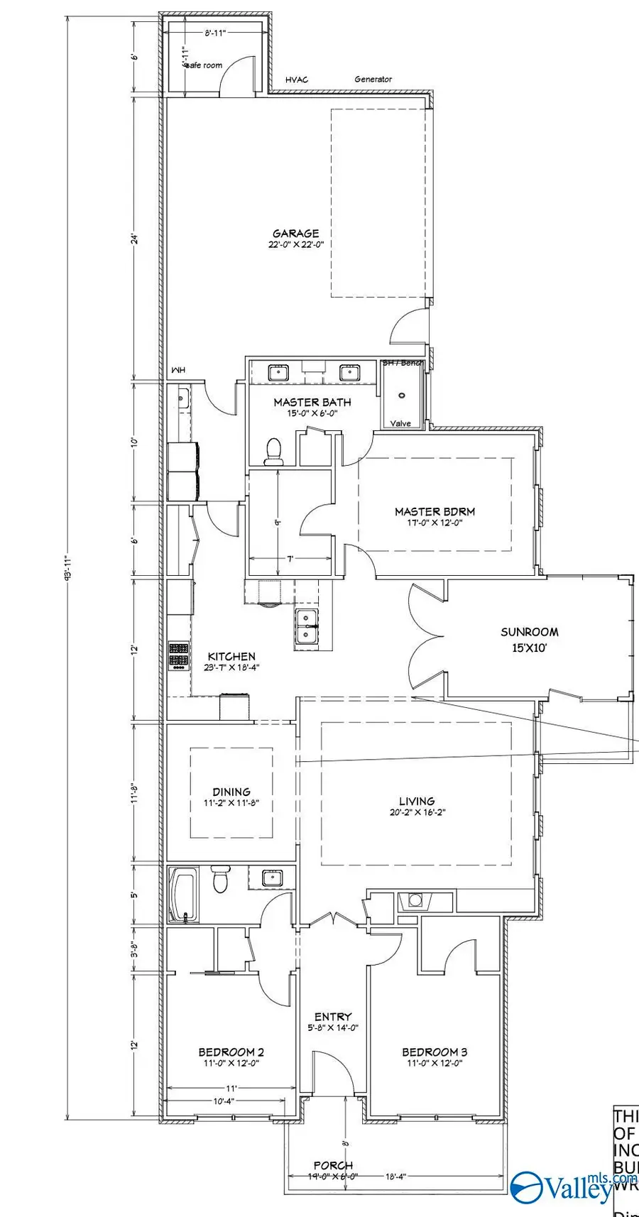
Under Construction-Custom Bellewood Cottage, high end features with 10+ ceilings, 7" crown, Wainscoting in Dining, 8'x4' Mahogany Front Door, 8' interior doors, 9" baseboards, Trey Ceilings, Custom Kitchen cabinets, Gas range, dbl ovens, Wall MW. Custom FP with built-ins, Hardwood throughout, Quartz ctops in kit/baths/laundry. Wood Shelve in all closets. Lg Owner's suite w/walk in closet with custom built wood closet system, Master bath w/dbl vanities, 6 ft shower. 10 ft cabs in Laundry w/sink. Added 17x12 Sunroom, Stained wood ceilings on front porch & Sunroom, exterior pavers, 2 car garage plus Safe Room.
Contact an agent
Home facts
- Listing ID #:21905281
- Added:7 day(s) ago
- Updated:December 14, 2025 at 08:13 AM
Rooms and interior
- Bedrooms:3
- Total bathrooms:2
- Full bathrooms:1
- Living area:2,121 sq. ft.
Heating and cooling
- Cooling:Central Air
- Heating:Central Heater, Natural Gas
Structure and exterior
- Building area:2,121 sq. ft.
Schools
- High school:Columbia High
- Middle school:Williams
- Elementary school:Williams
Utilities
- Water:Public
- Sewer:Public Sewer
Finances and disclosures
- Price:$538,022
- Price per sq. ft.:$253.66
New listings near 8598 Boulder Brook Road Nw
$1,200,480Pending5 beds 5 baths5,476 sq. ft.131 Bellawoods Drive, Madison, AL 35756
MLS# 21905731Listed by: WOODLAND REAL ESTATE, INC.- New
$325,000Active3 beds 3 baths1,742 sq. ft.1133 Cathedral Circle #1133, Madison, AL 35758
MLS# 21905729Listed by: NEW SOUTH REALTORS - New
$385,000Active4 beds 2 baths2,253 sq. ft.205 Healey Drive, Madison, AL 35756
MLS# 21905730Listed by: CRYE-LEIKE REALTORS - MADISON - New
$800,000Active5 beds 5 baths2,929 sq. ft.862 Highland Drive, Madison, AL 35758
MLS# 21905670Listed by: AVALYN - New
$325,000Active3 beds 3 baths2,254 sq. ft.131 Castleton Drive, Madison, AL 35749
MLS# 21905652Listed by: CAPSTONE REALTY - Open Sun, 8 to 10pmNew
$318,000Active3 beds 2 baths1,588 sq. ft.102 Justice Way, Madison, AL 35758
MLS# 21905472Listed by: RE/MAX UNLIMITED - Open Sun, 8 to 10pmNew
$1,199,000Active6 beds 6 baths6,112 sq. ft.100 Windy Way Drive, Madison, AL 35758
MLS# 21905577Listed by: LEGEND REALTY - New
$245,000Active2 beds 2 baths1,493 sq. ft.138 Stone Meadow Lane, Madison, AL 35758
MLS# 21905579Listed by: CAPSTONE REALTY - New
$387,000Active4 beds 3 baths2,275 sq. ft.226 Jackies Terrace, Madison, AL 35758
MLS# 21905558Listed by: EAGLE REAL ESTATE, INC - New
$475,000Active-- beds -- baths3,694 sq. ft.149 Angela Drive, Madison, AL 35758
MLS# 21905524Listed by: CAPSTONE REALTY LLC HUNTSVILLE