1894 E Fiji Street, Fayetteville, AR 72701
Local realty services provided by:Better Homes and Gardens Real Estate Journey
Listed by: d.r. horton team
Office: d.r. horton realty of arkansas, llc.
MLS#:1325049
Source:AR_NWAR
Price summary
- Price:$500,000
- Price per sq. ft.:$200.72
- Monthly HOA dues:$24.58
About this home
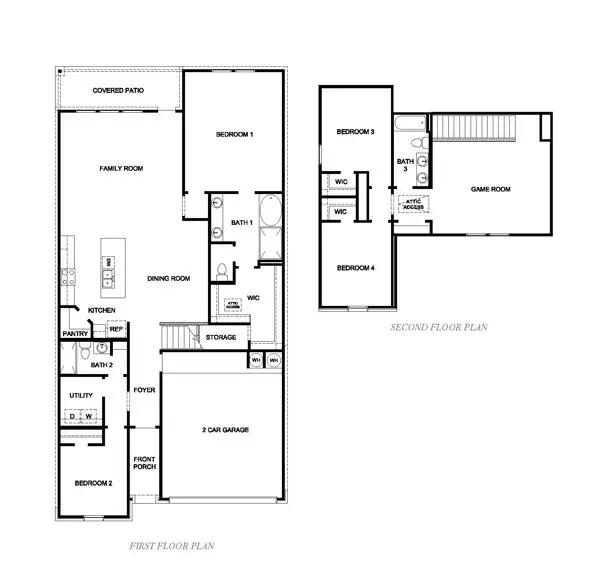
The Marvelous Mitchell plan in Pine Hollow! This community offers two-story homes with spacious living areas, perfect for entertaining and everyday comfortable living. This home features 4 bedrooms, 3 full baths, & a game room upstairs! You'll enjoy a beautiful modern electric fireplace with a poplar mantle in the living room! Full oak Tread Staircase with black modern handrails-Bathroom 1 will be tile flooring- Beautiful Wood Laminate click LVP first and second floor! In the kitchen, you’ll find stunning quartz countertops, tile backsplash, and a gas range. The primary bedroom has an ensuite complete with quartz countertops, dual sinks, freestanding tub and a walk-in shower with tiled walls! Ceiling fans in the bedrooms, living room and game room! The exterior features brick and Hardie® siding (per plan) with a covered patio (per plan). The programmable thermostat allows you to effortlessly control your environment with the touch of a button! Taxes and parcel TBD.
Contact an agent
Home facts
- Year built:2026
- Listing ID #:1325049
- Added:198 day(s) ago
- Updated:April 26, 2026 at 07:49 AM
Rooms and interior
- Bedrooms:4
- Total bathrooms:3
- Full bathrooms:3
- Rooms Total:11
- Flooring:Laminate, Luxury Vinyl Plank, Simulated Wood, Tile
- Kitchen Description:Electric Water Heater, Garbage Disposal, Gas Range, Microwave, Pantry, Plumbed For Ice Maker
- Living area:2,491 sq. ft.
Heating and cooling
- Cooling:Central Air, Electric
- Heating:Central, Gas
- Central air:Yes
Structure and exterior
- Roof:Architectural, Shingle
- Year built:2026
- Building area:2,491 sq. ft.
- Lot area:0.13 Acres
- Lot Features:Subdivision
- Architectural Style:Traditional
- Construction Materials:Brick
- Exterior Features:Covered
- Foundation Description:Slab
- Levels:2 Story
Utilities
- Water:Public, Water Available
- Sewer:Sewer Available
Finances and disclosures
- Price:$500,000
- Price per sq. ft.:$200.72
- Tax amount:$450
Features and amenities
- Appliances:Disposal, Electric Water Heater, Gas Range, Microwave, Plumbed For Ice Maker
- Laundry features:Dryer Hookup, Washer Hookup
- Amenities:Ceiling Fans, Pantry, Programmable Thermostat, Quartz Counters
Parking
- Parking description:Attached, Concrete Driveway, Garage, Garage Door Opener
- Garage:Yes
New listings near 1894 E Fiji Street
- New
$100,000Active5 Acres10655 Rocky Creek Road, Fayetteville, AR 72701
MLS# 1344128Listed by: EXIT REALTY HARPER CARLTON GROUP - New
$450,000Active4 beds 2 baths2,016 sq. ft.4490 W Wyoming Drive, Fayetteville, AR 72704
MLS# 1344266Listed by: BROYLES & ASSOCIATES - New
$299,900Active3 beds 2 baths1,404 sq. ft.2416 Sara Alice Court, Fayetteville, AR 72701
MLS# 1344264Listed by: KELLER WILLIAMS PLATINUM REALTY - New
$375,000Active3 beds 2 baths1,811 sq. ft.739 W Partridge Drive, Fayetteville, AR 72701
MLS# 1344106Listed by: FATHOM REALTY - New
$234,000Active2.6 Acrestract#2 White Oak Road, Fayetteville, AR 72704
MLS# 1344240Listed by: PAK HOME REALTY - New
$363,900Active3 beds 2 baths1,742 sq. ft.1572 N Plantation Avenue, Fayetteville, AR 72704
MLS# 1340758Listed by: KELLER WILLIAMS MARKET PRO REALTY - New
$435,000Active2 beds 3 baths1,280 sq. ft.239 N Fletcher Avenue, Fayetteville, AR 72701
MLS# 1343155Listed by: NAVIGATE REAL ESTATE - New
$839,000Active3 beds 3 baths3,136 sq. ft.610 Winding Spring Drive, Fayetteville, AR 72703
MLS# 1343627Listed by: WEICHERT, REALTORS GRIFFIN COMPANY BENTONVILLE - New
$370,000Active2 beds 1 baths1,356 sq. ft.525 S School #430, Fayetteville, AR 72701
MLS# 1344200Listed by: COLLIER & ASSOCIATES - New
$335,000Active3 beds 3 baths1,320 sq. ft.3179 W Tulsa Street, Fayetteville, AR 72704
MLS# 1344228Listed by: MCNAUGHTON REAL ESTATE