2055 W Black Ridge Tr Road #LOT 1, Prescott, AZ 86305
Local realty services provided by:Better Homes and Gardens Real Estate BloomTree Realty
2055 W Black Ridge Tr Road #LOT 1,Prescott, AZ 86305
$325,000
- 1.58 Acres
- Lots / Land
- Active
Listed by: heidi fisher
Office: iannelli and associates
MLS#:6984877
Source:ARMLS
Price summary
- Price:$325,000
- Monthly HOA dues:$33.33
About this home
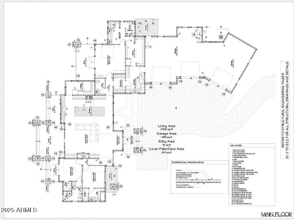
Luxury Custom Home Opportunity in Stringfield's Exclusive Gated Community Experience elevated Arizona living on this exceptional 1.58-acre homesite in the prestigious Stringfield community. Lot 1 offers breathtaking, unobstructed views of the San Francisco Peaks and the surrounding valley — a truly stunning backdrop for your future dream home. Site preparation has already begun, with grubbing completed for the homesite. Grading and engineered drainage plans are pending approval, streamlining your path to construction. Included with the property are submitted city plans for a thoughtfully designed 2,706 sq. ft. custom residence featuring 3 bedrooms and 3.5 bathrooms. The open-concept layout blends luxury and functionality, ideal for both everyday living and entertaining.
Contact an agent
Home facts
- Listing ID #:6984877
- Updated:April 24, 2026 at 02:54 PM
Structure and exterior
- Lot area:1.58 Acres
- Lot Features:Gated Community
Schools
- High school:Prescott High School
- Middle school:Granite Mountain Middle School
- Elementary school:Granite Mountain Middle School
Utilities
- Water:City Franchise
Finances and disclosures
- Price:$325,000
- Tax amount:$121 (2025)
New listings near 2055 W Black Ridge Tr Road #LOT 1
- New
$699,000Active2 beds 2 baths1,169 sq. ft.5050 E Herrin Hollow Lane, Prescott, AZ 86303
MLS# 7018593Listed by: MY HOME GROUP REAL ESTATE - New
$720,000Active3 beds 2 baths1,938 sq. ft.3457 E Sanddraw Circle, Prescott, AZ 86303
MLS# 1081412Listed by: WEST USA REALTY OF PRESCOTT - New
$789,000Active3 beds 4 baths3,708 sq. ft.1330 Solar Heights Drive, Prescott, AZ 86303
MLS# 1081414Listed by: REALTY ONE GROUP MOUNTAIN DESERT - New
$76,000Active2 beds 1 baths650 sq. ft.700 White Spar Road #51, Prescott, AZ 86303
MLS# 1081406Listed by: GLOW REALTY - New
$749,000Active3 beds 2 baths2,392 sq. ft.988 Copper Vista Drive, Prescott, AZ 86303
MLS# 1081409Listed by: REALTY ONE GROUP MOUNTAIN DESERT - New
$625,000Active8.71 Acres000 W Love Lane, Prescott, AZ 86305
MLS# 1081399Listed by: BELLA TERRA REALTY LLC - Open Sat, 1 to 4pmNew
$1,175,000Active3 beds 3 baths2,975 sq. ft.13647 Black Elk Trail, Prescott, AZ 86305
MLS# 1081400Listed by: RUSS LYON SOTHEBY'S INTERNATIONAL REALTY - New
$1,595,000Active3 beds 3 baths2,484 sq. ft.14400 N Sandia Lane, Prescott, AZ 86305
MLS# 1081402Listed by: IANNELLI AND ASSOCIATES REAL ESTATE - New
$549,900Active2 beds 2 baths1,380 sq. ft.166 Falcon Court, Prescott, AZ 86303
MLS# 7018344Listed by: LAKE PLEASANT REAL ESTATE - Coming Soon
$499,900Coming Soon1 beds 1 baths15275 N Frankies Fwy, Prescott, AZ 86305
MLS# 1081397Listed by: KELLER WILLIAMS ARIZONA REALTY