13428 Mohawk Road, Apple Valley, CA 92308

Local realty services provided by:Better Homes and Gardens Real Estate Town Center
13428 Mohawk Road,Apple Valley, CA 92308
$829,999
  • - Beds
  • - Baths
  • 4,200 sq. ft.
  • Multi-family
  • Active
Listed by: henry geronimo
Office: medallion realtors
MLS#:CV25112625
Source:CRMLS

Price summary

  • Price:$829,999
  • Price per sq. ft.:$197.62

About this home

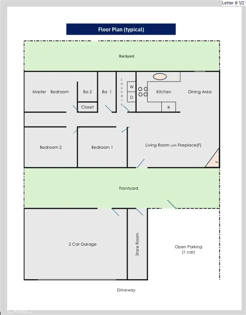
BEST RENT PER SQ FT - LARGEST RENTABLE AREA PER UNIT - LARGEST GARAGE SPACES PER UNIT…INDOOR LAUNDRY ROOM…..FRONT & BACK YARDS ….Please see Floor Plan in Photos -One of its kind. All units are the same in size & amenities! Each unit is like a regular home complemented with a fireplace; climate control; an indoor laundry room, front & back yards; plenty of parking spaces - double garage & 1 open parking. A unique feature is the store room attached to the garage. The building was laid out to provide maximum privacy for each unit. PLease see building layout in the “Photo” section. It’s income is one of the highest in community the besting many 4 unit apartments. Please note: HVAC units in units B & C replaced last year as well as the ducting; Unit C main breaker panel replaced last years. PLEASE SEE SUPPLEMENT

Contact an agent

contact an agent

Yes, I would like more information from BHGRE®. Please use and/or share my information with an BHGRE affiliated agent to contact me about my real estate needs. By clicking Send message, I agree an BHGRE affiliated agent may contact me by phone or text message including by automated means about real estate services, and that I can access real estate services without providing my phone number. I acknowledge that I have read and agree to theTerms of useandPrivacy notice

Home facts

  • Year built:1989
  • Listing ID #:CV25112625
  • Added:194 day(s) ago
  • Updated:December 02, 2025 at 11:46 AM

Rooms and interior

  • Living area:4,200 sq. ft.

Heating and cooling

  • Cooling:Central Air
  • Heating:Central

Structure and exterior

  • Year built:1989
  • Building area:4,200 sq. ft.
  • Lot area:0.48 Acres

Utilities

  • Water:Private
  • Sewer:Septic Tank

Finances and disclosures

  • Price:$829,999
  • Price per sq. ft.:$197.62
The information being provided by California Regional MLS (Southern California) is for the consumer's personal, non-commercial use and may not be used for any purpose other than to identify prospective properties consumer may be interested in purchasing. Any information relating to real estate for sale referenced on this web site comes from the Internet Data Exchange (IDX) program of the California Regional MLS (Southern California). Better Homes and Gardens Real Estate Town Center is not a Multiple Listing Service (MLS), nor does it offer MLS access. This website is a service of Better Homes and Gardens Real Estate Town Center, a broker participant of California Regional MLS (Southern California). This web site may reference real estate listing(s) held by a brokerage firm other than the broker and/or agent who owns this web site. The accuracy of all information, regardless of source, including but not limited to open house information, square footages and lot sizes, is deemed reliable but not guaranteed and should be personally verified through personal inspection by and/or with the appropriate professionals. The data contained herein is copyrighted by California Regional MLS (Southern California) and is protected by all applicable copyright laws. Any unauthorized dissemination of this information is in violation of copyright laws and is strictly prohibited. Copyright 2021 California Regional MLS (Southern California). All rights reserved.