1283 Poplar Drive, Arcata, CA 95521
Local realty services provided by:Better Homes and Gardens Real Estate Wine Country Group
1283 Poplar Drive,Arcata, CA 95521
$119,500
- 2 Beds
- 2 Baths
- 756 sq. ft.
- Mobile / Manufactured
- Active
Office: exp realty of california, inc.
MLS#:269156
Source:CA_HAR
Price summary
- Price:$119,500
- Price per sq. ft.:$158.07
About this home
Call for a private showing! Financing available. Why rent when you can move right into this newly renovated home in desirable Arcata family park! This 2 bedroom 2 bath home was completely remodeled in 2021 and is ready for you to move right in! Newer appliances are in great condition, the home also offers an on demand tankless water heater. The exterior has been very well maintained and offers a newer roof, Hardi Plank siding and a low maintenance yard. The large corner lot is situated near the back of the park close to the recreation hall and a large grassy area for your enjoyment. The park is tucked away yet close to Cal Poly Humboldt, shopping, dining, bus lines and other services. Call to schedule a private showing today!
Contact an agent
Home facts
- Year built:1973
- Listing ID #:269156
- Added:367 day(s) ago
- Updated:April 10, 2026 at 02:17 PM
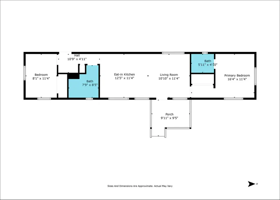
Rooms and interior
- Bedrooms:2
- Total bathrooms:2
- Full bathrooms:2
- Rooms Total:5
- Flooring:Carpeted, Plank
- Kitchen Description:Dining in Kitchen, Dishwasher, Disposal, Hood, Microwave, Range, Refrig, Remodeled Kitchen
- Living area:756 sq. ft.
Heating and cooling
- Heating:Forced Air
Structure and exterior
- Year built:1973
- Building area:756 sq. ft.
- Construction Materials:Cement Composite, Horizontal
Finances and disclosures
- Price:$119,500
- Price per sq. ft.:$158.07
New listings near 1283 Poplar Drive
- New
$525,000Active4 beds 2 baths1,315 sq. ft.1390 Grant Avenue, Arcata, CA 95521
MLS# 271982Listed by: Coldwell Banker Sellers Realty - New
$8,325,000Active-- beds -- baths305 Union, Arcata, CA 95521
MLS# 226043110Listed by: MARCUS & MILLICHAP REAL ESTATE
$739,500Active3 beds 3 baths2,770 sq. ft.3500 Hadley Place, Arcata, CA 95521
MLS# 271763Listed by: Derek Black, Broker
$850,000Pending4 beds 4 baths3,511 sq. ft.1531 Fickle Hill Road, Arcata, CA 95521
MLS# 271937Listed by: Coldwell Banker Sellers Realty- New
$460,000Active2 beds 1 baths1,452 sq. ft.1776 Golf Course Road, Bayside South, CA 95524
MLS# 271929Listed by: The Key Real Estate Group - New
$899,000Active0 Acres0 E 16th Street, Arcata, CA 95521
MLS# 271906Listed by: Coldwell Banker Sellers Realty
$125,000Active2 beds 2 baths1,104 sq. ft.2048 Appaloosa Lane, Arcata, CA 95521
MLS# 271882Listed by: Bones Homes Realty
$449,900Pending3 beds 2 baths1,320 sq. ft.2328 Sherri Court, Arcata, CA 95521
MLS# 271873Listed by: Coldwell Banker Cutten Realty
$789,000Pending3 beds 2 baths2,200 sq. ft.3255 Buttermilk Lane, Arcata, CA 95521
MLS# 271872Listed by: Coldwell Banker Cutten Realty
$774,900Active3 beds 2 baths1,962 sq. ft.2099 Fickle Hill Road, Arcata, CA 95521
MLS# 271862Listed by: Coldwell Banker Cutten Realty