7601 RIZZUTO STREET, Bakersfield, CA 93313
Local realty services provided by:Better Homes and Gardens Real Estate Property Shoppe
7601 RIZZUTO STREET,Bakersfield, CA 93313
$499,990
- 5 Beds
- 3 Baths
- - sq. ft.
- Single family
- Pending
Listed by: michelle nguyen
Office: k. hovnanian california operations inc.
MLS#:202511618
Source:BF
Price summary
- Price:$499,990
About this home
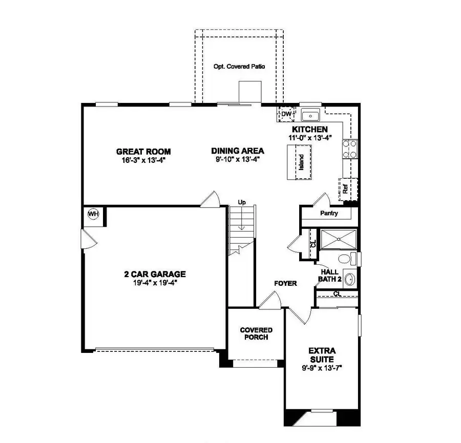
Welcome to Aspire at Cypress Crossing by K. Hovnanian Homes, where vibrant living meets everyday convenience. Ideally located near outdoor recreation, dining, shopping, entertainment, and major commuter routes, this community offers the perfect blend of accessibility and comfort. The Oleander plan boasts 2,144 sq. ft. of thoughtfully designed space with 5 bedrooms and 3 full baths. Loft-inspired details create timeless style throughout, while the gourmet kitchen shines with stunning Stone Grey cabinets, Arctic White quartz countertops, a large island, and sleek stainless-steel appliances. The open great room seamlessly connects living and dining areas, ideal for gatherings or everyday moments. A first-floor bedroom offers flexibility for guests or a home office. Upstairs, the private primary suite provides a relaxing retreat with elegant finishes, joined by three additional bedrooms that complete this spacious home. Don't miss out on this home. *Price subject to change.
Contact an agent
Home facts
- Year built:2025
- Listing ID #:202511618
- Added:68 day(s) ago
- Updated:December 21, 2025 at 08:31 AM
Rooms and interior
- Bedrooms:5
- Total bathrooms:3
- Full bathrooms:3
Heating and cooling
- Cooling:Central A/C
- Heating:Central
Structure and exterior
- Year built:2025
- Lot area:0.15 Acres
Schools
- High school:Ridgeview
- Middle school:Stonecreek
- Elementary school:Miller, Douglas
Finances and disclosures
- Price:$499,990
New listings near 7601 RIZZUTO STREET
- New
$390,000Active3 beds 3 baths1,457 sq. ft.645 DELFINO LANE, Bakersfield, CA 93304
MLS# 202513718Listed by: GOLDEN VALLEY REAL ESTATE GROUP - New
$399,900Active4 beds 2 baths1,776 sq. ft.3817 HARRIS ROAD, Bakersfield, CA 93313
MLS# 202513714Listed by: D BEST REALTY, INC. - New
$449,999Active4 beds 2 baths2,089 sq. ft.3105 LOVELAND WAY, Bakersfield, CA 93309
MLS# 202513715Listed by: UNITED REAL ESTATE CONSULTANTS - New
$489,990Active3 beds 3 baths2,194 sq. ft.7502 EMERALD GREEN AVENUE, Bakersfield, CA 93313
MLS# 202513716Listed by: MATRIXX REALTY - New
$409,900Active3 beds 2 baths1,827 sq. ft.2416 BLADEN STREET, Bakersfield, CA 93309
MLS# 202513713Listed by: AAA REALTY INC - Open Sun, 11am to 2pmNew
$405,000Active3 beds 2 baths1,403 sq. ft.10302 ATAKAPA AVENUE, Bakersfield, CA 93312
MLS# 202513509Listed by: KELLER WILLIAMS REALTY - New
$325,000Active3 beds 2 baths1,208 sq. ft.3013 CORNELL STREET, Bakersfield, CA 93305
MLS# 202513659Listed by: TEAM BUSBY REAL ESTATE /MIRAMAR REALTY - New
$70,000Active3 beds 2 baths840 sq. ft.6601 EUCALYPTUS DRIVE #52, Bakersfield, CA 93306
MLS# 202513677Listed by: LEGACY REALTY GROUP INC. - Open Sun, 12:30 to 3:30pmNew
$449,999Active3 beds 2 baths1,847 sq. ft.7600 PETRIS AVENUE, Bakersfield, CA 93308
MLS# 202513702Listed by: INFINITY REAL ESTATE SERVICES - New
$399,990Active3 beds 2 baths8616 SCINTILLA AVENUE #2012W, Bakersfield, CA 93311
MLS# 202513704Listed by: D.R. HORTON