67687 Duchess Road #101, Cathedral City, CA 92234

Local realty services provided by:Better Homes and Gardens Real Estate Wine Country Group
67687 Duchess Road #101,Cathedral City, CA 92234
$439,500
  • 2 Beds
  • 2 Baths
  • 1,478 sq. ft.
  • Condominium
  • Active
Listed by: charles barenbrugge
Office: charles estates760-600-6389
MLS#:219139120PS
Source:CRMLS

Price summary

  • Price:$439,500
  • Price per sq. ft.:$297.36
  • Monthly HOA dues:$498

About this home

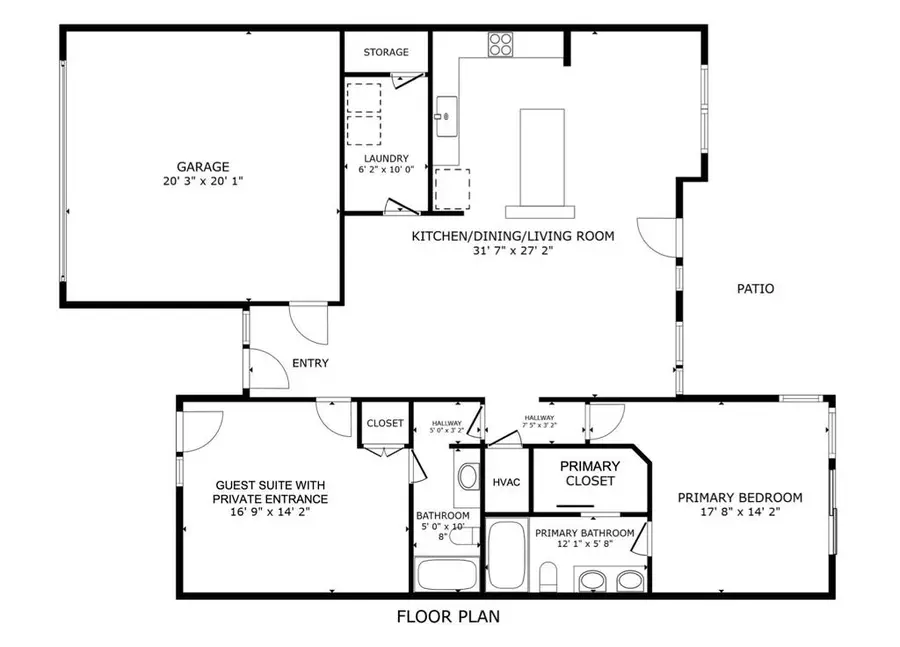
This Beautifully maintained single-story end-unit condominium with 2 Bedrooms and 2 Bathrooms features direct access to its own private 2-car attached Garage. The warm, sophisticated interior features an open-concept Great Room, Dining Area and Kitchen with no partition walls. The Custom Window Coverings with Up-Down Shades provide abundant natural light while maintaining privacy. The Spacious Kitchen, with Granite Countertops and a large Breakfast Bar are adjacent to the Dining Area, which is great for entertaining. The South-facing Patio with mountain glimpses and a scenic desert walkway leading to the community's large pool and spa are a plus. The Primary Suite with Desert Landscaping views similar to those from the Patio, includes an ensuite bathroom with access to the spacious Primary Bedroom Closet. The Second Bedroom Suite features direct access to the Guest/Second Bath and its own private entrance which is ideal for guests. The large Laundry Room with side-by-side Washer and...

Contact an agent

contact an agent

Yes, I would like more information. Please use and/or share my information with a BHGRE®  affiliated agent to contact me about my real estate needs. By clicking Send message, I request to be contacted by phone or text message and consent to being contacted by automated means. I understand that my consent to receive calls or texts is not a condition of purchasing any property, goods, or services. Alternatively, I understand that I can access real estate services by email or I can contact the agent myself.

If a BHGRE®  affiliated agent is not available in the area where I need assistance, I agree to be contacted by a real estate agent affiliated with another brand owned or licensed by Anywhere Real Estate (CENTURY 21® , Coldwell Banker® , Corcoran® , ERA® , Sotheby's International Realty® ).
 I acknowledge that I have read and agree to theTerms of useandPrivacy notice

Home facts

  • Year built:2008
  • Listing ID #:219139120PS
  • Added:186 day(s) ago
  • Updated:May 27, 2026 at 10:44 AM

Rooms and interior

  • Bedrooms:2
  • Total bathrooms:2
  • Full bathrooms:2
  • Flooring:Carpet, Tile
  • Kitchen Description:Dishwasher, Disposal, Gas Cooktop, Gas Oven, Microwave, Refrigerator
  • Living area:1,478 sq. ft.

Heating and cooling

  • Cooling:Central Air
  • Heating:Forced Air, Natural Gas, Zoned
  • Central air:Yes

Structure and exterior

  • Roof:Tile
  • Year built:2008
  • Building area:1,478 sq. ft.
  • Lot area:0.03 Acres
  • Architectural Style:Mediterranean
  • Construction Materials:Stucco
  • Exterior Features:Concrete
  • Foundation Description:Slab
  • Levels:1 Story

Finances and disclosures

  • Price:$439,500
  • Price per sq. ft.:$297.36

Features and amenities

  • Appliances:Dishwasher, Disposal
  • Amenities:Open Floor Plan, Utility Room, Walk In Closets
  • Pool features:In Ground

Parking

  • Total parking spaces:4
  • Parking description:Guest
  • Garage:Yes
  • Garage spaces:2
The information being provided by California Regional MLS (Southern California) is for the consumer's personal, non-commercial use and may not be used for any purpose other than to identify prospective properties consumer may be interested in purchasing. Any information relating to real estate for sale referenced on this web site comes from the Internet Data Exchange (IDX) program of the California Regional MLS (Southern California). Better Homes and Gardens Real Estate Wine Country Group is not a Multiple Listing Service (MLS), nor does it offer MLS access. This website is a service of Better Homes and Gardens Real Estate Wine Country Group, a broker participant of California Regional MLS (Southern California). This web site may reference real estate listing(s) held by a brokerage firm other than the broker and/or agent who owns this web site. The accuracy of all information, regardless of source, including but not limited to open house information, square footages and lot sizes, is deemed reliable but not guaranteed and should be personally verified through personal inspection by and/or with the appropriate professionals. The data contained herein is copyrighted by California Regional MLS (Southern California) and is protected by all applicable copyright laws. Any unauthorized dissemination of this information is in violation of copyright laws and is strictly prohibited. Copyright 2021 California Regional MLS (Southern California). All rights reserved.