2222 Carson Avenue, Clovis, CA 93611
Local realty services provided by:Better Homes and Gardens Real Estate GoldLeaf
2222 Carson Avenue,Clovis, CA 93611
$599,000
- 3 Beds
- - Baths
- 2,423 sq. ft.
- Single family
- Active
Listed by: osvaldo tiscareno
Office: bella vista real estate
MLS#:638958
Source:CA_FMLS
Price summary
- Price:$599,000
- Price per sq. ft.:$247.21
- Monthly HOA dues:$105
About this home
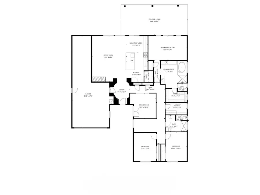
<div><b>Beautiful Single-Story Home in a Gated Clovis Community</b></div><div><b><br></b></div><div><b>Newly professionally painted exterior (April 5, 2026)</b></div><div>Welcome to this stunning single-story home located in a desirable gated community, complete with its own park just down the street and access to award-winning Clovis Schools!</div>This home offers <b>3 bedrooms, 2 bathrooms,</b> and a <b>flexible family room</b> that can easily be converted into a fourth bedroom with its own private entrance. <b>A built-in media center/office </b>provides the perfect space for work or study.<br>Step inside to find numerous upgrades throughout from wide hallways and high ceilings to crown molding and recessed lighting. The spacious great room is ideal for entertaining and seamlessly flows into a beautiful gourmet kitchen featuring:<br> Whitewashed cabinets with custom hardware, granite countertops.<br> A large center island with an over-sized stainless-steel undermount sink<br> Plenty of cabinet space and a walk-in pantry<br>Enjoy upgraded vinyl wood flooring throughout the home and a large primary suite designed for comfort. The primary bath features his-and-hers vanities with custom rock bowl sinks, a jetted spa tub, and an oversized walk-in closet.<br>Outside, the large backyard includes an <b>extended covered patio</b> with ceiling fans, perfect for relaxing or entertaining guests. There's also <b>potential RV parking</b> along the side yard.<br>The <b>3-car tandem garage</b> offers deep parking space ideal for a workshop, motorcycles, or DIY projects.<br>Don't miss this opportunity to own a home that truly has it all!<br> <b>Call today for your private showing!</b>...
Contact an agent
Home facts
- Year built:2006
- Listing ID #:638958
- Added:165 day(s) ago
- Updated:April 06, 2026 at 07:54 PM
Rooms and interior
- Bedrooms:3
- Flooring:Carpet, Tile, Vinyl
- Kitchen Description:Built In Range/Oven, Gas Appliances, Microwave, Refrigerator
- Living area:2,423 sq. ft.
Heating and cooling
- Cooling:Central Heat & Cool
Structure and exterior
- Roof:Tile
- Year built:2006
- Building area:2,423 sq. ft.
- Lot area:0.22 Acres
- Construction Materials:Stucco
- Exterior Features:Covered
- Foundation Description:Concrete
- Levels:1 Story
Schools
- High school:Clovis East
- Middle school:Reyburn
- Elementary school:Freedom
Utilities
- Water:Public
- Sewer:Public Sewer
Finances and disclosures
- Price:$599,000
- Price per sq. ft.:$247.21
Features and amenities
- Laundry features:Electric Dryer Hookup, Gas Dryer Hookup, Inside, Utility Room
Parking
- Parking description:Garage, Garage Door Opener, Potential RV Parking, Work/Shop Area
New listings near 2222 Carson Avenue
- New
$169,999Active2 beds -- baths840 sq. ft.495 W Santa Ana Avenue #4, Clovis, CA 93612
MLS# 646606Listed by: WESTERN PIONEER PROPERTIES - Coming Soon
$539,888Coming Soon3 beds 2 baths937 Lindsay Ln, Clovis, CA 93619
MLS# 41129736Listed by: SPARROW PACIFIC HOMES - New
$2,450Active3 beds -- baths1,651 sq. ft.1502 Redbrick Lane, Clovis, CA 93619
MLS# 646616Listed by: HOMESMART PV AND ASSOCIATES - New
$730,000Active4 beds -- baths2,517 sq. ft.563 W Omaha Avenue, Clovis, CA 93619
MLS# 646592Listed by: HOMESMART PV AND ASSOCIATES - New
$822,560Active3 beds -- baths2,534 sq. ft.1644 Heirloom Avenue, Clovis, CA 93619
MLS# 645832Listed by: WILSON HOMES, INC. - New
$485,000Active3 beds -- baths1,908 sq. ft.3875 Roberts Avenue, Clovis, CA 93619
MLS# 646367Listed by: THE APEX BROKER, INC - Open Sun, 1 to 4pmNew
$350,000Active3 beds -- baths1,000 sq. ft.1755 4th Street, Clovis, CA 93611
MLS# 646579Listed by: EXECUTIVE REALTY ASSOCIATES - New
$720,000Active3 beds -- baths2,071 sq. ft.7690 N Leonard Avenue, Clovis, CA 93619
MLS# 646577Listed by: REAL BROKER - New
$95,000Active2 beds -- baths784 sq. ft.1272 Villa Avenue #28, Clovis, CA 93612
MLS# 646555Listed by: REAL BROKER - New
$1,190,000Active4 beds 3 baths2,959 sq. ft.12235 Willow Avenue, Clovis, CA 93619
MLS# FR26068215Listed by: LONDON PROPERTIES