8401 Dallas, Huntington Beach, CA 92646

Local realty services provided by:Better Homes and Gardens Real Estate Town Center
8401 Dallas,Huntington Beach, CA 92646
$1,859,000
  • 4 Beds
  • 3 Baths
  • 2,483 sq. ft.
  • Single family
  • Active
Listed by:robert marroche
Office:coldwell banker-campbell rltrs
MLS#:OC25222602
Source:CRMLS

Price summary

  • Price:$1,859,000
  • Price per sq. ft.:$748.69

About this home

This stunning Huntington Beach Landmark home is an absolute must-see! Situated just minutes from the beach and the Newland Center, this property combines both luxury and convenience in one of the most sought-after neighborhoods. An extra-large interior corner lot offers ample space, privacy, and easy access to everything Huntington Beach has to offer. The home has open living areas with plenty of room to relax, work, and entertain. Includes a separate office space, true conditioned wine room, dining area and large hang-out area. The gourmet kitchen is designed for the home chef, featuring top-of-the-line KitchenAid appliances, custom cabinetry, and picture window. Four bedrooms, with the luxurious primary bedroom located on the ground floor. Step outside to your private backyard oasis complete with a pergola, tiled patio, built-in BBQ, firepit, and hot tub. Enjoy evenings by the fire while surrounded by established fruit trees, including oranges, mandarins, persimmons,

Contact an agent

contact an agent

Yes, I would like more information from BHGRE®. Please use and/or share my information with an BHGRE affiliated agent to contact me about my real estate needs. By clicking Send message, I agree an BHGRE affiliated agent may contact me by phone or text message including by automated means about real estate services, and that I can access real estate services without providing my phone number. I acknowledge that I have read and agree to theTerms of useandPrivacy notice

Home facts

  • Year built:1977
  • Listing ID #:OC25222602
  • Added:5 day(s) ago
  • Updated:September 29, 2025 at 11:25 PM

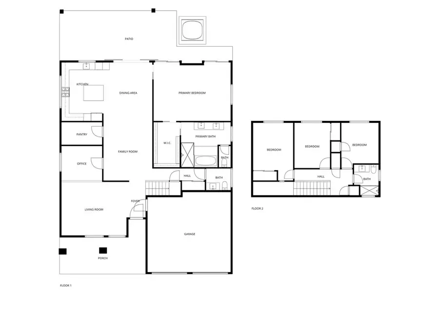
Rooms and interior

  • Bedrooms:4
  • Total bathrooms:3
  • Full bathrooms:2
  • Half bathrooms:1
  • Living area:2,483 sq. ft.

Heating and cooling

  • Cooling:Central Air
  • Heating:Central, Forced Air

Structure and exterior

  • Roof:Composition
  • Year built:1977
  • Building area:2,483 sq. ft.
  • Lot area:0.18 Acres

Schools

  • High school:Huntington Beach
  • Middle school:Talbert
  • Elementary school:Newland

Utilities

  • Water:Public, Water Connected
  • Sewer:Public Sewer, Sewer Connected, Sewer Tap Paid

Finances and disclosures

  • Price:$1,859,000
  • Price per sq. ft.:$748.69
The information being provided by California Regional MLS (Southern California) is for the consumer's personal, non-commercial use and may not be used for any purpose other than to identify prospective properties consumer may be interested in purchasing. Any information relating to real estate for sale referenced on this web site comes from the Internet Data Exchange (IDX) program of the California Regional MLS (Southern California). Better Homes and Gardens Real Estate Town Center is not a Multiple Listing Service (MLS), nor does it offer MLS access. This website is a service of Better Homes and Gardens Real Estate Town Center, a broker participant of California Regional MLS (Southern California). This web site may reference real estate listing(s) held by a brokerage firm other than the broker and/or agent who owns this web site. The accuracy of all information, regardless of source, including but not limited to open house information, square footages and lot sizes, is deemed reliable but not guaranteed and should be personally verified through personal inspection by and/or with the appropriate professionals. The data contained herein is copyrighted by California Regional MLS (Southern California) and is protected by all applicable copyright laws. Any unauthorized dissemination of this information is in violation of copyright laws and is strictly prohibited. Copyright 2021 California Regional MLS (Southern California). All rights reserved.