1491 W Lambert Road, La Habra, CA 90631
Local realty services provided by:Better Homes and Gardens Real Estate Napolitano & Associates
Listed by:james festini
Office:exp realty of california inc
MLS#:PW25185359
Source:San Diego MLS via CRMLS
Price summary
- Price:$690,000
- Price per sq. ft.:$400.7
- Monthly HOA dues:$285
About this home
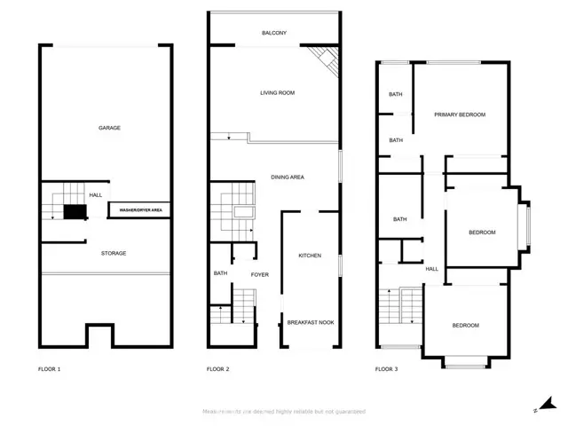
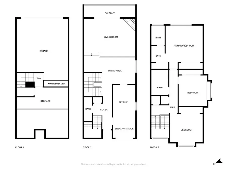
Best Buy in Orange County, an attached single-family 3-bedroom home at the lowest price per square foot youll find! Dont miss your chance to own the largest end-unit in La Habra Woods! Welcome to 1491 W Lambert Road, La Habraa spacious 3-bedroom, 3-bath home nestled in the desirable La Habra Woods gated community. The updated kitchen features granite countertops, a stone backsplash, abundant cabinets, and sleek black and stainless steel appliances. A dual black sink with a garden window adds charm, while the breakfast nook with balcony access is perfect for morning coffee. The step-down living room features charming wood-beam ceilings, a cozy fireplace with a hearth and mantel, and sliding doors that open to the private front patio. A formal dining area makes entertaining easy. Upstairs, the oversized primary suite offers vaulted ceilings, dual closets, and a private ensuite. Secondary bedrooms are generously sized, and the updated second bathroom includes a convenient step-in shower. Additional features throughout include recessed lighting, plantation shutters, ceiling fans, a water softener, mirrored closet doors, and recently replaced A/C ducts and registers for improved efficiency and comfort. The attached 2-car garage offers direct access, a laundry area, and ample storage spaceideal for a home office, gym, playroom, or hobby room. Outside, relax or entertain on your private front patio with peaceful greenbelt views. Tucked toward the back of the community for added privacy, this end-unit home is within walking distance to the sparkling pool and spa and gives you acces
Contact an agent
Home facts
- Year built:1980
- Listing ID #:PW25185359
- Added:50 day(s) ago
- Updated:October 06, 2025 at 02:05 PM
Rooms and interior
- Bedrooms:3
- Total bathrooms:3
- Full bathrooms:2
- Half bathrooms:1
- Living area:1,722 sq. ft.
Heating and cooling
- Cooling:Central Forced Air
- Heating:Forced Air Unit
Structure and exterior
- Roof:Composition, Shingle
- Year built:1980
- Building area:1,722 sq. ft.
Utilities
- Water:Public, Water Available
- Sewer:Public Sewer, Sewer Available
Finances and disclosures
- Price:$690,000
- Price per sq. ft.:$400.7
New listings near 1491 W Lambert Road
- New$529,000Active2 beds 2 baths1,027 sq. ft.
994 E La Habra Boulevard #246, La Habra, CA 90631
MLS# PW25232572Listed by: NICK SADEK SOTHEBY'S INTL RLTY - New$529,000Active2 beds 2 baths1,027 sq. ft.
994 994 E La Habra #246, La Habra, CA 90631
MLS# PW25232572Listed by: NICK SADEK SOTHEBY'S INTL RLTY - New$899,999Active3 beds 2 baths1,333 sq. ft.
1330 Ditwood Place, La Habra, CA 90631
MLS# PW25231495Listed by: NEXTMOVE REAL ESTATE - New$1,049,000Active3 beds 2 baths1,842 sq. ft.
308 S Valencia, La Habra, CA 90631
MLS# CV25227848Listed by: CENTURY 21 MASTERS - New$949,000Active3 beds 2 baths1,616 sq. ft.
1100 N Euclid Street, La Habra, CA 90631
MLS# TR25230637Listed by: GOOD FAITH INVESTMENTS, INC - New$899,900Active3 beds 2 baths1,875 sq. ft.
1060 Tropicana Way, La Habra, CA 90631
MLS# OC25230145Listed by: COLDWELL BANKER REALTY - New$780,000Active2 beds 1 baths1,114 sq. ft.
501 Willow Street, La Habra, CA 90631
MLS# PTP2507485Listed by: META HOMES REALTY INC - New$670,000Active3 beds 2 baths1,017 sq. ft.
771 Clifton, La Habra, CA 90631
MLS# CV25228441Listed by: CHAMPIONS REAL ESTATE - New$875,000Active3 beds 2 baths1,507 sq. ft.
1620 W El Portal Drive, La Habra, CA 90631
MLS# PW25228727Listed by: NEXTMOVE REAL ESTATE - New$6,900,000Active36 beds 18 baths13,500 sq. ft.
237 S Monte Vista Street, La Habra, CA 90631
MLS# 24415843Listed by: CB RICHARD ELLIS, INC.