2910 Porcelain Street, Lincoln, CA 95648

Local realty services provided by:Better Homes and Gardens Real Estate Everything Real Estate
2910 Porcelain Street,Lincoln, CA 95648
$495,990
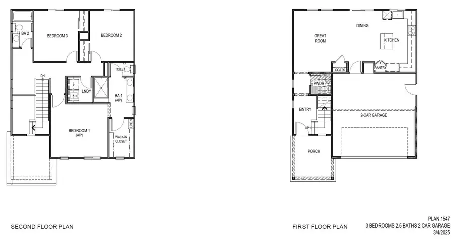
  • 3 Beds
  • 3 Baths
  • 1,547 sq. ft.
  • Single family
  • Active
Listed by: shellee mcasey
Office: d.r. horton- sacramento
MLS#:226039003
Source:MFMLS

Price summary

  • Price:$495,990
  • Price per sq. ft.:$320.61

About this home

No HOA. Brand new solar home offering a two-story floor plan with 3 bedrooms, 2.5 bathrooms, and a 2-car garage. Features include a spacious open-concept great room, and a walk-in closet in the primary bedroom. Home is equipped with vinyl plank flooring all downstairs, carpet upstairs, quartz counter tops and shaker-style cabinets. Home features a Connected® Smart Home System which includes a programmable thermostat, door locks, smart light switch and touchscreen Smart Home control device when the system is connected to the internet.*Photos and renderings are of a model home or artistic representation of the same floor plan; actual home and lot features may vary.

Contact an agent

contact an agent

Yes, I would like more information. Please use and/or share my information with a BHGRE®  affiliated agent to contact me about my real estate needs. By clicking Send message, I request to be contacted by phone or text message and consent to being contacted by automated means. I understand that my consent to receive calls or texts is not a condition of purchasing any property, goods, or services. Alternatively, I understand that I can access real estate services by email or I can contact the agent myself.

If a BHGRE®  affiliated agent is not available in the area where I need assistance, I agree to be contacted by a real estate agent affiliated with another brand owned or licensed by Anywhere Real Estate (CENTURY 21® , Coldwell Banker® , Corcoran® , ERA® , Sotheby's International Realty® ).
 I acknowledge that I have read and agree to theTerms of useandPrivacy notice

Home facts

  • Listing ID #:226039003
  • Added:45 day(s) ago
  • Updated:May 16, 2026 at 02:54 PM

Rooms and interior

  • Bedrooms:3
  • Total bathrooms:3
  • Full bathrooms:2
  • Flooring:Carpet
  • Kitchen Description:Dishwasher, Free Standing Electric Range, Microwave
  • Living area:1,547 sq. ft.

Heating and cooling

  • Cooling:Central
  • Heating:Electric

Structure and exterior

  • Roof:Composition Shingle
  • Building area:1,547 sq. ft.
  • Lot area:0.07 Acres
  • Lot Features:Corner, Landscape Front, Low Maintenance
  • Construction Materials:Stucco, Wood
  • Foundation Description:Slab
  • Levels:2 Story

Utilities

  • Sewer:Public Sewer

Finances and disclosures

  • Price:$495,990
  • Price per sq. ft.:$320.61

Features and amenities

  • Appliances:Dishwasher, Free Standing Electric Range, Microwave
  • Laundry features:Electric, Hookups Only, On Upper Floor
  • Smart home:Yes

Parking

  • Garage spaces:2
MLS LogoMetroList MLS 2026. This information is being provided by MetroList MLS. All measurements and calculations of area are approximate. Information provided by Seller/Other sources, not verified by Broker. All interested persons should independently verify accuracy of information. Provided properties may or may not be listed by the office/agent presenting the information. Data Updated: May 16, 2026. Information being provided is for consumers' personal, non-commercial use and may not be used for any purpose other than to identify prospective properties consumers may be interested in purchasing. Information deemed reliable but not guaranteed. Any offer of compensation is made only to Participants of MLS where the subject listing is filed and in accordance with such MLS's regulations or rules.