3833 Randolph, Los Angeles, CA 90032
Local realty services provided by:Better Homes and Gardens Real Estate Everything Real Estate
3833 Randolph,Los Angeles, CA 90032
$1,399,000
- 7 Beds
- 5 Baths
- 2,767 sq. ft.
- Multi-family
- Active
Upcoming open houses
- Sun, Apr 1212:00 pm - 03:00 pm
Listed by: maribel munoz
Office: trevino properties, inc.323-302-8400
MLS#:CV26047391
Source:CRMLS
Price summary
- Price:$1,399,000
- Price per sq. ft.:$505.6
About this home
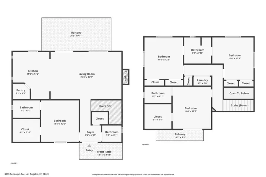
Two Homes on One Lot -BOTH HOMES VACANT– A Rare Opportunity in Elephant Hills
Perfect for multi-generational living, investment, or living in one home while renting the other.
Located in the highly desirable Elephant Hills neighborhood—just two streets off Collis and minutes from South Pasadena, a few minutes from Highland Park—this exceptional property offers two fully independent homes on a generous lot, each with its own parking and separate utilities. A truly unique find in one of Northeast LA’s most sought-after pockets.
Back House – Modern -newer Construction with Stunning Views
A newer, thoughtfully designed home featuring contemporary finishes and a flexible layout:
• First-floor Master bedroom/full bath -Second master bedroom on second floor.
• Guest-friendly half bath on the main level
• Open-concept living, dining, and kitchen ideal for entertaining
• Chef-inspired kitchen with high ceilings, custom cabinetry, pantry, island seating, and double glass doors opening to a spacious balcony overlooking mature trees and twinkling city lights
• Inviting living room with a gas fireplace—perfect for cozy evenings
• Upper level includes a second primary suite with private balcony, plus two additional bedrooms and a full bath
• Central AC and heating for year-round comfort
This home offers privacy, space, and beautiful natural surroundings. Front House – Fully Remodeled with Classic Charm
A beautifully updated 3-bedroom, 1-bath home that blends character with modern convenience:
• Brand-new kitchen cabinets with cork countertops
• Fresh interior paint and refinished hardwood floors
• Remodeled bathroom, new windows, and new roof
• New split AC/heating system
• Large basement ideal for storage, workshop, or creative studio
The expansive front yard features lush green grass—perfect for play, gardening, or enhancing curb appeal.
Outdoor Features & Lot Highlights
• Three tiers of leveled backyard with fruit trees
• Space for small RV parking in the front
• Easy access to major freeways and main streets
• Quick commute to DTLA, USC Medical Center, and all the trendy restaurants, boutiques, and coffee shops in Highland Park...
Contact an agent
Home facts
- Year built:1927
- Listing ID #:CV26047391
- Added:158 day(s) ago
- Updated:April 11, 2026 at 12:06 AM
Rooms and interior
- Bedrooms:7
- Total bathrooms:5
- Full bathrooms:5
- Kitchen Description:Double Oven, Gas Cooktop, Walk In Pantry
- Basement:Yes
- Living area:2,767 sq. ft.
Heating and cooling
- Cooling:Central Air, Wall Window Units
- Central air:Yes
Structure and exterior
- Roof:Composition
- Year built:1927
- Building area:2,767 sq. ft.
- Lot area:0.17 Acres
- Architectural Style:Mid Century Modern, Ranch
- Exterior Features:Patio, Porch
- Levels:1 Story
Utilities
- Water:Public
- Sewer:Public Sewer
Finances and disclosures
- Price:$1,399,000
- Price per sq. ft.:$505.6
Features and amenities
- Appliances:Disposal, Double Oven, Gas Cooktop
- Laundry features:Laundry Room
- Amenities:Rain Gutters, Walk In Closets
Parking
- Parking description:Driveway, One Space, Private
New listings near 3833 Randolph
- New
$280,000Active0.12 Acres12264 Laurel Terrace Drive, Studio City, CA 91604
MLS# BB26077542Listed by: FOUND WEST REALTY - New
$129,900Active2 beds 1 baths506 sq. ft.7650 Balboa Boulevard #43, Van Nuys, CA 91406
MLS# CV26068476Listed by: PAEZ REALTY COMPANY - New
$129,900Active2 beds 1 baths506 sq. ft.7650 Balboa Boulevard #129, Van Nuys, CA 91406
MLS# CV26077602Listed by: PAEZ REALTY COMPANY - Open Sun, 1 to 4pmNew
$489,000Active1 beds 1 baths743 sq. ft.1745 Camino Palmero Street #334, Los Angeles, CA 90046
MLS# 26671103Listed by: KW WESTSIDE ESTATES - Open Fri, 11am to 2pmNew
$889,000Active3 beds 2 baths1,804 sq. ft.15906 Tuba Street, Granada Hills, CA 91343
MLS# SR26074348Listed by: RODEO REALTY - Open Sun, 2 to 5pmNew
$649,000Active2 beds 1 baths884 sq. ft.11645 Montana Avenue #323, Los Angeles, CA 90049
MLS# 26689499Listed by: BEVERLY AND COMPANY, INC. - New
$1,600,000Active3 beds 2 baths1,794 sq. ft.3554 S Sycamore, Los Angeles, CA 90016
MLS# SR26077655Listed by: REALTY EXECUTIVES - New
$829,999Active3 beds 3 baths1,454 sq. ft.11954 Edgecliff, Sylmar, CA 91342
MLS# PW26077942Listed by: RISE MORTGAGE & REAL ESTATE - Open Sat, 1 to 4pmNew
$1,485,250Active3 beds 3 baths2,148 sq. ft.12312 Erwin, North Hollywood, CA 91606
MLS# SR26076781Listed by: PINNACLE ESTATE PROPERTIES - New
$649,000Active2 beds 2 baths1,213 sq. ft.5703 Laurel Canyon Boulevard #306, Los Angeles, CA 91607
MLS# CRP1-26627Listed by: COMPASS