744 Amador, Los Angeles, CA 90012

Local realty services provided by:Better Homes and Gardens Real Estate Everything Real Estate
744 Amador,Los Angeles, CA 90012
$420,000
  • 0.07 Acres
  • Lots / Land
  • Active
Listed by: elvia gonzalez, eddie gonzalez
Office: reliable real estate company949-445-2944
MLS#:OC25253396
Source:CRMLS

Price summary

  • Price:$420,000

About this home

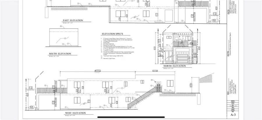
LOCATION, LOCATION, LOCATION! Near RTI (Ready to Issue) Permits with LA City! Lucrative Vacant Land Opportunity adjacent to Dodger Stadium! Don’t miss this RARE FLAT R-1 vacant lot with permits in the heart of the Historic Solano Canyon neighborhood, with the Dodger Stadium literally in your very own backyard and minutes from Downtown L.A. Permit plans included for a stunning two-story, 3 Bedroom /2 Bathroom Single Family Residence plus an Additional Dwelling Unit (approx. 1,800 sq. ft. total Includes a 1 Bedroom/1 Bath, Laundry hook-ups) — ready for your next high-value build! Prime R-1 Zoned Flat Lot with permits After Construction Value estimated around $2.0 Million+ Three doors from Historic Mission Conrado Quick 110 Freeway access (just 500 yards away) Excellent development or investment opportunity Exceptional Investment Rental for this New Construction House commands an approx $7,500 +- per/mo. PLUS ADU Rental approx $2,700. +- per mo. Value in...

Contact an agent

contact an agent

Yes, I would like more information. Please use and/or share my information with a BHGRE®  affiliated agent to contact me about my real estate needs. By clicking Send message, I request to be contacted by phone or text message and consent to being contacted by automated means. I understand that my consent to receive calls or texts is not a condition of purchasing any property, goods, or services. Alternatively, I understand that I can access real estate services by email or I can contact the agent myself.

If a BHGRE®  affiliated agent is not available in the area where I need assistance, I agree to be contacted by a real estate agent affiliated with another brand owned or licensed by Anywhere Real Estate (CENTURY 21® , Coldwell Banker® , Corcoran® , ERA® , Sotheby's International Realty® ).
 I acknowledge that I have read and agree to theTerms of useandPrivacy notice

Home facts

  • Listing ID #:OC25253396
  • Added:188 day(s) ago
  • Updated:May 12, 2026 at 10:36 AM

Structure and exterior

  • Lot area:0.07 Acres
  • Lot Features:Back Yard, Front Yard, Level with Street, Value In Land, Walkstreet

Utilities

  • Water:Public, Water Available
  • Sewer:Sewer Available

Finances and disclosures

  • Price:$420,000
The information being provided by California Regional MLS (Southern California) is for the consumer's personal, non-commercial use and may not be used for any purpose other than to identify prospective properties consumer may be interested in purchasing. Any information relating to real estate for sale referenced on this web site comes from the Internet Data Exchange (IDX) program of the California Regional MLS (Southern California). Better Homes and Gardens Real Estate Everything Real Estate is not a Multiple Listing Service (MLS), nor does it offer MLS access. This website is a service of Better Homes and Gardens Real Estate Everything Real Estate, a broker participant of California Regional MLS (Southern California). This web site may reference real estate listing(s) held by a brokerage firm other than the broker and/or agent who owns this web site. The accuracy of all information, regardless of source, including but not limited to open house information, square footages and lot sizes, is deemed reliable but not guaranteed and should be personally verified through personal inspection by and/or with the appropriate professionals. The data contained herein is copyrighted by California Regional MLS (Southern California) and is protected by all applicable copyright laws. Any unauthorized dissemination of this information is in violation of copyright laws and is strictly prohibited. Copyright 2021 California Regional MLS (Southern California). All rights reserved.