18431 Coastline Drive, Malibu, CA 90265
Local realty services provided by:Better Homes and Gardens Real Estate Property Shoppe
Listed by: michael edlen, tatiana weiss
Office: coldwell banker realty310-458-0091
MLS#:26661141
Source:CRMLS
Price summary
- Price:$2,225,000
About this home
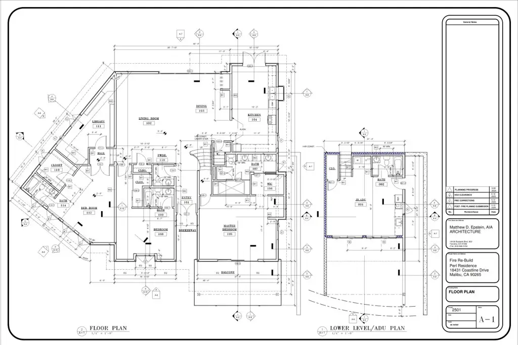
18431 Coastline is a truly exceptional ocean-view lot in Malibu's beloved Sunset Mesa enclave, offered with fully permitted plans and shovel-ready approval to build a stunning 3,166-square-foot residence featuring 4 bedrooms and 4.5 baths. This will save months of your time! Located on one of the premier view parcels in Sunset Mesa locally known as "the Mesa", this rare pie-shaped 7,723 sq ft lot allows for sweeping ocean views from the majority of the home's rooms, a feature seldom found in the neighborhood. The thoughtfully designed floorplan maximizes both the lot and the views, offering an open, flexible layout. Plans include space for a formal backyard, expansive deck, and spa, with the option to add a pool if desired. The project has already been approved by Sunset Mesa's Architectural Committee, making this an exceptionally rare, ready-to-build opportunity. Sunset Mesa is one of Malibu's few master-planned ocean view communities, featuring underground utilities, wide sidewalks, extra-wide streets, no parking restrictions, and protected views enforced by CC&R regulations. The home also boasts a generous backyard and an oversized front balcony perfect for entertaining, with panoramic views stretching from the sandy beaches to the Santa Monica Pier. By night, the coastline lights along PCH create a magical glow across the ocean. Residents enjoy access to the highly regarded Malibu School District, known for its approximately 15:1 student-teacher ratio and neighborhood bus pickup. The Mesa offers exceptional privacy with no retail and no through streets, yet remains conveniently close to Santa Monica (3 miles), the Palisades (1.5 miles), and downtown Malibu (4 miles). Best of all, the beach is just minutes away! Neither Seller nor Broker/Agents guarantee the accuracy of the square footage, lot size, permits or other information concerning the conditions or features of the property. Buyer is advised to independently verify the accuracy of all information (including square footage) through personal inspections and with the appropriate professionals. Views, if any, are based on current conditions and drone imagery taken at the time of listing. Future construction or development may impact views. Buyer to independently verify. See DOCS for Offer Guidelines and plans, etc. See Virtual Tour for view 360. Ask for plans + ADU....
Contact an agent
Home facts
- Listing ID #:26661141
- Added:45 day(s) ago
- Updated:April 25, 2026 at 10:33 AM
Structure and exterior
- Lot area:0.18 Acres
Finances and disclosures
- Price:$2,225,000
New listings near 18431 Coastline Drive
- Open Sun, 1 to 4pmNew
$2,100,000Active3 beds 4 baths1,782 sq. ft.11770 Pacific Coast #E, Malibu, CA 90265
MLS# SR26088169Listed by: PINNACLE ESTATE PROPERTIES, INC. - New
$3,250,000Active0.55 Acres18434 Coastline Drive, Malibu, CA 90265
MLS# 26779017Listed by: COMPASS - New
$699,000Active0.47 Acres2527 Coal Canyon Rd, Malibu, CA 90265
MLS# 26783107Listed by: SOTHEBY'S INTERNATIONAL REALTY - Open Wed, 11am to 2pmNew
$1,259,000Active3 beds 2 baths1,540 sq. ft.6456 Cavalleri Road, Malibu, CA 90265
MLS# 26786831Listed by: RODEO REALTY INC - New
$16,000,000Active3 beds 5 baths5,083 sq. ft.26808 Malibu Cove Colony Drive, Malibu, CA 90265
MLS# 26788831Listed by: CAROLWOOD ESTATES - New
$2,175,000Active2 beds 1 baths1,050 sq. ft.31 Paradise Cove, Malibu, CA 90265
MLS# 26796439Listed by: COMPASS - New
$6,000,000Active4 beds 5 baths4,419 sq. ft.31532 Victoria Point, Malibu, CA 90265
MLS# OC26084966Listed by: HARCOURTS BLUE WATER - New
$13,250,000Active4 beds 4 baths3,653 sq. ft.23649 Malibu Colony Road, Malibu, CA 90265
MLS# 26695991Listed by: NICHOLAS PROPERTY GROUP - New
$1,690,000Active0.38 Acres20572 Little Rock Way, Malibu, CA 90265
MLS# 26788251Listed by: COMPASS - New
$299,888Active5.01 Acres0 Yellow Hill Rd, Malibu, CA 90265
MLS# CV26088404Listed by: CONSUMER REAL ESTATE SOLUTIONS