4738 La Villa Marina #A, Marina Del Rey, CA 90292
Local realty services provided by:Better Homes and Gardens Real Estate Wine Country Group
Upcoming open houses
- Sun, Feb 2201:00 pm - 04:00 pm
- Tue, Feb 2412:00 pm - 02:00 pm
Listed by: bob herrera, cheryl herrera
Office: professional real estate servi
MLS#:26651891
Source:CRMLS
Price summary
- Price:$1,349,000
- Price per sq. ft.:$905.98
- Monthly HOA dues:$475
About this home
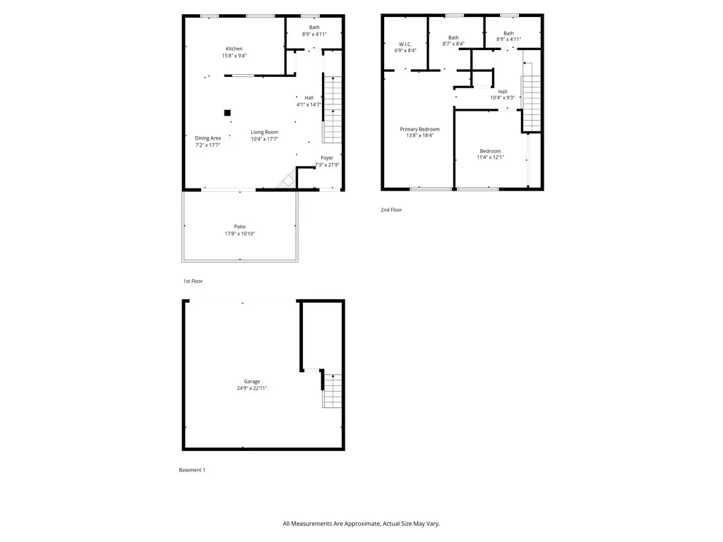
Like fine porcelain, the craftsmanship of this Villa Milano split-level townhouse is refined, timeless, and impeccably composed. Every detail reflects a thoughtful balance of elegance and comfort, where soft white and ecru tones are accented by striking notes of black and gold, layered with subtle textures that speak to NOF Design's sustainable, design-forward philosophy where beauty, purpose, and efficiency exist in perfect harmony. This residence has been meticulously curated from top to bottom, featuring elevated finishes throughout: large plank engineered European oak hard wood flooring, double pane windows and sliding door, electric fireplace, custom cabinetry, premium appliances, refined hardware, designer lighting, fluted porcelain tilework, bespoke closets, and more. The result is a rare pride-of-ownership offering that seamlessly supports a wide range of lifestyles and daily needs. Set within a beautifully landscaped, gated community in the heart of Marina del Rey, this expansive architectural floor plan showcases a light-filled two-bedroom, two-and-a-half-bath layout with a private patio, direct-entry side-by-side two-car garage, and additional storage. Natural light flows effortlessly through the split-level design, enhancing the home's sense of openness and tranquility. Residents enjoy resort-style amenities including a pool, sauna, manicured greenbelts, and pet-friendly living. HOA dues include water, Spectrum TV and internet service, Wi-Fi modem, and two DVRs offering both convenience and value. Beyond the gates, the neighborhood delivers an exceptional coastal lifestyle with easy access to LAX, major freeways, public transportation, markets, boutiques, acclaimed dining, movie theaters, parks, the marina, beaches, and scenic bike paths along with a vibrant calendar of community events. A sophisticated coastal retreat where thoughtful design meets everyday luxury.
Contact an agent
Home facts
- Year built:1966
- Listing ID #:26651891
- Added:4 day(s) ago
- Updated:February 21, 2026 at 02:34 PM
Rooms and interior
- Bedrooms:2
- Total bathrooms:3
- Full bathrooms:1
- Half bathrooms:1
- Living area:1,489 sq. ft.
Heating and cooling
- Heating:Central Furnace
Structure and exterior
- Year built:1966
- Building area:1,489 sq. ft.
- Lot area:1.53 Acres
Finances and disclosures
- Price:$1,349,000
- Price per sq. ft.:$905.98
New listings near 4738 La Villa Marina #A
- New
$1,495,000Active2 beds 2 baths1,227 sq. ft.13700 Marina Pointe Drive #1416, Marina Del Rey, CA 90292
MLS# 26652779Listed by: BERKSHIRE HATHAWAY HOMESERVICES CALIFORNIA PROPERTIES - Open Sat, 1 to 4pmNew
$965,000Active2 beds 2 baths1,240 sq. ft.13320 Beach Avenue #202, Marina Del Rey, CA 90292
MLS# SR26036486Listed by: REAL BROKERAGE TECHNOLOGIES, INC. - Open Sun, 1 to 4pmNew
$4,472,000Active4 beds 4 baths5,170 sq. ft.5302 Pacific Avenue, Marina Del Rey, CA 90292
MLS# 26650557Listed by: BERKSHIRE HATHAWAY HOMESERVICES CALIFORNIA PROPERTIES - Open Sun, 1 to 4pmNew
$965,000Active2 beds 2 baths1,240 sq. ft.13320 Beach Avenue #202, Marina Del Rey, CA 90292
MLS# SR26036486Listed by: REAL BROKERAGE TECHNOLOGIES, INC. - New
$6,950,000Active3 beds 3 baths2,800 sq. ft.4 Jib Street #13, Marina Del Rey, CA 90292
MLS# 226000759Listed by: COLDWELL BANKER REALTY - New
$6,950,000Active3 beds 3 baths2,800 sq. ft.4 Jib, Marina del Rey, CA 90292
MLS# 226000759Listed by: COLDWELL BANKER REALTY - Open Sun, 1 to 4pmNew
$829,000Active1 beds 1 baths965 sq. ft.4215 Glencoe Avenue #206, Marina Del Rey, CA 90292
MLS# 26653067Listed by: COMPASS - New
$1,775,000Active2 beds 3 baths1,885 sq. ft.13600 Marina Pointe Drive #1704, Marina Del Rey, CA 90292
MLS# 26651905Listed by: LPT REALTY, INC - New
$1,785,000Active2 beds 3 baths1,830 sq. ft.3111 Via Dolce #404, Marina Del Rey, CA 90292
MLS# 26652375Listed by: COMPASS