308 Yale Road, Menlo Park, CA 94025

Local realty services provided by:Better Homes and Gardens Real Estate Champions
308 Yale Road,Menlo Park, CA 94025
$4,850,000
  • 5 Beds
  • 5 Baths
  • 3,718 sq. ft.
  • Single family
  • Active
Listed by: xin jiang
Office: compass
MLS#:ML82031075
Source:CRMLS

Price summary

  • Price:$4,850,000
  • Price per sq. ft.:$1,304.46

About this home

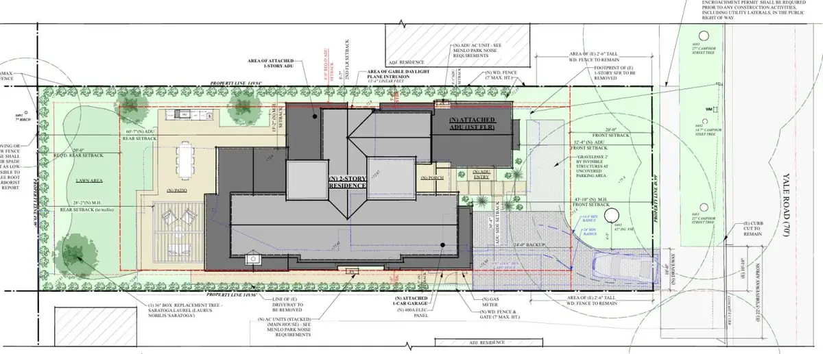
Dont miss your final chance to build your dream home in this truly exceptional location. Approved Vision. Endless Possibility. Nestled on one of the most desirable blocks in Allied Arts, 308 Yale offers a rare opportunity to build your dream home in one of Menlo Parks most coveted neighborhoods. The tree-lined street is surrounded by beautiful newer homes, offering a timeless sense of community and charm. The approved plan, designed by Steve Simpson, one of Silicon Valleys most respected architects, features a clean modern aesthetic and a thoughtfully functional layout ideal for todays lifestyle. Highlights of the approved design include: 5 Beds, 4.5 baths, total 3,718 sq. ft. of living space, including an attached ADU. First floor: one ensuite bedroom plus a private office. Second floor: three ensuite bedrooms. A gourmet kitchen, dining, and family area that flow seamlessly into a deep, private backyard - perfect for entertaining and everyday living. Unmatched convenience close

Contact an agent

contact an agent

Yes, I would like more information. Please use and/or share my information with a BHGRE®  affiliated agent to contact me about my real estate needs. By clicking Send message, I request to be contacted by phone or text message and consent to being contacted by automated means. I understand that my consent to receive calls or texts is not a condition of purchasing any property, goods, or services. Alternatively, I understand that I can access real estate services by email or I can contact the agent myself.

If a BHGRE®  affiliated agent is not available in the area where I need assistance, I agree to be contacted by a real estate agent affiliated with another brand owned or licensed by Anywhere Real Estate (CENTURY 21® , Coldwell Banker® , Corcoran® , ERA® , Sotheby's International Realty® ).
 I acknowledge that I have read and agree to theTerms of useandPrivacy notice

Home facts

  • Year built:2026
  • Listing ID #:ML82031075
  • Added:51 day(s) ago
  • Updated:March 06, 2026 at 11:42 AM

Rooms and interior

  • Bedrooms:5
  • Total bathrooms:5
  • Full bathrooms:4
  • Half bathrooms:1
  • Living area:3,718 sq. ft.

Heating and cooling

  • Cooling:Central Air
  • Heating:Central

Structure and exterior

  • Roof:Metal
  • Year built:2026
  • Building area:3,718 sq. ft.
  • Lot area:0.17 Acres

Schools

  • High school:Menlo-Atherton
  • Middle school:Hillview
  • Elementary school:Oak Knoll

Utilities

  • Water:Public
  • Sewer:Public Sewer

Finances and disclosures

  • Price:$4,850,000
  • Price per sq. ft.:$1,304.46
The information being provided by California Regional MLS (Southern California) is for the consumer's personal, non-commercial use and may not be used for any purpose other than to identify prospective properties consumer may be interested in purchasing. Any information relating to real estate for sale referenced on this web site comes from the Internet Data Exchange (IDX) program of the California Regional MLS (Southern California). Better Homes and Gardens Real Estate Champions is not a Multiple Listing Service (MLS), nor does it offer MLS access. This website is a service of Better Homes and Gardens Real Estate Champions, a broker participant of California Regional MLS (Southern California). This web site may reference real estate listing(s) held by a brokerage firm other than the broker and/or agent who owns this web site. The accuracy of all information, regardless of source, including but not limited to open house information, square footages and lot sizes, is deemed reliable but not guaranteed and should be personally verified through personal inspection by and/or with the appropriate professionals. The data contained herein is copyrighted by California Regional MLS (Southern California) and is protected by all applicable copyright laws. Any unauthorized dissemination of this information is in violation of copyright laws and is strictly prohibited. Copyright 2021 California Regional MLS (Southern California). All rights reserved.