211 Via Dijon, Newport Beach, CA 92663
Local realty services provided by:Better Homes and Gardens Real Estate Royal & Associates
211 Via Dijon,Newport Beach, CA 92663
$4,200,000
- 3 Beds
- 4 Baths
- 2,108 sq. ft.
- Single family
- Active
Listed by: jon flagg
Office: pacific sotheby's int'l realty
MLS#:CRNP25234271
Source:CAMAXMLS
Price summary
- Price:$4,200,000
- Price per sq. ft.:$1,992.41
- Monthly HOA dues:$133.33
About this home
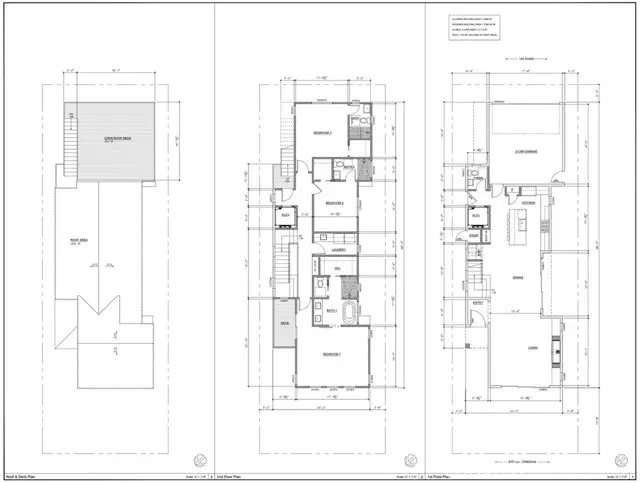
Build Your Dream Home on Lido Isle – Shovel-Ready Opportunity An exceptional opportunity awaits on Lido Isle to create your custom coastal residence without the delays of starting from scratch. The seller has completed all of the heavy lifting-architecture, city, HOA, and engineering approvals-so that the next owner can hit the ground running once the County records the new parcel number. This “shovel-ready†lot includes fully designed plans for a sophisticated 3-bedroom, 3.5-bath home featuring an elevator and rooftop deck, thoughtfully conceived to capture the relaxed yet refined essence of island living. Set within Newport Beach's premier island enclave, this property offers convenient proximity to the Lido Marina Village, yacht club, tennis and pickleball courts, and the island's private beaches. Enjoy the rare advantage of beginning your build immediately in one of coastal Orange County's most desirable neighborhoods-an ideal opportunity to bring your vision to life on Lido Isle. Note: There is not a structure currently on the parcel. Offering is for a lot with plans to build, which will be approved once the APN is recorded. Prior lot was split into two parcels.
Contact an agent
Home facts
- Year built:2025
- Listing ID #:CRNP25234271
- Added:48 day(s) ago
- Updated:November 25, 2025 at 02:46 PM
Rooms and interior
- Bedrooms:3
- Total bathrooms:4
- Full bathrooms:3
- Living area:2,108 sq. ft.
Heating and cooling
- Cooling:Central Air
- Heating:Forced Air
Structure and exterior
- Roof:Slate
- Year built:2025
- Building area:2,108 sq. ft.
- Lot area:0.06 Acres
Utilities
- Water:Public
Finances and disclosures
- Price:$4,200,000
- Price per sq. ft.:$1,992.41
New listings near 211 Via Dijon
- New
$2,750,000Active3 beds 4 baths2,651 sq. ft.2127 Cresta, Newport Beach, CA 92660
MLS# PW25265639Listed by: REAL BROKERAGE TECHNOLOGIES - New
$2,750,000Active3 beds 4 baths2,651 sq. ft.2127 Cresta, Newport Beach, CA 92660
MLS# PW25265639Listed by: REAL BROKERAGE TECHNOLOGIES - New
$2,750,000Active3 beds 4 baths2,651 sq. ft.2127 Cresta, Newport Beach, CA 92660
MLS# PW25265639Listed by: REAL BROKERAGE TECHNOLOGIES - New
$949,000Active4 beds 5 baths3,117 sq. ft.1703 Plaza Del Sur #2, Newport Beach, CA 92661
MLS# CL25621153Listed by: PACASO INC. - New
$4,995,000Active4 beds 6 baths2,108 sq. ft.303 Fernleaf, Corona Del Mar (newport Beach), CA 92625
MLS# CROC25235183Listed by: COMPASS - New
$4,995,000Active4 beds 6 baths2,116 sq. ft.305 Fernleaf, Corona Del Mar (newport Beach), CA 92625
MLS# CROC25235247Listed by: COMPASS - New
$3,500,000Active2 beds 3 baths1,401 sq. ft.303 Fernleaf, Corona Del Mar (newport Beach), CA 92625
MLS# CROC25235386Listed by: COMPASS - New
$3,500,000Active2 beds 4 baths1,401 sq. ft.305 Fernleaf, Corona Del Mar (newport Beach), CA 92625
MLS# CROC25235408Listed by: COMPASS - New
$4,995,000Active4 beds 6 baths2,108 sq. ft.303 Fernleaf, Corona Del Mar (newport Beach), CA 92625
MLS# CROC25235183Listed by: COMPASS - New
$4,995,000Active4 beds 6 baths2,116 sq. ft.305 Fernleaf, Corona Del Mar (newport Beach), CA 92625
MLS# CROC25235247Listed by: COMPASS