9847 A Street, Oakland, CA 94603

Local realty services provided by:Better Homes and Gardens Real Estate Reliance Partners
9847 A Street,Oakland, CA 94603
$995,000
  • 8 Beds
  • 4 Baths
  • 3,104 sq. ft.
  • Multi-family
  • Pending
Listed by: vincent heung, anthony cheng
Office: compass
MLS#:425088709
Source:CABCREIS

Price summary

  • Price:$995,000
  • Price per sq. ft.:$320.55

About this home

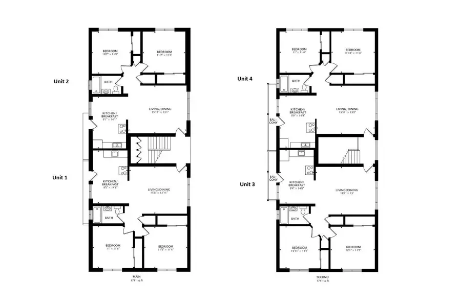
Welcome to 9847 A St, a rare opportunity to own a completely vacant 4-plex in a convenient Oakland location with easy access to both 580 & 880. All four units are turnkey and delivered vacantready for premium market rents from day one. Each unit features 2 bedrooms and 1 bathroom. This low-maintenance property is ideal for investors, all units are individually metered for water, gas, and electricity, keeping operating expenses minimal and management simple. Inside, every unit has been refreshed with new interior paint, updated light fixtures, double-pane windows, equipped with wall heater and either tile or laminate flooring throughout. The kitchens include modern cabinets, stone countertops, gas stoves, and vented hood exhausts. Bathrooms offer bathtub-over-shower setups, good-sized vanities, tile flooring, and exhaust fans. Outdoor amenities include private balconies for the upstairs units, private fenced yards for the lower units, as well as a shared backyard for additional tenant

Contact an agent

contact an agent

Yes, I would like more information. Please use and/or share my information with a BHGRE®  affiliated agent to contact me about my real estate needs. By clicking Send message, I request to be contacted by phone or text message and consent to being contacted by automated means. I understand that my consent to receive calls or texts is not a condition of purchasing any property, goods, or services. Alternatively, I understand that I can access real estate services by email or I can contact the agent myself.

If a BHGRE®  affiliated agent is not available in the area where I need assistance, I agree to be contacted by a real estate agent affiliated with another brand owned or licensed by Anywhere Real Estate (CENTURY 21® , Coldwell Banker® , Corcoran® , ERA® , Sotheby's International Realty® ).
 I acknowledge that I have read and agree to theTerms of useandPrivacy notice

Home facts

  • Year built:1963
  • Listing ID #:425088709
  • Added:84 day(s) ago
  • Updated:February 10, 2026 at 08:53 AM

Rooms and interior

  • Bedrooms:8
  • Total bathrooms:4
  • Full bathrooms:4
  • Living area:3,104 sq. ft.

Heating and cooling

  • Heating:Natural Gas, Wall Furnace

Structure and exterior

  • Year built:1963
  • Building area:3,104 sq. ft.
  • Lot area:0.12 Acres

Utilities

  • Water:Public, Separate Meter
  • Sewer:Public Sewer

Finances and disclosures

  • Price:$995,000
  • Price per sq. ft.:$320.55
The information being provided by San Francisco Association of REALTORS is for the consumer's personal, non-commercial use and may not be used for any purpose other than to identify prospective properties consumer may be interested in purchasing. Any information relating to real estate for sale referenced on this web site comes from the Internet Data Exchange (IDX) program of the San Francisco Association of REALTORS. This web site may reference real estate listing(s) held by a brokerage firm other than the broker and/or agent who owns this web site. The accuracy of all information, regardless of source, including but not limited to open house information, square footages and lot sizes, is deemed reliable but not guaranteed and should be personally verified through personal inspection by and/or with the appropriate professionals. The data contained herein is copyrighted by San Francisco Association of REALTORS and is protected by all applicable copyright laws. Any unauthorized dissemination of this information is in violation of copyright laws and is strictly prohibited.