1200 Opal Street #7, Redondo Beach, CA 90277
Local realty services provided by:Better Homes and Gardens Real Estate Clarity
1200 Opal Street #7,Redondo Beach, CA 90277
$949,000
- 3 Beds
- 3 Baths
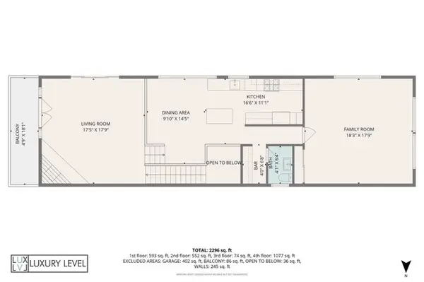
- 1,656 sq. ft.
- Townhouse
- Active
Listed by: sally whitty
Office: tower-60
MLS#:SB26018763
Source:San Diego MLS via CRMLS
Price summary
- Price:$949,000
- Price per sq. ft.:$573.07
- Monthly HOA dues:$700
About this home
Welcome to #7! This is without doubt a fabulous remodeled townhouse, located in Peppertree Village, a true hidden gem. This sought after, peaceful home features 3 bedrooms, 3 bathrooms, and an enclosed patio, and is nestled amongst lush landscaping and tranquil streams! Entry is through double doors into a spacious light filled living room with gas fireplace and large sun drenched patio off perfect for entertaining and outdoor living, along with a large dining room area. Adjacent to the dining area is a remodeled, spacious sunny kitchen with stainless steel/ Viking appliances. On the ground floor there is also a laundry room and a powder room. Upstairs the spacious primary suite boasts ample closets and a walk-in closet, with access to a spacious sunny atrium. The second and third bedroom have ample closets, and have some views of city and mountain ranges. The unit also comes with 2 highly desirable oversized spacious end parking spaces the largest spaces on the complex. The townhouse has new flooring, smooth ceilings, ample storage throughout and has been recently remodeled. Peppertree Village is a secure gated complex in a prime location, on a cul de sac street, with a fabulous pool/ spa and generous guest parking spaces. It is close to the beach, the Pier, the Riviera Village, shops and restaurants and is located in a great school district. HOA includes pool and spa, some utilities (water, trash and gas), basic cable, and EQ insurance. Would also make a great rental property. What more could you want?...
Contact an agent
Home facts
- Year built:1974
- Listing ID #:SB26018763
- Added:47 day(s) ago
- Updated:March 15, 2026 at 02:14 PM
Rooms and interior
- Bedrooms:3
- Total bathrooms:3
- Full bathrooms:2
- Half bathrooms:1
- Flooring:Tile, Wood
- Kitchen Description:Dishwasher, Disposal, Electric Range, Microwave, Refrigerator, Vented Exhaust Fan
- Living area:1,656 sq. ft.
Heating and cooling
- Heating:Radiant
Structure and exterior
- Year built:1974
- Building area:1,656 sq. ft.
- Exterior Features:Concrete, Enclosed, Patio
- Levels:2 Story
Utilities
- Water:Public, Water Connected
- Sewer:Public Sewer, Sewer Connected
Finances and disclosures
- Price:$949,000
- Price per sq. ft.:$573.07
Features and amenities
- Appliances:Dishwasher, Disposal, Dryer, Electric Range, Microwave, Refrigerator, Vented Exhaust Fan, Washer
- Laundry features:Dryer, Washer
- Pool features:Community/Common, Pool
Parking
- Total parking spaces:2
- Parking description:Assigned, Gated
- Garage spaces:2
New listings near 1200 Opal Street #7
- New
$1,399,000Active4 beds 2 baths1,539 sq. ft.1004 Firmona, Redondo Beach, CA 90278
MLS# AR26056052Listed by: COLDWELL BANKER ENVISION - Open Sun, 1 to 4pmNew
$1,865,000Active4 beds 3 baths2,146 sq. ft.619 Beryl Street, Redondo Beach, CA 90277
MLS# ML82038630Listed by: INTERO REAL ESTATE SERVICES - New
$1,675,000Active2 beds 3 baths1,223 sq. ft.535 Esplanade #601, Redondo Beach, CA 90277
MLS# SB26050178Listed by: KANE COMMERCIAL REAL ESTATE - New
$1,321,000Active2 beds 2 baths1,458 sq. ft.510 The Village #203, Redondo Beach, CA 90277
MLS# SB26054771Listed by: REDFIN CORPORATION - New
$1,321,000Active2 beds 2 baths1,458 sq. ft.510 The Village #203, Redondo Beach, CA 90277
MLS# SB26054771Listed by: REDFIN CORPORATION - Open Sun, 1 to 4pmNew
$1,559,000Active3 beds 2 baths2,104 sq. ft.426 Camino Real, Redondo Beach, CA 90277
MLS# SB26053252Listed by: COMPASS - New
$1,375,000Active2 beds 2 baths1,136 sq. ft.240 The #310, Redondo Beach, CA 90277
MLS# CL26660819Listed by: ESTATEX INC. - Open Sun, 1 to 4pmNew
$1,450,000Active2 beds 3 baths1,400 sq. ft.1301 S Catalina #L, Redondo Beach, CA 90277
MLS# SB26032303Listed by: VISTA SOTHEBYS INTERNATIONAL REALTY - Open Sun, 1 to 4pmNew
$1,600,000Active4 beds 3 baths1,594 sq. ft.907 Diamond Street, Redondo Beach, CA 90277
MLS# SB26052980Listed by: COMPASS - Open Sun, 1:30 to 4:30pmNew
$649,000Active2 beds 2 baths895 sq. ft.1108 Camino Real #306, Redondo Beach, CA 90277
MLS# SB26054186Listed by: ESTATE PROPERTIES