2016 Farrell Avenue #B, Redondo Beach, CA 90278

Local realty services provided by:Better Homes and Gardens Real Estate Oak Valley
2016 Farrell Avenue #B,Redondo Beach, CA 90278
$2,345,000
  • 4 Beds
  • 4 Baths
  • 2,707 sq. ft.
  • Townhouse
  • Active
Upcoming open houses
  • Sat, Mar 21
    02:00 pm - 04:00 pm
Listed by: debbie lynn setting
Office: classic design properties
MLS#:SB25271747
Source:CRMLS

Price summary

  • Price:$2,345,000
  • Price per sq. ft.:$866.27
  • Monthly HOA dues:$299

About this home

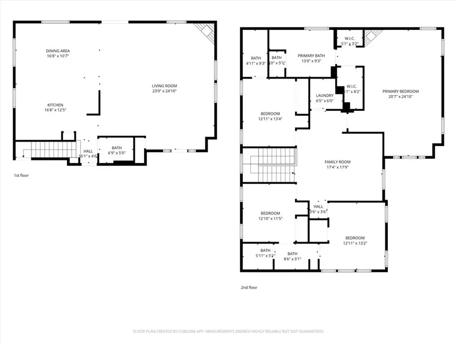
Welcome to a stunning new construction townhome, the epitome of luxury California Coastal living. This is the rear unit of two offering the privacy for your retreat of relaxation. Upon entering the living room the open concept allows you to absorb the beauty of this home. You will be able to see the living room which opens to the backyard, great for BBQ’s and entertaining. The kitchen has a large island perfect for family living or entertaining guests. The kitchen is completed with stainless steel appliances and custom cabinetry. Retreat to the second level where all bedrooms are located. The Primary Bedroom with ensuite bath comes with a cozy fireplace, separate seating area, custom walk in dual closets, soaking tub, dual sinks, and walk in shower. There is a 2nd bedroom with a private ensuite bath as well. The remaining 2 bedrooms include built in desks, custom closets, and a Jack and Jill full bath. The laundry room conveniently located completes the 2nd level. Do not miss out on...

Contact an agent

contact an agent

Yes, I would like more information. Please use and/or share my information with a BHGRE®  affiliated agent to contact me about my real estate needs. By clicking Send message, I request to be contacted by phone or text message and consent to being contacted by automated means. I understand that my consent to receive calls or texts is not a condition of purchasing any property, goods, or services. Alternatively, I understand that I can access real estate services by email or I can contact the agent myself.

If a BHGRE®  affiliated agent is not available in the area where I need assistance, I agree to be contacted by a real estate agent affiliated with another brand owned or licensed by Anywhere Real Estate (CENTURY 21® , Coldwell Banker® , Corcoran® , ERA® , Sotheby's International Realty® ).
 I acknowledge that I have read and agree to theTerms of useandPrivacy notice

Home facts

  • Year built:2025
  • Listing ID #:SB25271747
  • Added:97 day(s) ago
  • Updated:March 18, 2026 at 08:32 PM

Rooms and interior

  • Bedrooms:4
  • Total bathrooms:4
  • Full bathrooms:3
  • Half bathrooms:1
  • Kitchen Description:Dishwasher, Gas Oven, Gas Range, Microwave, Range Hood, Refrigerator, Self Cleaning Oven, Water To Refrigerator
  • Bedroom Description:All Bedrooms Up
  • Living area:2,707 sq. ft.

Heating and cooling

  • Cooling:Central Air
  • Heating:Central Furnace, Fireplaces
  • Central air:Yes

Structure and exterior

  • Year built:2025
  • Building area:2,707 sq. ft.
  • Lot area:0.17 Acres
  • Levels:2 Story

Utilities

  • Water:Public, Water Connected
  • Sewer:Public Sewer, Sewer Connected

Finances and disclosures

  • Price:$2,345,000
  • Price per sq. ft.:$866.27

Features and amenities

  • Appliances:Dishwasher, Disposal, Gas Oven, Gas Range, Microwave, Range Hood, Refrigerator, Self Cleaning Oven
  • Laundry features:Inside, Laundry Room, On Upper Level
  • Amenities:Bar, Ceiling Fans, Fire Detection System, Fire Sprinkler System, Open Floorplan, Recessed Lighting, Smoke Detectors, Walk In Closets

Parking

  • Total parking spaces:2
  • Parking description:Garage
  • Garage:Yes
  • Garage spaces:2
Based on information from California Regional Multiple Listing Service, Inc. as of March 18, 2026 . This information is for your personal, non-commercial use and may not be used for any purpose other than to identify prospective properties you may be interested in purchasing. Display of MLS data is usually deemed reliable but is NOT guaranteed accurate by the MLS. Buyers are responsible for verifying the accuracy of all information and should investigate the data themselves or retain appropriate professionals. Information from sources other than the Listing Agent may have been included in the MLS data. Unless otherwise specified in writing, Broker/Agent has not and will not verify any information obtained from other sources. The Broker/Agent providing the information contained herein may or may not have been the Listing and/or Selling Agent. The information provided is for consumers' personal, non-commercial use and may not be used for any purpose other than to identify prospective properties consumers may be interested in purchasing. All properties are subject to prior sale or withdrawal. All information provided is deemed reliable but is not guaranteed accurate, and should be independently verified.