2972 Pacific Avenue, San Francisco, CA 94115
Local realty services provided by:Better Homes and Gardens Real Estate Reliance Partners
2972 Pacific Avenue,San Francisco, CA 94115
$9,500,000
- 5 Beds
- 6 Baths
- 5,068 sq. ft.
- Single family
- Active
Upcoming open houses
- Tue, Feb 2410:00 am - 12:00 pm
Listed by: nina hatvany
Office: compass
MLS#:426105908
Source:CABCREIS
Price summary
- Price:$9,500,000
- Price per sq. ft.:$1,874.51
About this home
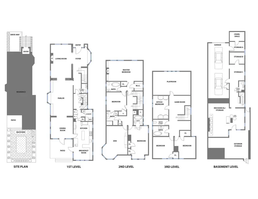
Elegant and timeless, this classic Pacific Heights residence offers a rare opportunity to transform a truly exceptional home on one of the neighborhood's most desirable blocks. Detached on all four sides, the property is filled with natural light, classic architectural detail, and generous proportions that provide an outstanding foundation for thoughtful renovation and expansion. A gracious foyer with high ceilings, original moldings, and a built-in window seat sets the tone. The main level flows beautifully, beginning with a refined living room featuring hardwood floors and a wood-burning fireplace, opening to a parlor or sitting room with paneled wainscoting and leaded windows. At the rear, a formal dining room connects directly to a decked patio and level lawn, offering seamless indoor/outdoor living. The expansive kitchen with central island includes a skylit breakfast area surrounded by windows, with direct access to the patio. Leading back out to the foyer is a wall of pantry storage, a laundry room, back stairs, and a convenient powder room. Ascending the main staircase, the second floor is anchored by a spacious primary suite with south-facing windows, fireplace, built-in shelving, two walk-in closets, and an ensuite bath. Two additional bedrooms and bathrooms, as well as an expansive den, complete this level. The third level presents excellent versatility with a playroom, office, sitting area, split bath, and two more bedrooms with a peek of the Bay from north-facing windows. The lower level spans the footprint of the home and offers exceptional expansion potential with excellent ceiling height, a two-car garage, four interior storage rooms, a second laundry area, and a half bath. A tradesman's alley brings in additional light and provides convenient access to the garden and to an exterior storage area underneath the breakfast room. A rare opportunity to elevate a classic Pacific
Contact an agent
Home facts
- Year built:1895
- Listing ID #:426105908
- Added:1 day(s) ago
- Updated:February 23, 2026 at 09:47 PM
Rooms and interior
- Bedrooms:5
- Total bathrooms:6
- Full bathrooms:4
- Half bathrooms:2
- Living area:5,068 sq. ft.
Heating and cooling
- Heating:Central
Structure and exterior
- Year built:1895
- Building area:5,068 sq. ft.
- Lot area:0.08 Acres
Utilities
- Water:Public
- Sewer:Public Sewer
Finances and disclosures
- Price:$9,500,000
- Price per sq. ft.:$1,874.51
New listings near 2972 Pacific Avenue
- Open Tue, 9 to 11amNew
$1,249,000Active2 beds 2 baths1,240 sq. ft.88 King Street #616, San Francisco, CA 94107
MLS# 426097594Listed by: SOTHEBY'S INTERNATIONAL REALTY - New
$725,000Active1 beds 1 baths833 sq. ft.301 Mission Street #7C, San Francisco, CA 94105
MLS# 426103475Listed by: LUXE PLACES INTERNATIONAL REALTY - Open Tue, 10am to 12pmNew
$2,999,000Active0.08 Acres2652 California Street, San Francisco, CA 94115
MLS# 426105920Listed by: COMPASS - Open Tue, 2 to 4pmNew
$1,295,000Active4 beds 4 baths2,250 sq. ft.3369 Cesar Chavez Street, San Francisco, CA 94110
MLS# 426105985Listed by: SOTHEBY'S INTERNATIONAL REALTY - Open Tue, 9 to 11amNew
$3,000,000Active4 beds 6 baths3,660 sq. ft.1262 Sacramento Street, San Francisco, CA 94108
MLS# 426106004Listed by: COMPASS - Open Sun, 2 to 4pmNew
$799,000Active1 beds 1 baths829 sq. ft.461 2nd Street #234C, San Francisco, CA 94107
MLS# 425022753Listed by: COMPASS - Open Tue, 12 to 2pmNew
$3,495,000Active4 beds 4 baths2,576 sq. ft.323 Eureka Street, San Francisco, CA 94114
MLS# 426099881Listed by: COMPASS - Open Tue, 9 to 11amNew
$2,995,000Active2 beds 2 baths1,300 sq. ft.999 Green Street #1801, San Francisco, CA 94133
MLS# 426102940Listed by: SOTHEBY'S INTERNATIONAL REALTY - New
$1,595,000Active4 beds 2 baths2,500 sq. ft.3427 Lincoln Way, San Francisco, CA 94122
MLS# 426106005Listed by: COMPASS