419 Transport, Tustin, CA 92782
Local realty services provided by:Better Homes and Gardens Real Estate Napolitano & Associates
419 Transport,Tustin, CA 92782
$1,688,000
- 3 Beds
- 3 Baths
- 2,546 sq. ft.
- Single family
- Active
Listed by: taylor mccook, daniel choi
Office: coldwell banker realty
MLS#:OC25261727
Source:San Diego MLS via CRMLS
Price summary
- Price:$1,688,000
- Price per sq. ft.:$663
- Monthly HOA dues:$459
About this home
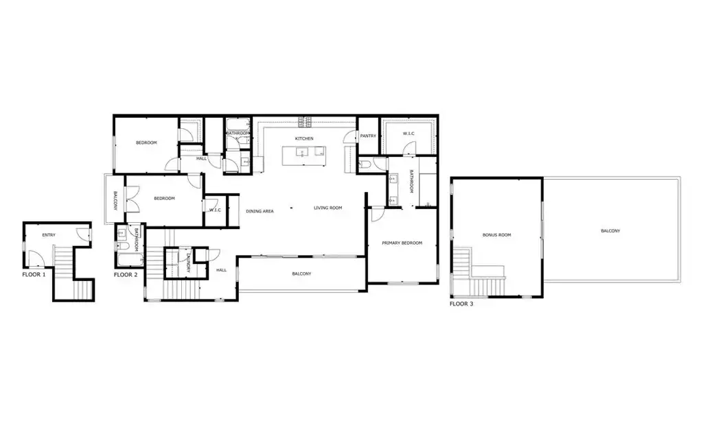
Welcome to 419 Transport in the Levity community at Tustin Legacy, a former model home with a premium corner location offering ample natural light and elevated views. This three-story, single-level living flat features 3 bedrooms, 3 bathrooms on the same floor, and a versatile third-level entertainment space that opens to a spacious rooftop deck. The 2,546 sqft home impresses with modern, designer finishes at every turn, from motorized roller shades and lighting to wallpaper accents, custom shiplap, and large-format porcelain tile throughout. The main level lives like a single-story home, with the kitchen, great room, bedrooms, baths, and laundry all situated on one floor. The expansive great room is anchored by a striking floor-to-ceiling tile fireplace wall and a balcony that overlooks the community area. The kitchen blends style and function with quartz countertops, a full herringbone backsplash, a walk-in pantry, GE Profile stainless steel appliances, pendant lighting over the generous island, and integrated under-cabinet lighting. All three bedrooms are thoughtfully positioned on this level, including a refined primary suite, a secondary ensuite bedroom enhanced by French doors that open to a charming Juliet balcony, and a spacious third room. The primary suite offers large windows, a feature wall backdrop, and an ensuite bath with a KOLER smart bidet toilet, an oversized walk-in shower with stacked glossy white subway tile, and hexagon mosaic flooring. The third floor features a bonus room with a dry bar and a charcoal-toned tile fireplace wall set in a modern herringbone pattern. The stacking doors open to the rooftop deck, ideal for entertaining, relaxing, or outdoor dining. Additional highlights include a 569 sqft two-car garage with epoxy flooring, storage cabinets, an extra storage closet, a tankless water heater, and an electric vehicle charger. Residents of Levity enjoy resort-style amenities, including a pool, spa, and barbecue area. The location offers exceptional convenience, with easy access to top-rated Legacy Magnet Academy, Victory Park, The District, Newport Beach, and John Wayne Airport.
Contact an agent
Home facts
- Year built:2018
- Listing ID #:OC25261727
- Added:51 day(s) ago
- Updated:January 11, 2026 at 04:30 AM
Rooms and interior
- Bedrooms:3
- Total bathrooms:3
- Full bathrooms:3
- Living area:2,546 sq. ft.
Heating and cooling
- Cooling:Central Forced Air, Whole House Fan
- Heating:Forced Air Unit
Structure and exterior
- Year built:2018
- Building area:2,546 sq. ft.
Utilities
- Water:Public, Water Connected
- Sewer:Public Sewer, Sewer Connected
Finances and disclosures
- Price:$1,688,000
- Price per sq. ft.:$663
New listings near 419 Transport
- New
$649,999Active2 beds 2 baths928 sq. ft.1072 San Juan, Tustin, CA 92780
MLS# OC26004228Listed by: COLDWELL BANKER REALTY - Open Sun, 12 to 2pmNew
$1,649,000Active3 beds 2 baths2,242 sq. ft.14322 Acacia Drive, Tustin, CA 92780
MLS# PW26000849Listed by: KATNIK BROTHERS R.E. SERVICES - New
$470,000Active2 beds 2 baths1,047 sq. ft.15502 Williams #O, Tustin, CA 92780
MLS# CROC26003009Listed by: LEGACY 15 REAL ESTATE BROKERS - New
$470,000Active2 beds 2 baths1,047 sq. ft.15502 Williams #O, Tustin, CA 92780
MLS# OC26003009Listed by: LEGACY 15 REAL ESTATE BROKERS - Open Sun, 1 to 4pmNew
$1,188,000Active3 beds 4 baths1,589 sq. ft.280 Tustin Field Drive, Tustin, CA 92782
MLS# OC25272923Listed by: PALISADE REALTY, INC - New
$1,188,000Active3 beds 4 baths1,589 sq. ft.280 Tustin Field Drive, Tustin, CA 92782
MLS# CROC25272923Listed by: PALISADE REALTY, INC - Open Sun, 1 to 4pmNew
$1,188,000Active3 beds 4 baths1,589 sq. ft.280 Tustin Field Drive, Tustin, CA 92782
MLS# OC25272923Listed by: PALISADE REALTY, INC - New
$699,000Active4 beds 3 baths1,392 sq. ft.1722 Mitchell #146, Tustin, CA 92780
MLS# CRPW26002511Listed by: PROPERTIES DOT REALTY INC. - New
$1,250,000Active3 beds 3 baths1,829 sq. ft.13069 Arborwalk, Tustin, CA 92782
MLS# PW26002682Listed by: REMAX TIFFANY REAL ESTATE - New
$888,000Active3 beds 2 baths1,242 sq. ft.2181 Maple Court, Tustin, CA 92780
MLS# CRPW26001673Listed by: KELLER WILLIAMS COASTAL PROP.