15315 Tokay Street, Victorville, CA 92395

Local realty services provided by:Better Homes and Gardens Real Estate Oak Valley
15315 Tokay Street,Victorville, CA 92395
$495,000
  • 0.58 Acres
  • Lots / Land
  • Active
Listed by: barry goodrich
Office: keller williams realty
MLS#:IV25036206
Source:CRMLS

Price summary

  • Price:$495,000

About this home

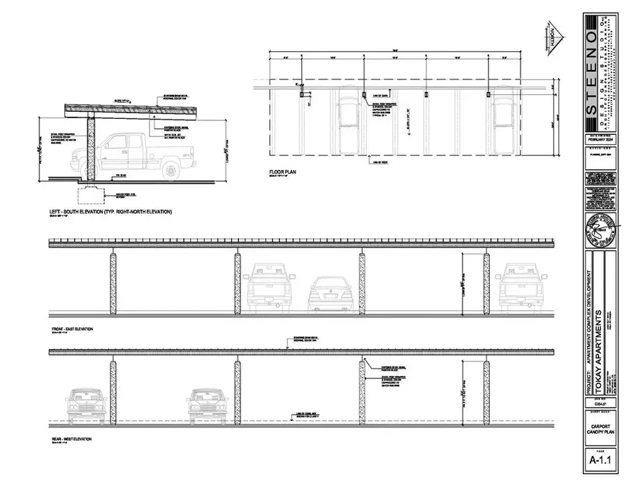
HUGE PRICE REDUCTION !! Shovel-Ready 8-Unit Apartment Complex – Prime Investment Opportunity! Seller financing options available. Skip the wait and start building ASAP with this fully approved 8-unit apartment complex! All plans approved and in place, saving you up to two years of work and ensuring a hassle-free development process. Located in a high-demand area, this project is designed to maximize rental income and deliver strong returns. Each unit is projected to rent for $2,200 per month, generating a value at a 6% cap rate of $3,500,000—a perfect formula for long-term success. Don’t miss this rare shovel-ready opportunity to secure a high-performing asset. Plans and drawings are under the supplements tab. Act now—opportunities like this won’t last! Contact us today for details! This is your chance to hit the ground running. and secure this shovel-ready opportunity!

Contact an agent

contact an agent

Yes, I would like more information from BHGRE®. Please use and/or share my information with an BHGRE affiliated agent to contact me about my real estate needs. By clicking Send message, I agree an BHGRE affiliated agent may contact me by phone or text message including by automated means about real estate services, and that I can access real estate services without providing my phone number. I acknowledge that I have read and agree to theTerms of useandPrivacy notice

Home facts

  • Listing ID #:IV25036206
  • Added:285 day(s) ago
  • Updated:December 02, 2025 at 11:46 AM

Structure and exterior

  • Lot area:0.58 Acres

Utilities

  • Water:Public, Water Available
  • Sewer:Public Sewer, Sewer Available

Finances and disclosures

  • Price:$495,000
The information being provided by California Regional MLS (Southern California) is for the consumer's personal, non-commercial use and may not be used for any purpose other than to identify prospective properties consumer may be interested in purchasing. Any information relating to real estate for sale referenced on this web site comes from the Internet Data Exchange (IDX) program of the California Regional MLS (Southern California). Better Homes and Gardens Real Estate Oak Valley is not a Multiple Listing Service (MLS), nor does it offer MLS access. This website is a service of Better Homes and Gardens Real Estate Oak Valley, a broker participant of California Regional MLS (Southern California). This web site may reference real estate listing(s) held by a brokerage firm other than the broker and/or agent who owns this web site. The accuracy of all information, regardless of source, including but not limited to open house information, square footages and lot sizes, is deemed reliable but not guaranteed and should be personally verified through personal inspection by and/or with the appropriate professionals. The data contained herein is copyrighted by California Regional MLS (Southern California) and is protected by all applicable copyright laws. Any unauthorized dissemination of this information is in violation of copyright laws and is strictly prohibited. Copyright 2021 California Regional MLS (Southern California). All rights reserved.