15 Holcomb, Walnut Creek, CA 94596

Local realty services provided by:Better Homes and Gardens Real Estate Reliance Partners
15 Holcomb,Walnut Creek, CA 94596
$1,999,000
  • 0.52 Acres
  • Lots / Land
  • Active
Listed by: gary reed714-612-1144
Office: blackstar realty
MLS#:OC25257014
Source:CAREIL

Price summary

  • Price:$1,999,000

About this home

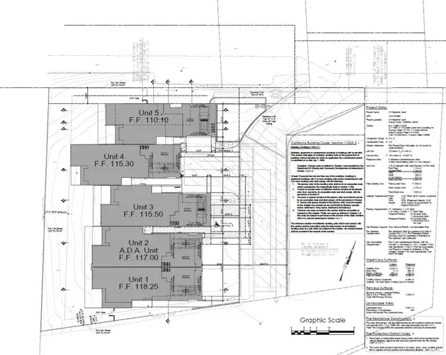
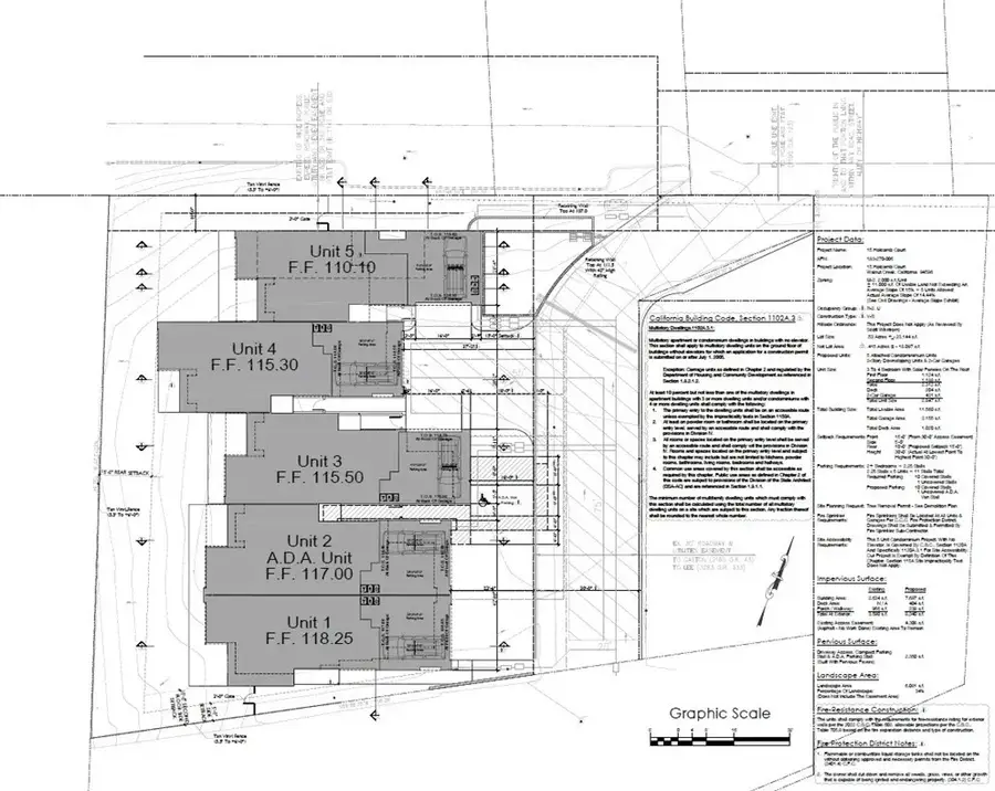
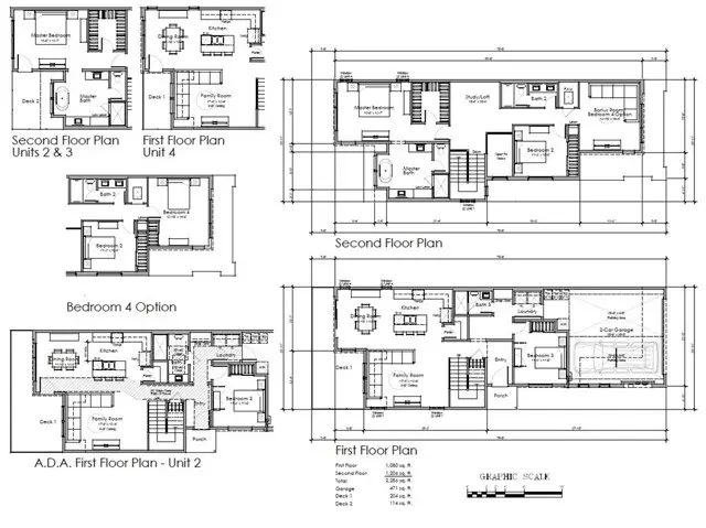
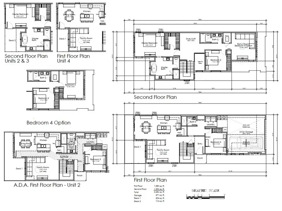
This residential lot has preliminary approved for 5 unit luxury townhomes with the city of Walnut Creek. The included pictures is a rendering of the project and a sample of the preliminary approved plans The project has excellent views to the north from all units.

Contact an agent

contact an agent

Yes, I would like more information. Please use and/or share my information with a BHGRE®  affiliated agent to contact me about my real estate needs. By clicking Send message, I request to be contacted by phone or text message and consent to being contacted by automated means. I understand that my consent to receive calls or texts is not a condition of purchasing any property, goods, or services. Alternatively, I understand that I can access real estate services by email or I can contact the agent myself.

If a BHGRE®  affiliated agent is not available in the area where I need assistance, I agree to be contacted by a real estate agent affiliated with another brand owned or licensed by Anywhere Real Estate (CENTURY 21® , Coldwell Banker® , Corcoran® , ERA® , Sotheby's International Realty® ).
 I acknowledge that I have read and agree to theTerms of useandPrivacy notice

Home facts

  • Listing ID #:OC25257014
  • Added:136 day(s) ago
  • Updated:February 17, 2026 at 05:36 PM

Structure and exterior

  • Lot area:0.52 Acres

Finances and disclosures

  • Price:$1,999,000
MLS LogoThe information being provided by Mlslistings Inc is for the consumer's personal, non-commercial use and may not be used for any purpose other than to identify prospective properties consumer may be interested in purchasing. Any information relating to real estate for sale referenced on this web site comes from the Internet Data Exchange (IDX) program of the Mlslistings Inc. Better Homes and Gardens Real Estate Reliance Partners is not a Multiple Listing Service (MLS), nor does it offer MLS access. This website is a service of Better Homes and Gardens Real Estate Reliance Partners, a broker participant of Mlslistings Inc. This web site may reference real estate listing(s) held by a brokerage firm other than the broker and/or agent who owns this web site. The accuracy of all information, regardless of source, including but not limited to open house information, square footages and lot sizes, is deemed reliable but not guaranteed and should be personally verified through personal inspection by and/or with the appropriate professionals. The data contained herein is copyrighted by Mlslistings Inc and is protected by all applicable copyright laws. Any unauthorized dissemination of this information is in violation of copyright laws and is strictly prohibited. Properties in listings may have been sold or may no longer be available. Copyright 2026 Mlslistings Inc. All rights reserved.