16775 E Kettle Avenue, Centennial, CO 80016
Local realty services provided by:Better Homes and Gardens Real Estate Kenney & Company
16775 E Kettle Avenue,Centennial, CO 80016
$693,700
- 4 Beds
- 4 Baths
- 2,356 sq. ft.
- Single family
- Active
Upcoming open houses
- Sun, Mar 2211:00 am - 02:00 pm
Listed by: tom ullrichtomrman@aol.com,303-910-8436
Office: re/max professionals
MLS#:5786598
Source:ML
Price summary
- Price:$693,700
- Price per sq. ft.:$294.44
- Monthly HOA dues:$44
About this home
**Available with rates as low as 3.75% when using builder’s preferred lender – terms and conditions apply – ask for details****Contact builder today about Special Financing for this home **
Available NOW!
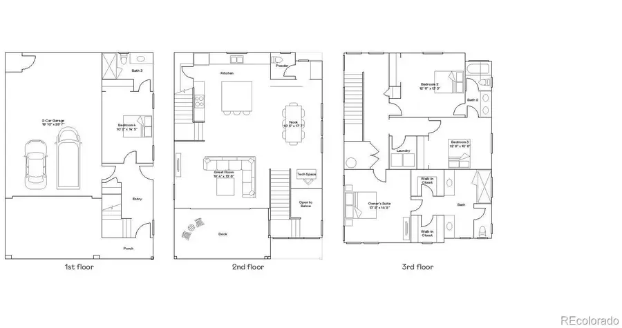
Beautiful Boulevard 3-story plan in the brand new Vermilion community has a beautiful outdoor living balcony and features 4 bedrooms (3 upper / 1 lower), 3.5 baths, great room, kitchen, laundry, 2.5 car garage and a crawlspace. Gorgeous finishes and upgrades throughout including luxury vinyl plank flooring, stainless steel appliances, Quartz package, low maintenance backyard space and more. The builder provides the latest in energy efficiency and state of the art technology with several fabulous floorplans to choose from. Energy efficiency, and technology/connectivity seamlessly blended with luxury to make your new house a home. Vermilion Creek offers single family homes for every lifestyle. Close to dining, shopping, entertainment and other amenities. Association fee subject to change. Photos and the Matterport 3D tour are of a model home and are provided for illustrative purposes only. Features, finishes, and layout may vary and are subject to change. Washer / Dryer Included / Private Fencing / Whole House Blinds / Adjacent to open lawn area. Enjoy easy access to Tagawa Gardens and the Cherry Creek Trails right outside your neighborhood....
Contact an agent
Home facts
- Year built:2026
- Listing ID #:5786598
Rooms and interior
- Bedrooms:4
- Total bathrooms:4
- Full bathrooms:1
- Half bathrooms:1
- Flooring:Carpet, Tile, Vinyl
- Kitchen Description:Dishwasher, Disposal, Kitchen Island, Microwave, Oven, Refrigerator
- Basement:Yes
- Basement Description:Crawl Space
- Living area:2,356 sq. ft.
Heating and cooling
- Cooling:Central Air
- Heating:Electric
- Central air:Yes
Structure and exterior
- Roof:Composition
- Year built:2026
- Building area:2,356 sq. ft.
- Lot area:0.06 Acres
- Construction Materials:Frame
- Exterior Features:Front Porch
- Levels:3 or More Stories
Schools
- High school:Grandview
- Middle school:Liberty
- Elementary school:Red Hawk Ridge
Utilities
- Water:Public
- Sewer:Public Sewer
Finances and disclosures
- Price:$693,700
- Price per sq. ft.:$294.44
- Tax amount:$8,186 (2025)
Features and amenities
- Laundry features:In Unit
- Amenities:Carbon Monoxide Detector(s), Double Pane Windows, Smoke Detector(s)
Parking
- Total parking spaces:2
- Parking description:Concrete Driveway
- Garage:Yes
- Garage spaces:2
New listings near 16775 E Kettle Avenue
- New
$475,000Active4 beds 4 baths1,707 sq. ft.5323 S Malta Way, Centennial, CO 80015
MLS# 9419189Listed by: EXIT REALTY DTC, CHERRY CREEK, PIKES PEAK. - Coming Soon
$1,550,000Coming Soon5 beds 4 baths8464 E Geddes Place, Centennial, CO 80112
MLS# 1872669Listed by: GUIDE REAL ESTATE - New
$733,400Active4 beds 4 baths2,434 sq. ft.7713 S Mobile Way, Centennial, CO 80016
MLS# 5641219Listed by: RE/MAX PROFESSIONALS - Open Sun, 1 to 3pmNew
$425,000Active3 beds 2 baths1,253 sq. ft.6992 S Knolls Way, Centennial, CO 80122
MLS# 7821843Listed by: RE/MAX SYNERGY - New
$520,000Active2 beds 2 baths2,286 sq. ft.8228 E Phillips Place, Centennial, CO 80112
MLS# 6684018Listed by: RE/MAX LEADERS - New
$235,000Active1 beds 1 baths732 sq. ft.7105 S Gaylord Street #B1, Centennial, CO 80122
MLS# 8309609Listed by: YOUR CASTLE REAL ESTATE INC - New
$550,000Active5 beds 3 baths2,501 sq. ft.5250 S Yampa Court, Centennial, CO 80015
MLS# 7834106Listed by: COLDWELL BANKER REALTY 18 - Coming Soon
$725,000Coming Soon3 beds 3 baths364 E Orchard Road, Centennial, CO 80121
MLS# 3229178Listed by: KENTWOOD REAL ESTATE DTC, LLC - New
$585,000Active4 beds 2 baths2,272 sq. ft.7201 S Washington Way, Littleton, CO 80122
MLS# 6941872Listed by: COMPASS - DENVER - New
$475,000Active3 beds 3 baths1,902 sq. ft.5555 E Briarwood Avenue #2604, Centennial, CO 80122
MLS# 6264888Listed by: COMPASS - DENVER