16781 E Kettle Avenue, Centennial, CO 80016
Local realty services provided by:Better Homes and Gardens Real Estate Kenney & Company
16781 E Kettle Avenue,Centennial, CO 80016
$726,100
- 4 Beds
- 4 Baths
- 2,581 sq. ft.
- Single family
- Pending
Listed by: tom ullrich
Office: re/max professionals
MLS#:6871094
Source:ML
Price summary
- Price:$726,100
- Price per sq. ft.:$281.33
- Monthly HOA dues:$44
About this home
**Contact builder today about Special Financing for this home - terms and conditions apply**
Anticipated Completion May 2026!
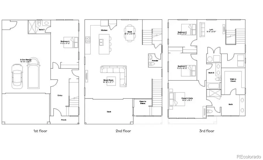
Gorgeous Overlook 3-story in the brand new Vermilion community is Northeast facing and features 4 beds (3 upper / 1 lower), 3.5 baths, loft, great room, kitchen, 2.5 car garage and crawlspace. Gorgeous finishes and upgrades throughout including Quartz package, luxury vinyl plank flooring, stainless steel appliances, spacious balcony and more. The builder provides the latest in energy efficiency and state of the art technology with several fabulous floorplans to choose from. Energy efficiency, and technology/connectivity seamlessly blended with luxury to make your new house a home. Vermilion Creek offers single family homes for every lifestyle. Close to dining, shopping, entertainment and other amenities. Photos are model only and subject to change. Finishes subject to change. Private Fencing included with this home. Adjacent to community green area. Enjoy easy access to Tagawa Gardens, nearby Trails and Cherry Creek schools....
Contact an agent
Home facts
- Year built:2026
- Listing ID #:6871094
Rooms and interior
- Bedrooms:4
- Total bathrooms:4
- Full bathrooms:1
- Half bathrooms:1
- Flooring:Carpet, Tile, Vinyl
- Kitchen Description:Dishwasher, Disposal, Kitchen Island, Microwave, Refrigerator
- Basement:Yes
- Basement Description:Crawl Space
- Living area:2,581 sq. ft.
Heating and cooling
- Cooling:Central Air
- Heating:Electric
- Central air:Yes
Structure and exterior
- Roof:Composition
- Year built:2026
- Building area:2,581 sq. ft.
- Lot area:0.06 Acres
- Construction Materials:Frame
- Exterior Features:Front Porch
- Levels:3 or More Stories
Schools
- High school:Grandview
- Middle school:Liberty
- Elementary school:Red Hawk Ridge
Utilities
- Water:Public
- Sewer:Public Sewer
Finances and disclosures
- Price:$726,100
- Price per sq. ft.:$281.33
- Tax amount:$8,568 (2025)
Features and amenities
- Laundry features:In Unit
- Amenities:Carbon Monoxide Detector(s), Double Pane Windows, Smoke Detector(s)
Parking
- Total parking spaces:2
- Parking description:Concrete Driveway
- Garage:Yes
- Garage spaces:2
New listings near 16781 E Kettle Avenue
- New
$509,000Active2 beds 2 baths1,523 sq. ft.9079 E Panorama Circle #512, Englewood, CO 80112
MLS# 5085355Listed by: HOMESMART - Coming Soon
$790,000Coming Soon4 beds 3 baths7754 S Oneida Court, Centennial, CO 80112
MLS# 2018991Listed by: YOUR CASTLE REALTY LLC - New
$400,000Active2 beds 3 baths1,373 sq. ft.4430 S Jebel Lane, Centennial, CO 80015
MLS# 3634242Listed by: MB BELLISSIMO HOMES - New
$595,000Active4 beds 3 baths2,822 sq. ft.5247 S Bahama Circle, Centennial, CO 80015
MLS# 8978705Listed by: COLDWELL BANKER REALTY 24 - New
$469,900Active2 beds 3 baths2,095 sq. ft.4328 S Nepal Court, Centennial, CO 80015
MLS# 1883176Listed by: ORCHARD BROKERAGE LLC - Open Sat, 1 to 3pmNew
$725,000Active6 beds 4 baths3,902 sq. ft.19095 E Progress Avenue, Centennial, CO 80015
MLS# 8490518Listed by: EXIT REALTY DTC, CHERRY CREEK, PIKES PEAK. - Coming Soon
$659,900Coming Soon4 beds 3 baths5877 S Lisbon Way, Centennial, CO 80015
MLS# 2546467Listed by: EPIQUE REALTY - New
$385,000Active2 beds 2 baths1,568 sq. ft.8030 S Columbine Court, Centennial, CO 80122
MLS# 9223677Listed by: H&CO REAL ESTATE LLC - Open Sat, 11am to 2pmNew
$825,000Active5 beds 3 baths2,681 sq. ft.7713 E Jamison Drive, Centennial, CO 80112
MLS# 4615520Listed by: COMPASS - DENVER - Coming SoonOpen Sat, 12 to 2pm
$950,000Coming Soon6 beds 4 baths6360 S Jasmine Way, Centennial, CO 80111
MLS# 1842153Listed by: HOMESMART