7792 S Cherokee Trail, Centennial, CO 80016
Local realty services provided by:Better Homes and Gardens Real Estate Kenney & Company
7792 S Cherokee Trail,Centennial, CO 80016
$664,950
- 4 Beds
- 4 Baths
- 2,356 sq. ft.
- Single family
- Pending
Listed by: tom ullrich
Office: re/max professionals
MLS#:1541062
Source:ML
Price summary
- Price:$664,950
- Price per sq. ft.:$282.24
- Monthly HOA dues:$44
About this home
Available NOW!
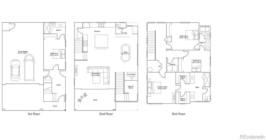
Beautiful Boulevard 3-story plan in the brand new Vermilion community has a beautiful outdoor living balcony and features 4 bedrooms (3 upper / 1 lower), 3.5 baths, great room, kitchen, laundry, 2.5 car garage and a crawlspace. Gorgeous finishes and upgrades throughout including luxury vinyl plank flooring, stainless steel appliances, Quartz package, low maintenance backyard space and more. The builder provides the latest in energy efficiency and state of the art technology with several fabulous floorplans to choose from. Energy efficiency, and technology/connectivity seamlessly blended with luxury to make your new house a home. Vermilion Creek offers single family homes for every lifestyle. Close to dining, shopping, entertainment and other amenities. Association fee subject to change. Photos and the Matterport 3D tour are of a model home and are provided for illustrative purposes only. Features, finishes, and layout may vary and are subject to change. Washer / Dryer Included / Private Fencing / Whole House Blinds / Adjacent to open lawn area. Enjoy easy access to Tagawa Gardens and the Cherry Creek Trails right outside your neighborhood....
Contact an agent
Home facts
- Year built:2026
- Listing ID #:1541062
Rooms and interior
- Bedrooms:4
- Total bathrooms:4
- Full bathrooms:1
- Half bathrooms:1
- Flooring:Carpet, Tile, Vinyl
- Kitchen Description:Dishwasher, Disposal, Kitchen Island, Microwave, Oven, Refrigerator
- Basement:Yes
- Basement Description:Crawl Space
- Living area:2,356 sq. ft.
Heating and cooling
- Cooling:Central Air
- Heating:Electric
- Central air:Yes
Structure and exterior
- Roof:Composition
- Year built:2026
- Building area:2,356 sq. ft.
- Lot area:0.06 Acres
- Construction Materials:Frame
- Exterior Features:Front Porch
- Levels:3 or More Stories
Schools
- High school:Grandview
- Middle school:Liberty
- Elementary school:Red Hawk Ridge
Utilities
- Water:Public
- Sewer:Public Sewer
Finances and disclosures
- Price:$664,950
- Price per sq. ft.:$282.24
- Tax amount:$8,838 (2025)
Features and amenities
- Laundry features:In Unit
- Amenities:Carbon Monoxide Detector(s), Double Pane Windows, Smoke Detector(s)
Parking
- Total parking spaces:2
- Parking description:Concrete Driveway
- Garage:Yes
- Garage spaces:2
New listings near 7792 S Cherokee Trail
- Coming Soon
$550,000Coming Soon3 beds 2 baths17677 E Prentice Circle, Aurora, CO 80015
MLS# 7758243Listed by: KENTWOOD REAL ESTATE CHERRY CREEK - Open Sun, 11am to 1pmNew
$549,000Active4 beds 3 baths3,098 sq. ft.17738 E Crestridge Place, Centennial, CO 80015
MLS# 3603846Listed by: DESTINATION DENVER REALTY - Open Sun, 11am to 2pmNew
$1,375,000Active5 beds 5 baths4,523 sq. ft.6929 S Chapparal Circle E, Centennial, CO 80016
MLS# 6041819Listed by: KENTWOOD REAL ESTATE CHERRY CREEK - Coming Soon
$665,000Coming Soon5 beds 4 baths6846 S Glencoe Court, Centennial, CO 80122
MLS# 6598629Listed by: PHILANTHROPY REAL ESTATE - New
$480,000Active4 beds 2 baths1,858 sq. ft.5626 S Odessa Street, Centennial, CO 80015
MLS# 2390396Listed by: COLDWELL BANKER REALTY 24 - Open Sat, 2:30 to 5pmNew
$598,000Active4 beds 4 baths2,185 sq. ft.2718 E Geddes Avenue, Centennial, CO 80122
MLS# 8077458Listed by: EXP REALTY, LLC - New
$675,000Active5 beds 4 baths3,527 sq. ft.7992 S Jackson Street, Littleton, CO 80122
MLS# 9816457Listed by: THE STELLER GROUP, INC - Coming Soon
$825,000Coming Soon4 beds 3 baths6928 S Columbine Way, Centennial, CO 80122
MLS# 5728829Listed by: MILEHIMODERN - New
$549,900Active4 beds 2 baths1,858 sq. ft.5951 S Perth Street, Centennial, CO 80015
MLS# 8880590Listed by: COMPASS - DENVER - Coming Soon
$599,900Coming Soon3 beds 2 baths190 E Geddes Avenue, Centennial, CO 80122
MLS# 9440078Listed by: NAV REAL ESTATE