7804 S Cherokee Trail, Centennial, CO 80016
Local realty services provided by:Better Homes and Gardens Real Estate Kenney & Company
7804 S Cherokee Trail,Centennial, CO 80016
$690,000
- 4 Beds
- 4 Baths
- - sq. ft.
- Single family
- Sold
Listed by: tom ullrichtomrman@aol.com,303-910-8436
Office: re/max professionals
MLS#:5301592
Source:ML
Sorry, we are unable to map this address
Price summary
- Price:$690,000
- Monthly HOA dues:$44
About this home
**Contact builder today about Special Financing for this home - terms and conditions apply**
Available NOW!
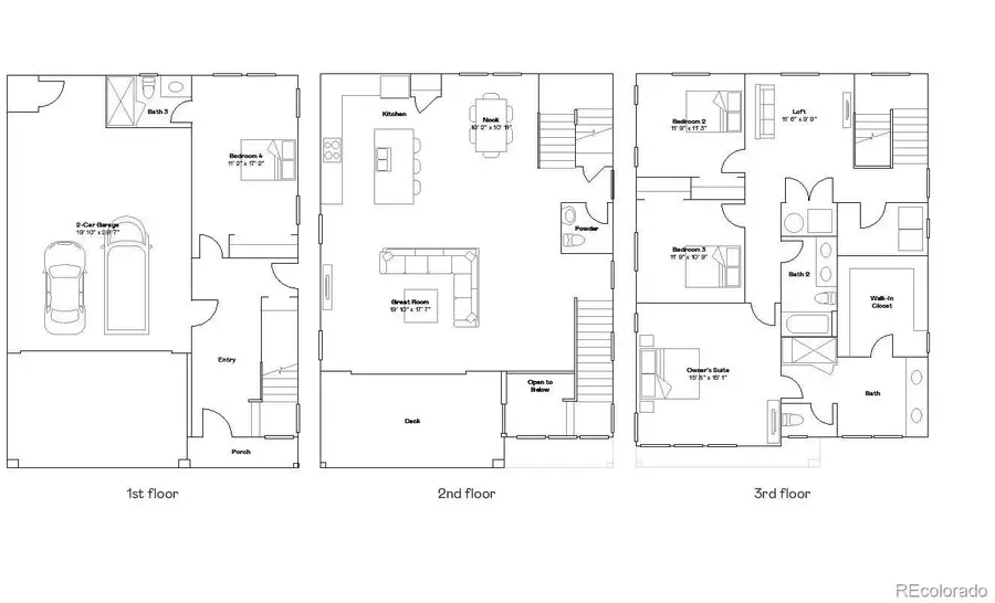
Gorgeous Overlook 3-story in the brand new Vermilion community features 4 beds (3 upper / 1 lower), 3.5 baths, loft, great room, kitchen, 2.5 car garage and crawlspace. Gorgeous finishes and upgrades throughout including Quartz package, luxury vinyl plank flooring, stainless steel appliances, spacious balcony and more. The builder provides the latest in energy efficiency and state of the art technology with several fabulous floorplans to choose from. Energy efficiency, and technology/connectivity seamlessly blended with luxury to make your new house a home. Vermilion Creek offers single family homes for every lifestyle. Close to dining, shopping, entertainment and other amenities. Photos are model only and subject to change. Finishes subject to change. Private Fencing / Whole House Blinds included with this home. Adjacent to walkway, open area. Enjoy easy access to Tagawa Gardens and the Cherry Creek Trails right outside your neighborhood...
Contact an agent
Home facts
- Year built:2026
- Listing ID #:5301592
Rooms and interior
- Bedrooms:4
- Total bathrooms:4
- Full bathrooms:1
- Half bathrooms:1
- Flooring:Carpet, Tile, Vinyl
- Kitchen Description:Dishwasher, Disposal, Kitchen Island, Microwave, Refrigerator
- Basement:Yes
- Basement Description:Crawl Space
Heating and cooling
- Cooling:Central Air
- Heating:Electric
- Central air:Yes
Structure and exterior
- Roof:Composition
- Year built:2026
- Construction Materials:Frame
- Exterior Features:Front Porch
- Levels:3 or More Stories
Schools
- High school:Grandview
- Middle school:Liberty
- Elementary school:Red Hawk Ridge
Utilities
- Water:Public
- Sewer:Public Sewer
Finances and disclosures
- Price:$690,000
- Tax amount:$9,001 (2025)
Features and amenities
- Laundry features:In Unit
- Amenities:Carbon Monoxide Detector(s), Double Pane Windows, Smoke Detector(s)
Parking
- Total parking spaces:2
- Parking description:Concrete Driveway
- Garage:Yes
- Garage spaces:2
New listings near 7804 S Cherokee Trail
- New
$285,000Active2 beds 1 baths1,031 sq. ft.7205 S Gaylord Street #F15, Centennial, CO 80122
MLS# 6093810Listed by: COLDWELL BANKER REALTY 24 - New
$1,085,000Active5 beds 3 baths5,064 sq. ft.5757 S Laredo Court, Centennial, CO 80015
MLS# 4508733Listed by: MILEHIMODERN - Coming SoonOpen Sun, 1 to 3pm
$937,900Coming Soon5 beds 3 baths6490 S Heritage Place, Centennial, CO 80111
MLS# 8847542Listed by: THRIVE REAL ESTATE GROUP - Coming Soon
$674,900Coming Soon4 beds 3 baths6449 S Locust Way, Centennial, CO 80111
MLS# 9430581Listed by: NOOKHAVEN HOMES - New
$638,900Active3 beds 3 baths3,376 sq. ft.21251 E Smoky Hill Road, Centennial, CO 80015
MLS# IR1055839Listed by: LIVE WEST REALTY - Coming Soon
$257,500Coming Soon1 beds 1 baths7110 S Gaylord Street #P2, Centennial, CO 80122
MLS# 3513888Listed by: COLDWELL BANKER REALTY 24 - Open Sat, 12 to 2pmNew
$915,000Active4 beds 3 baths2,860 sq. ft.7293 S Olive Way, Centennial, CO 80112
MLS# 4102906Listed by: COLDWELL BANKER REALTY 24 - New
$475,000Active3 beds 3 baths1,718 sq. ft.21141 E Belleview Place, Centennial, CO 80015
MLS# 4976486Listed by: MB TEAM LASSEN - Coming Soon
$750,000Coming Soon4 beds 3 baths8154 S Harrison Circle, Centennial, CO 80122
MLS# 5937756Listed by: THE BARRINGTON GROUP REAL ESTATE, INC. - Open Sat, 12 to 2pmNew
$860,000Active5 beds 4 baths2,680 sq. ft.5161 E Fair Drive, Centennial, CO 80121
MLS# 8045307Listed by: RE/MAX PROFESSIONALS