7808 S Cherokee Trail, Centennial, CO 80016
Local realty services provided by:Better Homes and Gardens Real Estate Kenney & Company
Listed by: tom ullrichtomrman@aol.com,303-910-8436
Office: re/max professionals
MLS#:4769811
Source:ML
Price summary
- Price:$670,900
- Price per sq. ft.:$284.76
- Monthly HOA dues:$17
About this home
**Contact builder today about Special Financing for this home - terms and conditions apply**
Anticipated Completion January 2026!
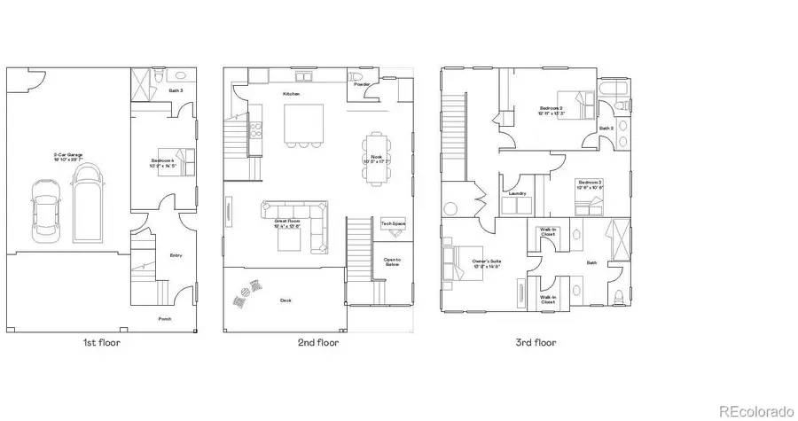
Beautiful Boulevard 3-story plan in the brand new Vermilion community features 4 bedrooms (3 upper / 1 lower), 3.5 baths, great room, kitchen, laundry, 2.5 car garage and a crawlspace. Gorgeous finishes and upgrades throughout including luxury vinyl plank flooring, stainless steel appliances, Quartz package, low maintenance backyard space and more. The builder provides the latest in energy efficiency and state of the art technology with several fabulous floorplans to choose from. Energy efficiency, and technology/connectivity seamlessly blended with luxury to make your new house a home. Vermilion Creek offers single family homes for every lifestyle. Close to dining, shopping, entertainment and other amenities. Association fee subject to change. Photos and the Matterport 3D tour are of a model home and are provided for illustrative purposes only. Features, finishes, and layout may vary and are subject to change. Large Outdoor living space balcony. Enjoy easy access to Tagawa Gardens and the Cherry Creek Trails right outside your neighborhood.
Contact an agent
Home facts
- Year built:2026
- Listing ID #:4769811
Rooms and interior
- Bedrooms:4
- Total bathrooms:4
- Full bathrooms:1
- Half bathrooms:1
- Living area:2,356 sq. ft.
Heating and cooling
- Cooling:Central Air
- Heating:Electric
Structure and exterior
- Roof:Composition
- Year built:2026
- Building area:2,356 sq. ft.
- Lot area:0.07 Acres
Schools
- High school:Grandview
- Middle school:Liberty
- Elementary school:Red Hawk Ridge
Utilities
- Water:Public
- Sewer:Public Sewer
Finances and disclosures
- Price:$670,900
- Price per sq. ft.:$284.76
- Tax amount:$7,917 (2024)
New listings near 7808 S Cherokee Trail
- Coming Soon
$819,900Coming Soon6 beds 4 baths16189 E Prentice Lane, Centennial, CO 80015
MLS# 6617620Listed by: BROKERS GUILD HOMES - Open Sat, 10am to 12pmNew
$500,000Active3 beds 3 baths1,764 sq. ft.7165 S Vine Circle W, Centennial, CO 80122
MLS# 8832623Listed by: KENTWOOD REAL ESTATE DTC, LLC - New
$719,999Active4 beds 3 baths3,633 sq. ft.5462 S Ventura Court, Centennial, CO 80015
MLS# 1907551Listed by: CAPITAL PROPERTY GROUP LLC - New
$690,000Active5 beds 4 baths3,797 sq. ft.5456 S Jasper Way, Centennial, CO 80015
MLS# 5341663Listed by: KENTWOOD REAL ESTATE CHERRY CREEK - Open Sat, 11am to 3pmNew
$600,000Active3 beds 3 baths3,363 sq. ft.7664 S Ivanhoe Way, Centennial, CO 80112
MLS# 7673690Listed by: MILEHIMODERN - New
$489,000Active3 beds 3 baths2,090 sq. ft.2668 E Fremont Place, Centennial, CO 80122
MLS# 8481111Listed by: DOWNTOWN PROPERTIES - Open Sat, 2 to 4pmNew
$1,450,000Active3 beds 4 baths5,507 sq. ft.15075 E Pinewood Place, Centennial, CO 80016
MLS# 9302856Listed by: KENTWOOD REAL ESTATE CHERRY CREEK - New
$566,900Active3 beds 3 baths1,528 sq. ft.7644 S Cherokee Circle W, Centennial, CO 80016
MLS# 1875451Listed by: RE/MAX PROFESSIONALS - New
$523,900Active2 beds 3 baths1,266 sq. ft.7638 S Cherokee Trail W, Centennial, CO 80016
MLS# 6688239Listed by: RE/MAX PROFESSIONALS - Coming SoonOpen Sat, 9 to 11am
$645,000Coming Soon5 beds 2 baths327 E Panama Drive, Centennial, CO 80121
MLS# 7493819Listed by: LIV SOTHEBY'S INTERNATIONAL REALTY