7824 S Cherokee Trail, Centennial, CO 80016
Local realty services provided by:Better Homes and Gardens Real Estate Kenney & Company
7824 S Cherokee Trail,Centennial, CO 80016
$635,000
- 4 Beds
- 4 Baths
- - sq. ft.
- Single family
- Sold
Listed by: tom ullrich
Office: re/max professionals
MLS#:3519887
Source:ML
Sorry, we are unable to map this address
Price summary
- Price:$635,000
- Monthly HOA dues:$44
About this home
***Contact builder today about Special Financing for this home - terms and conditions apply**
Anticipated completion April 2026!
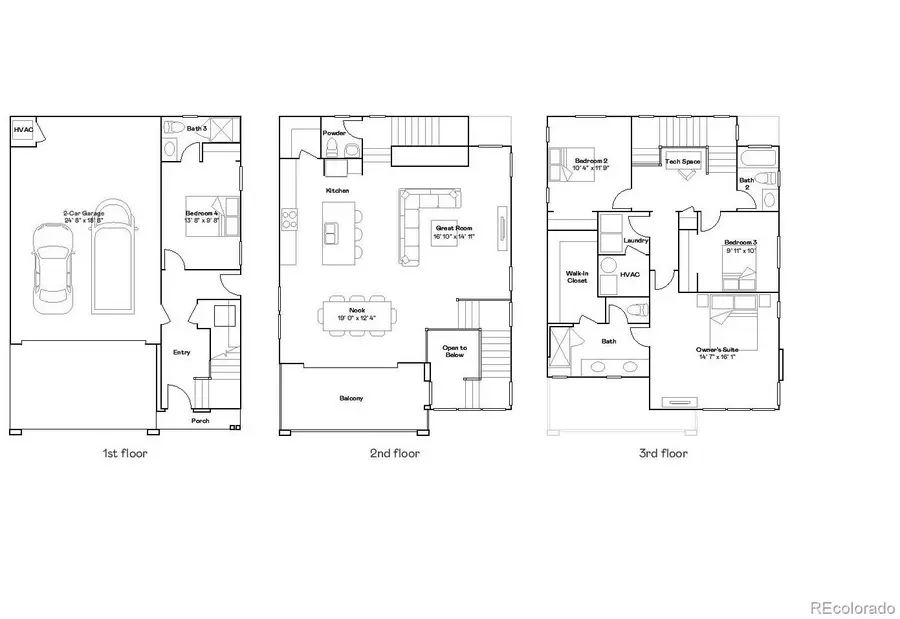
This stunning Horizon 3-story in the brand new Vermilion community features 4 beds (3 upper / 1 lower), 3.5 baths, tech space, great room, kitchen, 2 car garage, spacious balcony and crawlspace. Gorgeous finishes and upgrades throughout including luxury vinyl plank flooring, stainless steel appliances, front balcony low maintenance backyard space and more. This builder provides the latest in energy efficiency and state of the art technology with several fabulous floorplans to choose from. Energy efficiency, and technology/connectivity seamlessly blended with luxury to make your new house a home. Vermilion offers single family homes for every lifestyle.Close to dining, shopping, entertainment and other amenities. Photos are model only and subject to change. Association fee subject to change. Washer, dryer, whole home blinds included with this home. Photos and the Matterport 3D tour are of a model home and are provided for illustrative purposes only. Features, finishes, and layout may vary and are subject to change. Backs to Community green area and faces North. Enjoy easy access to Tagawa Gardens, nearby Trails and Cherry Creek schools...
Contact an agent
Home facts
- Year built:2026
- Listing ID #:3519887
Rooms and interior
- Bedrooms:4
- Total bathrooms:4
- Full bathrooms:1
- Half bathrooms:1
- Flooring:Carpet, Tile, Vinyl
- Kitchen Description:Dishwasher, Disposal, Kitchen Island, Microwave, Refrigerator
- Basement:Yes
- Basement Description:Crawl Space
Heating and cooling
- Cooling:Central Air
- Heating:Electric
- Central air:Yes
Structure and exterior
- Roof:Composition
- Year built:2026
- Construction Materials:Frame
- Exterior Features:Balcony, Front Porch
- Levels:3 or More Stories
Schools
- High school:Grandview
- Middle school:Liberty
- Elementary school:Red Hawk Ridge
Utilities
- Water:Public
- Sewer:Public Sewer
Finances and disclosures
- Price:$635,000
- Tax amount:$7,644 (2025)
Features and amenities
- Laundry features:In Unit
- Amenities:Carbon Monoxide Detector(s), Double Pane Windows, Smoke Detector(s)
Parking
- Total parking spaces:2
- Parking description:Concrete Driveway
- Garage:Yes
- Garage spaces:2
New listings near 7824 S Cherokee Trail
- Coming Soon
$565,000Coming Soon3 beds 3 baths5502 S Jericho Way, Centennial, CO 80015
MLS# 5315387Listed by: REAL BROKER, LLC DBA REAL - Coming Soon
$860,000Coming Soon4 beds 4 baths6323 S Dexter Street, Littleton, CO 80121
MLS# 3904987Listed by: KEY TEAM REAL ESTATE CORP. - Open Sun, 12 to 4pmNew
$675,000Active4 beds 2 baths2,016 sq. ft.6969 S Syracuse Court, Centennial, CO 80112
MLS# 2533812Listed by: COLDWELL BANKER REALTY 54 - New
$925,000Active4 beds 3 baths2,696 sq. ft.6097 S Jackson Street, Centennial, CO 80121
MLS# 5089535Listed by: MILEHIMODERN - New
$410,000Active2 beds 3 baths1,470 sq. ft.8290 S Fillmore Circle, Centennial, CO 80122
MLS# 7115906Listed by: KELLER WILLIAMS DTC - New
$650,000Active4 beds 2 baths2,210 sq. ft.7289 S Lincoln Way, Centennial, CO 80122
MLS# 7310948Listed by: COMPASS - DENVER - New
$557,000Active4 beds 3 baths2,152 sq. ft.5621 S Ireland Street, Centennial, CO 80015
MLS# 2633749Listed by: SUNRISE REALTY & FINANCING LLC - Coming Soon
$625,000Coming Soon4 beds 3 baths8135 S Ogden Street, Centennial, CO 80122
MLS# 9214397Listed by: KELLER WILLIAMS DTC - New
$440,000Active2 beds 3 baths1,836 sq. ft.9019 E Panorama Circle #D211, Englewood, CO 80112
MLS# 4920019Listed by: LIV SOTHEBY'S INTERNATIONAL REALTY - Open Sun, 2 to 4pmNew
$510,000Active3 beds 3 baths2,046 sq. ft.2417 E Geddes Place, Centennial, CO 80122
MLS# 4389845Listed by: ANJOY REALTY, LLC