7863 S Cherokee Trail, Centennial, CO 80016
Local realty services provided by:Better Homes and Gardens Real Estate Kenney & Company
7863 S Cherokee Trail,Centennial, CO 80016
$739,000
- 4 Beds
- 3 Baths
- - sq. ft.
- Single family
- Sold
Listed by: tom ullrich
Office: re/max professionals
MLS#:2819062
Source:ML
Sorry, we are unable to map this address
Price summary
- Price:$739,000
- Monthly HOA dues:$27
About this home
**Contact builder today about Special Financing for this home - terms and conditions apply**
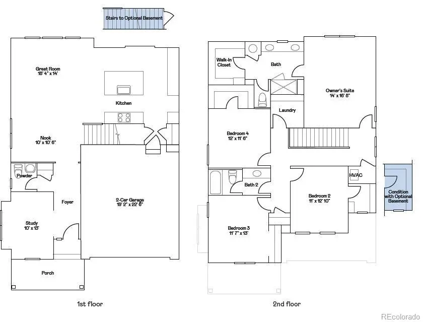
Move In Ready NOW!! This home has it all! This popular floor plan is sure to impress. Beautiful Pinnacle 2-story in the brand new Vermilion community boasts tons of windows, one of the largest kitchens offered with tons of cabinets and massive center island! Convenient study on the main level offers additional space and versatile use! Upstairs features 4 bedrooms, 2.5 bathrooms, and spacious laundry room. Other features include a 2-car garage! Enjoy gorgeous finishes and upgrades including stainless steel appliances, vinyl plank flooring, slab quartz counters/island, and more! This community offers single-family homes tailored to every lifestyle. Discover the charm of this vibrant community with something for everyone. Photos and walkthrough tours represent the model and are subject to change. Association fee subject to change. Enjoy easy access to Tagawa Gardens and the Cherry Creek Trails right outside your neighborhood....
Contact an agent
Home facts
- Year built:2026
- Listing ID #:2819062
Rooms and interior
- Bedrooms:4
- Total bathrooms:3
- Full bathrooms:1
- Half bathrooms:1
- Flooring:Carpet, Tile, Vinyl
- Kitchen Description:Dishwasher, Disposal, Kitchen Island, Microwave, Oven, Refrigerator
- Basement:Yes
- Basement Description:Unfinished
Heating and cooling
- Cooling:Central Air
- Heating:Forced Air, Natural Gas
- Central air:Yes
Structure and exterior
- Roof:Composition
- Year built:2026
- Construction Materials:Frame
- Exterior Features:Front Porch, Rain Gutters
- Levels:2 Story
Schools
- High school:Grandview
- Middle school:Liberty
- Elementary school:Red Hawk Ridge
Utilities
- Water:Public
- Sewer:Public Sewer
Finances and disclosures
- Price:$739,000
- Tax amount:$8,825 (2025)
Features and amenities
- Laundry features:In Unit
- Amenities:Carbon Monoxide Detector(s), Double Pane Windows, Smoke Detector(s)
Parking
- Total parking spaces:2
- Parking description:Concrete Driveway
- Garage:Yes
- Garage spaces:2
New listings near 7863 S Cherokee Trail
- Coming Soon
$750,000Coming Soon4 beds 3 baths7603 S Madison Circle, Centennial, CO 80122
MLS# 3610921Listed by: COMPASS - DENVER - New
$300,000Active2 beds 3 baths1,064 sq. ft.8247 S Fillmore Circle, Centennial, CO 80122
MLS# 2096379Listed by: HQ HOMES - New
$582,650Active3 beds 4 baths3,100 sq. ft.7509 S Ivanhoe Circle S, Centennial, CO 80112
MLS# 7537777Listed by: ASSURED REALTY - New
$650,000Active4 beds 3 baths2,887 sq. ft.1847 E Geddes Circle, Centennial, CO 80122
MLS# 9881279Listed by: COLDWELL BANKER REALTY 24 - New
$370,000Active2 beds 2 baths1,136 sq. ft.6761 S Ivy Way #B4, Centennial, CO 80112
MLS# 1682483Listed by: HQ HOMES - Coming Soon
$749,900Coming Soon4 beds 3 baths8151 S Marion Court, Centennial, CO 80122
MLS# 1741256Listed by: KELLER WILLIAMS DTC - New
$850,000Active5 beds 4 baths3,081 sq. ft.8003 E Hinsdale Place, Centennial, CO 80112
MLS# 5192913Listed by: PERFECT PARTNERS REALTY INC - New
$640,000Active3 beds 2 baths2,939 sq. ft.5154 S Andes Street, Centennial, CO 80015
MLS# 7828258Listed by: ENVISION PROPERTIES - Open Sun, 11am to 12:30pmNew
$355,000Active2 beds 1 baths1,064 sq. ft.8215 S Fillmore Circle, Littleton, CO 80122
MLS# 8718458Listed by: REAL BROKER, LLC DBA REAL - Coming Soon
$880,000Coming Soon3 beds 2 baths6058 S Pennsylvania Street, Centennial, CO 80121
MLS# 8830956Listed by: LIV SOTHEBY'S INTERNATIONAL REALTY