7879 S Cherokee Trail, Centennial, CO 80016
Local realty services provided by:Better Homes and Gardens Real Estate Kenney & Company
7879 S Cherokee Trail,Centennial, CO 80016
$752,900
- 4 Beds
- 3 Baths
- 3,300 sq. ft.
- Single family
- Pending
Listed by: tom ullrich
Office: re/max professionals
MLS#:6287007
Source:ML
Price summary
- Price:$752,900
- Price per sq. ft.:$228.15
- Monthly HOA dues:$27
About this home
**Contact builder today about Special Financing for this home - terms and conditions apply**
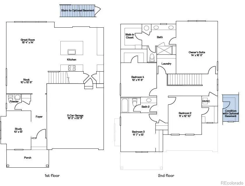
Move In Ready NOW!! This home has it all! This popular floor plan is sure to impress. Beautiful Pinnacle 2-story in the brand new Vermilion community faces Northeast and boasts tons of windows, one of the largest kitchens offered with tons of cabinets and massive center island! Convenient study on the main level offers additional space and versatile use! Upstairs features 4 bedrooms, 2.5 bathrooms, and spacious laundry room. Other features include a 2-car garage! Enjoy gorgeous finishes and upgrades including stainless steel appliances, vinyl plank flooring, slab quartz counters/island, and more! This community offers single-family homes tailored to every lifestyle. Discover the charm of this vibrant community with something for everyone. Photos and walkthrough tours represent the model and are subject to change. Association fee subject to change. Enjoy easy access to Tagawa Gardens, nearby Trails and Cherry Creek schools....
Contact an agent
Home facts
- Year built:2026
- Listing ID #:6287007
Rooms and interior
- Bedrooms:4
- Total bathrooms:3
- Full bathrooms:1
- Half bathrooms:1
- Flooring:Carpet, Tile, Vinyl
- Kitchen Description:Dishwasher, Disposal, Kitchen Island, Microwave, Oven, Refrigerator
- Basement:Yes
- Basement Description:Unfinished
- Living area:3,300 sq. ft.
Heating and cooling
- Cooling:Central Air
- Heating:Forced Air, Natural Gas
- Central air:Yes
Structure and exterior
- Roof:Composition
- Year built:2026
- Building area:3,300 sq. ft.
- Lot area:0.1 Acres
- Construction Materials:Frame
- Exterior Features:Front Porch, Rain Gutters
- Levels:2 Story
Schools
- High school:Grandview
- Middle school:Liberty
- Elementary school:Red Hawk Ridge
Utilities
- Water:Public
- Sewer:Public Sewer
Finances and disclosures
- Price:$752,900
- Price per sq. ft.:$228.15
- Tax amount:$8,884 (2025)
Features and amenities
- Laundry features:In Unit
- Amenities:Carbon Monoxide Detector(s), Double Pane Windows, Smoke Detector(s)
Parking
- Total parking spaces:2
- Parking description:Concrete Driveway
- Garage:Yes
- Garage spaces:2
New listings near 7879 S Cherokee Trail
- New
$509,000Active2 beds 2 baths1,523 sq. ft.9079 E Panorama Circle #512, Englewood, CO 80112
MLS# 5085355Listed by: HOMESMART - Coming Soon
$790,000Coming Soon4 beds 3 baths7754 S Oneida Court, Centennial, CO 80112
MLS# 2018991Listed by: YOUR CASTLE REALTY LLC - New
$400,000Active2 beds 3 baths1,373 sq. ft.4430 S Jebel Lane, Centennial, CO 80015
MLS# 3634242Listed by: MB BELLISSIMO HOMES - New
$595,000Active4 beds 3 baths2,822 sq. ft.5247 S Bahama Circle, Centennial, CO 80015
MLS# 8978705Listed by: COLDWELL BANKER REALTY 24 - New
$469,900Active2 beds 3 baths2,095 sq. ft.4328 S Nepal Court, Centennial, CO 80015
MLS# 1883176Listed by: ORCHARD BROKERAGE LLC - Open Sat, 1 to 3pmNew
$725,000Active6 beds 4 baths3,902 sq. ft.19095 E Progress Avenue, Centennial, CO 80015
MLS# 8490518Listed by: EXIT REALTY DTC, CHERRY CREEK, PIKES PEAK. - Coming Soon
$659,900Coming Soon4 beds 3 baths5877 S Lisbon Way, Centennial, CO 80015
MLS# 2546467Listed by: EPIQUE REALTY - New
$385,000Active2 beds 2 baths1,568 sq. ft.8030 S Columbine Court, Centennial, CO 80122
MLS# 9223677Listed by: H&CO REAL ESTATE LLC - Open Sat, 11am to 2pmNew
$825,000Active5 beds 3 baths2,681 sq. ft.7713 E Jamison Drive, Centennial, CO 80112
MLS# 4615520Listed by: COMPASS - DENVER - Coming SoonOpen Sat, 12 to 2pm
$950,000Coming Soon6 beds 4 baths6360 S Jasmine Way, Centennial, CO 80111
MLS# 1842153Listed by: HOMESMART