7883 S Cherokee Trail, Centennial, CO 80016
Local realty services provided by:Better Homes and Gardens Real Estate Kenney & Company
7883 S Cherokee Trail,Centennial, CO 80016
$730,900
- 3 Beds
- 3 Baths
- 2,997 sq. ft.
- Single family
- Pending
Listed by: tom ullrichtomrman@aol.com,303-910-8436
Office: re/max professionals
MLS#:7270812
Source:ML
Price summary
- Price:$730,900
- Price per sq. ft.:$243.88
- Monthly HOA dues:$27
About this home
**Contact builder today about Special Financing for this home - terms and conditions apply**
Anticipated Completion March 2026!
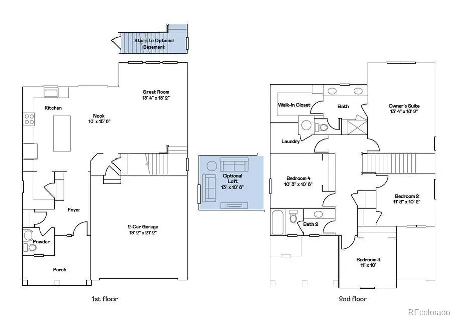
Located in the brand new Vermilion community, this beautiful new Evans 2-story is on a prime corner location and features 3 beds, 2.5 baths, laundry, great room, kitchen, dining room, loft and 2 car garage. Gorgeous design finishes and upgrades throughout including luxury vinyl plank flooring, stainless steel appliances and more. The builder provides the latest in energy efficiency and state of the art technology with several fabulous floorplans to choose from. Energy efficiency, and technology/connectivity seamlessly blended with luxury to make your new house a home. Close to dining, shopping, entertainment and other amenities. Don't miss your opportunity. Welcome Home! Photos and walkthrough tour are model only and subject to change. Association fee subject to change. Enjoy easy access to Tagawa Gardens and the Cherry Creek Trails right outside your neighborhood....
Contact an agent
Home facts
- Year built:2026
- Listing ID #:7270812
Rooms and interior
- Bedrooms:3
- Total bathrooms:3
- Full bathrooms:1
- Half bathrooms:1
- Flooring:Carpet, Tile, Vinyl
- Kitchen Description:Dishwasher, Disposal, Kitchen Island, Microwave, Refrigerator, Self Cleaning Oven
- Basement:Yes
- Basement Description:Unfinished
- Living area:2,997 sq. ft.
Heating and cooling
- Cooling:Central Air
- Heating:Forced Air, Natural Gas
- Central air:Yes
Structure and exterior
- Roof:Composition
- Year built:2026
- Building area:2,997 sq. ft.
- Lot area:0.12 Acres
- Lot Features:Corner
- Construction Materials:Frame
- Exterior Features:Front Porch, Private Yard, Rain Gutters
- Levels:2 Story
Schools
- High school:Grandview
- Middle school:Liberty
- Elementary school:Red Hawk Ridge
Utilities
- Water:Public
- Sewer:Public Sewer
Finances and disclosures
- Price:$730,900
- Price per sq. ft.:$243.88
- Tax amount:$8,625 (2025)
Features and amenities
- Laundry features:In Unit
- Amenities:Carbon Monoxide Detector(s), Double Pane Windows, Smoke Detector(s)
Parking
- Total parking spaces:2
- Parking description:Concrete Driveway
- Garage:Yes
- Garage spaces:2
New listings near 7883 S Cherokee Trail
- Coming Soon
$469,999Coming Soon3 beds 3 baths5555 E Briarwood Avenue #2201, Centennial, CO 80122
MLS# 2077300Listed by: LPT REALTY - Coming Soon
$1,615,000Coming Soon4 beds 5 baths7591 S Ensenada Court, Centennial, CO 80016
MLS# 8541827Listed by: KFINN PROPERTIES, LLC - New
$749,996Active5 beds 5 baths3,768 sq. ft.5773 S Orleans Street, Centennial, CO 80015
MLS# 4900045Listed by: RE/MAX PROFESSIONALS - New
$499,900Active2 beds 2 baths1,099 sq. ft.7643 S Mobile Way, Centennial, CO 80016
MLS# 8406266Listed by: RE/MAX PROFESSIONALS - Open Sat, 12 to 2pmNew
$550,000Active3 beds 3 baths1,603 sq. ft.7467 S Albion Street S, Centennial, CO 80122
MLS# 6441254Listed by: KELLER WILLIAMS DTC - Coming SoonOpen Sat, 12 to 4pm
$649,900Coming Soon4 beds 2 baths7270 S Pennsylvania Street, Centennial, CO 80122
MLS# 8471583Listed by: COMPASS - DENVER - Coming Soon
$374,000Coming Soon2 beds 2 baths9079 E Panorama Circle #301, Englewood, CO 80112
MLS# 7238158Listed by: TRELORA REALTY, INC. - Coming SoonOpen Sat, 11am to 1pm
$1,525,000Coming Soon4 beds 3 baths7003 E Lake Circle, Centennial, CO 80111
MLS# 9333907Listed by: LIV SOTHEBY'S INTERNATIONAL REALTY - Coming Soon
$472,500Coming Soon2 beds 2 baths19515 E Sunset Circle, Aurora, CO 80015
MLS# 4751578Listed by: ALARIS PROPERTIES LLC - Coming Soon
$410,000Coming Soon2 beds 2 baths9079 E Panorama Circle #419, Englewood, CO 80112
MLS# 1962146Listed by: RE/MAX PROFESSIONALS