7983 Polson Drive, Colorado Springs, CO 80908

Local realty services provided by:Better Homes and Gardens Real Estate Kenney & Company
7983 Polson Drive,Colorado Springs, CO 80908
$724,990
  • 4 Beds
  • 4 Baths
  • 3,369 sq. ft.
  • Single family
  • Pending
Listed by: parker bright
Office: american legend homes brokerage llc.
MLS#:8934438
Source:CO_PPAR

Price summary

  • Price:$724,990
  • Price per sq. ft.:$215.19
  • Monthly HOA dues:$31.67

About this home

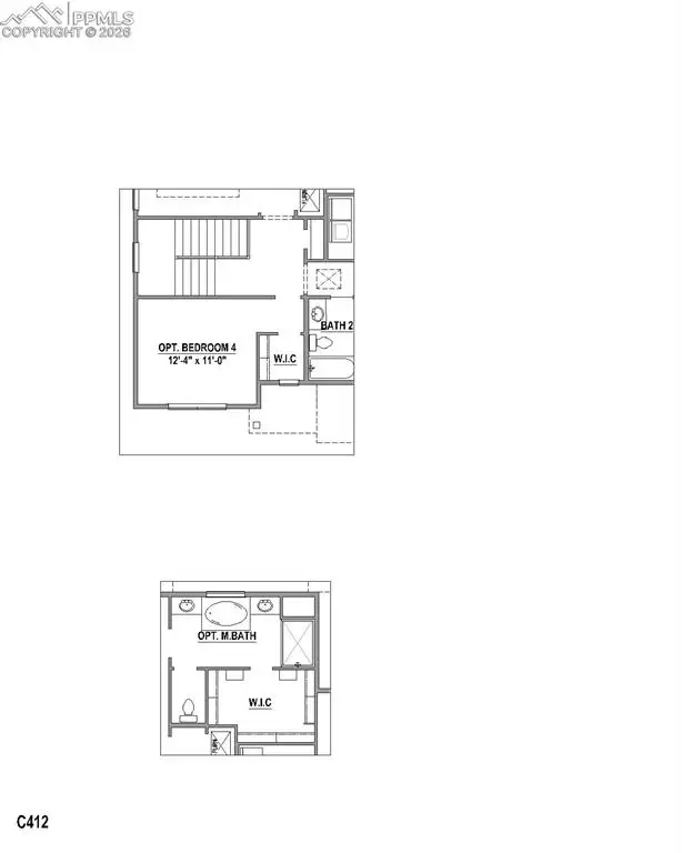
This 2 story home is our smallest model at 2,280 square feet on the main and upper levels, but with the finished basement that's included, it expands to an impressive 3,369 square feet. Despite it's compact footprint, this home offers all the space and functionality you could want. The main level greets you with a study at the front, followed by an open-concept kitchen, dining and family room - perfect for entertaining and family gatherings. A conveniently located half bath round out the spacious primary suite with 4-piece bath. The basement provides added flexibility and space adding a rec room, bedroom and full bath. The home also includes a 2-car, 3-bay tandem garage with an 8' door and garage door opener. It has a ton of curb appeal and charm with full front porch. You'll also enjoy spending time on your rear covered deck, which backs to a trail and some green space. The included full yard landscaping and rear privacy fence is also going to be an added bonus for the property.

Contact an agent

contact an agent

Yes, I would like more information. Please use and/or share my information with a BHGRE®  affiliated agent to contact me about my real estate needs. By clicking Send message, I request to be contacted by phone or text message and consent to being contacted by automated means. I understand that my consent to receive calls or texts is not a condition of purchasing any property, goods, or services. Alternatively, I understand that I can access real estate services by email or I can contact the agent myself.

If a BHGRE®  affiliated agent is not available in the area where I need assistance, I agree to be contacted by a real estate agent affiliated with another brand owned or licensed by Anywhere Real Estate (CENTURY 21® , Coldwell Banker® , Corcoran® , ERA® , Sotheby's International Realty® ).
 I acknowledge that I have read and agree to theTerms of useandPrivacy notice

Home facts

  • Year built:2025
  • Listing ID #:8934438
  • Added:92 day(s) ago
  • Updated:March 26, 2026 at 01:12 PM

Rooms and interior

  • Bedrooms:4
  • Total bathrooms:4
  • Full bathrooms:3
  • Half bathrooms:1
  • Flooring:Carpet, Ceramic Tile, Vinyl/Linoleum
  • Kitchen Description:220v in Kitchen, Dishwasher, Disposal, Gas in Kitchen, Kitchen Pantry, Microwave Oven, Oven, Self Cleaning Oven
  • Living area:3,369 sq. ft.

Heating and cooling

  • Cooling:Ceiling Fan(s), Central Air
  • Heating:Forced Air
  • Central air:Yes

Structure and exterior

  • Roof:Composite Shingle
  • Year built:2025
  • Building area:3,369 sq. ft.
  • Lot area:0.12 Acres
  • Lot Features:Level
  • Construction Materials:Fiber Cement
  • Exterior Features:Concrete, Covered
  • Foundation Description:Garden Level

Schools

  • High school:Liberty
  • Middle school:Chinook Trail
  • Elementary school:Legacy Peak

Utilities

  • Water:Assoc/Distr

Finances and disclosures

  • Price:$724,990
  • Price per sq. ft.:$215.19
  • Tax amount:$6,000 (2025)

Features and amenities

  • Laundry features:Electric Hook-up
  • Amenities:6-Panel Doors, Auto Sprinkler System, French Doors, HOA Required $, High Speed Internet Avail., Home Warranty, Radon System, Sump Pump

Parking

  • Parking description:Attached Garage, Concrete Driveway, Garage Door Opener
  • Garage:Yes
  • Garage spaces:2
MLS Logo The information being provided by Pikes Peak REALTOR® Services Corp. is for the consumer's personal, non-commercial use and may not be used for any purpose other than to identify prospective properties consumer may be interested in purchasing. Any information relating to real estate for sale referenced on this web site comes from the Internet Data Exchange (IDX) program of the Pikes Peak REALTOR® Services Corp.. Better Homes and Gardens Real Estate Kenney & Company is not a Multiple Listing Service (MLS), nor does it offer MLS access. This website is a service of Better Homes and Gardens Real Estate Kenney & Company, a broker participant of Pikes Peak REALTOR® Services Corp.. This web site may reference real estate listing(s) held by a brokerage firm other than the broker and/or agent who owns this web site. The accuracy of all information, regardless of source, including but not limited to open house information, square footages and lot sizes, is deemed reliable but not guaranteed and should be personally verified through personal inspection by and/or with the appropriate professionals. The data contained herein is copyrighted by Pikes Peak REALTOR® Services Corp. and is protected by all applicable copyright laws. Any unauthorized dissemination of this information is in violation of copyright laws and is strictly prohibited. The real estate listing information and related content displayed on this site is provided exclusively for consumers' personal, non-commercial use and may not be used for any purpose other than to identify prospective properties consumers may be interested in purchasing. This information and related content is deemed reliable but is not guaranteed accurate by the Pikes Peak REALTOR® Services Corp. Copyright 2026 Pikes Peak REALTOR® Services Corp. All rights reserved.