9144 Old Divide Drive, Colorado Springs, CO 80908

Local realty services provided by:Better Homes and Gardens Real Estate Kenney & Company
9144 Old Divide Drive,Colorado Springs, CO 80908
$486,350
  • 4 Beds
  • 3 Baths
  • 2,073 sq. ft.
  • Single family
  • Active
Listed by: thomas ullrich
Office: re/max professionals
MLS#:9910295
Source:CO_PPAR

Price summary

  • Price:$486,350
  • Price per sq. ft.:$234.61
  • Monthly HOA dues:$30

About this home

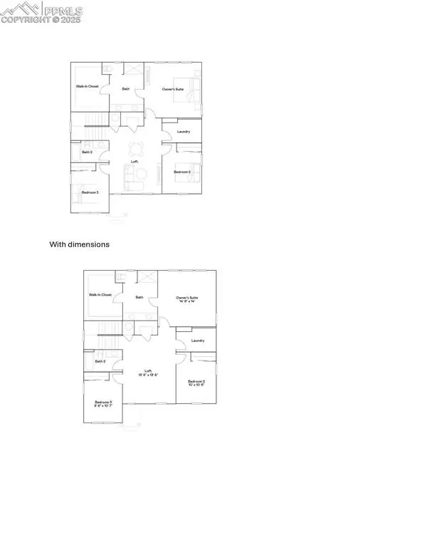
Anticipated completion January 2026! This gorgeous Marigold 2-story in Percheron features 4 beds (3 upper / 1 main), 2 baths, great room, kitchen, loft, 2 car garage and crawlspace. Beautiful upgrades and finishes throughout including vinyl plank floors, stainless steel appliances, slab Quartz counters and more. This builder provides the latest in energy efficiency and state of the art technology with several fabulous floorplans to choose from. Energy efficiency & technology/connectivity seamlessly blended with luxury to make your new house a home. What some builders consider high-end upgrades, the builder makes a standard inclusion. This community offers single family homes for every lifestyle. Close to dining, shopping, entertainment and other amenities. Don’t wait – this community will sell out quickly! Photos and walkthrough tour are model only and subject to change.

Contact an agent

contact an agent

Yes, I would like more information. Please use and/or share my information with a BHGRE®  affiliated agent to contact me about my real estate needs. By clicking Send message, I request to be contacted by phone or text message and consent to being contacted by automated means. I understand that my consent to receive calls or texts is not a condition of purchasing any property, goods, or services. Alternatively, I understand that I can access real estate services by email or I can contact the agent myself.

If a BHGRE®  affiliated agent is not available in the area where I need assistance, I agree to be contacted by a real estate agent affiliated with another brand owned or licensed by Anywhere Real Estate (CENTURY 21® , Coldwell Banker® , Corcoran® , ERA® , Sotheby's International Realty® ).
 I acknowledge that I have read and agree to theTerms of useandPrivacy notice

Home facts

  • Year built:2026
  • Listing ID #:9910295
  • Added:106 day(s) ago
  • Updated:February 11, 2026 at 03:12 PM

Rooms and interior

  • Bedrooms:4
  • Total bathrooms:3
  • Full bathrooms:2
  • Living area:2,073 sq. ft.

Heating and cooling

  • Cooling:Central Air
  • Heating:Forced Air, Natural Gas

Structure and exterior

  • Roof:Composite Shingle
  • Year built:2026
  • Building area:2,073 sq. ft.
  • Lot area:0.14 Acres

Schools

  • High school:Vista Ridge
  • Middle school:Skyview
  • Elementary school:Inspiration View

Utilities

  • Water:Municipal

Finances and disclosures

  • Price:$486,350
  • Price per sq. ft.:$234.61
  • Tax amount:$5,494 (2024)
MLS Logo The information being provided by Pikes Peak REALTOR® Services Corp. is for the consumer's personal, non-commercial use and may not be used for any purpose other than to identify prospective properties consumer may be interested in purchasing. Any information relating to real estate for sale referenced on this web site comes from the Internet Data Exchange (IDX) program of the Pikes Peak REALTOR® Services Corp.. Better Homes and Gardens Real Estate Kenney & Company is not a Multiple Listing Service (MLS), nor does it offer MLS access. This website is a service of Better Homes and Gardens Real Estate Kenney & Company, a broker participant of Pikes Peak REALTOR® Services Corp.. This web site may reference real estate listing(s) held by a brokerage firm other than the broker and/or agent who owns this web site. The accuracy of all information, regardless of source, including but not limited to open house information, square footages and lot sizes, is deemed reliable but not guaranteed and should be personally verified through personal inspection by and/or with the appropriate professionals. The data contained herein is copyrighted by Pikes Peak REALTOR® Services Corp. and is protected by all applicable copyright laws. Any unauthorized dissemination of this information is in violation of copyright laws and is strictly prohibited. The real estate listing information and related content displayed on this site is provided exclusively for consumers' personal, non-commercial use and may not be used for any purpose other than to identify prospective properties consumers may be interested in purchasing. This information and related content is deemed reliable but is not guaranteed accurate by the Pikes Peak REALTOR® Services Corp. Copyright 2026 Pikes Peak REALTOR® Services Corp. All rights reserved.