0 N Nineteenth Street, Colorado Springs, CO 80904

Local realty services provided by:Better Homes and Gardens Real Estate Kenney & Company
0 N Nineteenth Street,Colorado Springs, CO 80904
$800,000
  • 0.75 Acres
  • Lots / Land
  • Active
Listed by:lauren collier cne green mcne mrp
Office:live dream colorado llc.
MLS#:1250887
Source:CO_PPAR

Price summary

  • Price:$800,000

About this home

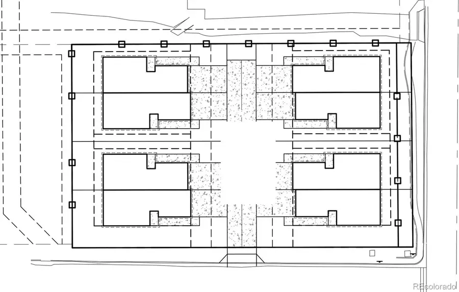
Westside parcel with Development Plan for 8 homes, plus building plans included. The proposed development is for 8 paired homes of approximately 2600sqft each.

Contact an agent

contact an agent

Yes, I would like more information from BHGRE®. Please use and/or share my information with an BHGRE affiliated agent to contact me about my real estate needs. By clicking Send message, I agree an BHGRE affiliated agent may contact me by phone or text message including by automated means about real estate services, and that I can access real estate services without providing my phone number. I acknowledge that I have read and agree to theTerms of useandPrivacy notice

Home facts

  • Listing ID #:1250887
  • Added:3 day(s) ago
  • Updated:October 20, 2025 at 08:41 PM

Structure and exterior

  • Lot area:0.75 Acres

Finances and disclosures

  • Price:$800,000
  • Tax amount:$3,288 (2024)
MLS Logo The information being provided by Pikes Peak REALTOR® Services Corp. is for the consumer's personal, non-commercial use and may not be used for any purpose other than to identify prospective properties consumer may be interested in purchasing. Any information relating to real estate for sale referenced on this web site comes from the Internet Data Exchange (IDX) program of the Pikes Peak REALTOR® Services Corp.. Better Homes and Gardens Real Estate Kenney & Company is not a Multiple Listing Service (MLS), nor does it offer MLS access. This website is a service of Better Homes and Gardens Real Estate Kenney & Company, a broker participant of Pikes Peak REALTOR® Services Corp.. This web site may reference real estate listing(s) held by a brokerage firm other than the broker and/or agent who owns this web site. The accuracy of all information, regardless of source, including but not limited to open house information, square footages and lot sizes, is deemed reliable but not guaranteed and should be personally verified through personal inspection by and/or with the appropriate professionals. The data contained herein is copyrighted by Pikes Peak REALTOR® Services Corp. and is protected by all applicable copyright laws. Any unauthorized dissemination of this information is in violation of copyright laws and is strictly prohibited. The real estate listing information and related content displayed on this site is provided exclusively for consumers' personal, non-commercial use and may not be used for any purpose other than to identify prospective properties consumers may be interested in purchasing. This information and related content is deemed reliable but is not guaranteed accurate by the Pikes Peak REALTOR® Services Corp. Copyright 2025 Pikes Peak REALTOR® Services Corp. All rights reserved.