3032 Champa Street, Denver, CO 80205
Local realty services provided by:Better Homes and Gardens Real Estate Kenney & Company
Listed by: karen kirnkkirn@exitrealtycherrycreek.com,303-884-8026
Office: exit realty dtc, cherry creek, pikes peak.
MLS#:3182939
Source:ML
Price summary
- Price:$299,000
About this home
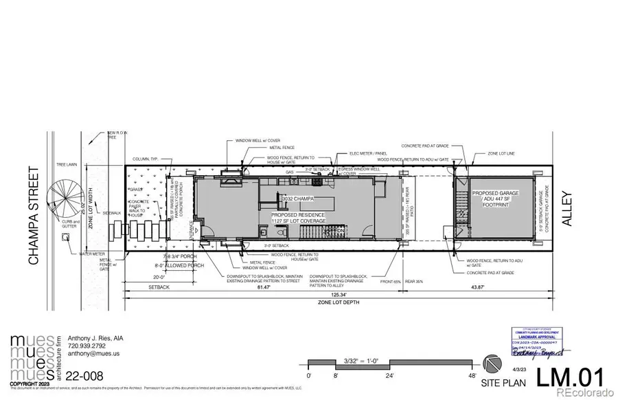
Design and build your dream home in the heart of Denver’s iconic Curtis Park Historic District. This rare 3,130 sq. ft. (.07-acre) lot at 3032 Champa Street offers an exceptional opportunity to create a one-of-a-kind residence overlooking the park — and at $100,000 less than comparable lots nearby, it’s an incredible value.
Even better, this property includes Landmark Denver–approved architectural plans, the result of nine months of design and preservation collaboration. These ready-to-build plans save you valuable time, money, and effort, allowing you to begin construction right away with confidence and style.
Enjoy the perfect blend of historic charm and urban energy — just moments from the RiNo Art District, light rail, top dining, boutiques, and local entertainment.
The approved home design highlights:
A sophisticated brick façade in keeping with Curtis Park’s historic architecture
Open-concept interior layout ideal for modern living
A rooftop deck with sweeping views of the park and Downtown Denver skyline
Architectural plans and survey are available in MLS supplements or upon request. Zoned RH-2.5 (Residential – Row House, up to 2.5 stories), this parcel offers flexibility for a custom home in one of Denver’s most beloved neighborhoods.
Don’t miss this rare opportunity to build your dream home in a storied location — with a $100K head start and nearly a year of planning already complete.
Contact an agent
Home facts
- Listing ID #:3182939
Structure and exterior
- Lot area:0.07 Acres
Utilities
- Water:Public
- Sewer:Public Sewer
Finances and disclosures
- Price:$299,000
- Tax amount:$5,425 (2024)
New listings near 3032 Champa Street
- New
$575,000Active5 beds 2 baths2,000 sq. ft.2708 S Grove Street, Denver, CO 80236
MLS# 2127556Listed by: RE/MAX PROFESSIONALS - Coming Soon
$599,888Coming Soon7 beds 3 baths1596 South Stuart Street, Denver, CO 80219
MLS# 5611601Listed by: MADISON & COMPANY PROPERTIES - New
$250,000Active1 beds 1 baths560 sq. ft.315 N Galapago Street, Denver, CO 80223
MLS# 1919416Listed by: CJV REAL ESTATE - New
$199,000Active2 beds 1 baths874 sq. ft.1525 S Holly Street #101, Denver, CO 80222
MLS# 2912786Listed by: COLORADO REALTY 4 LESS, LLC - New
$4,900,000Active3 beds 4 baths4,118 sq. ft.1792 Wynkoop Street #505, Denver, CO 80202
MLS# 6606300Listed by: LIV SOTHEBY'S INTERNATIONAL REALTY - New
$500,000Active2 beds 1 baths1,805 sq. ft.3452 Bryant Street, Denver, CO 80211
MLS# 4122021Listed by: RE/MAX OF CHERRY CREEK - New
$220,000Active2 beds 1 baths666 sq. ft.3101 W Ohio Avenue, Denver, CO 80219
MLS# 4949967Listed by: RE/MAX PROFESSIONALS - Coming SoonOpen Sat, 11am to 2pm
$539,900Coming Soon4 beds 2 baths2140 Oneida Street, Denver, CO 80207
MLS# 3866735Listed by: ORCHARD BROKERAGE LLC - New
$257,391Active2 beds 1 baths664 sq. ft.3575 Chestnut Place #701, Denver, CO 80216
MLS# 5159986Listed by: KELLER WILLIAMS DTC - New
$740,000Active4 beds 2 baths1,728 sq. ft.3227 N Steele Street, Denver, CO 80205
MLS# 7646938Listed by: KELLER WILLIAMS REALTY DOWNTOWN LLC