706 Meadowlark Drive, Lafayette, CO 80026

Local realty services provided by:Better Homes and Gardens Real Estate Kenney & Company
706 Meadowlark Drive,Lafayette, CO 80026
$150,000
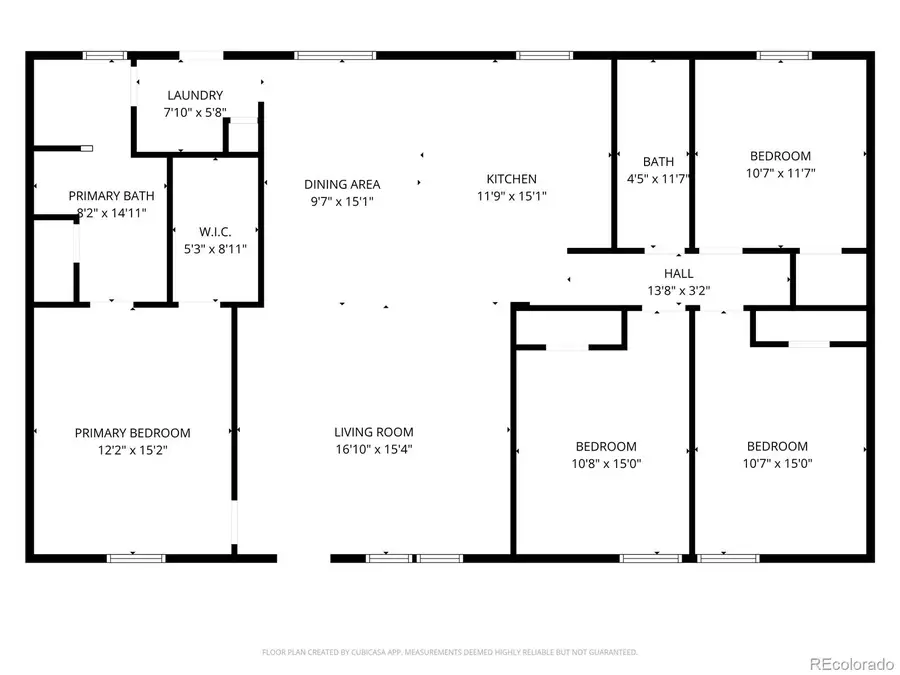
  • 4 Beds
  • 2 Baths
  • 1,792 sq. ft.
  • Mobile / Manufactured
  • Active
Listed by: victor najeravicktor.najera@gmail.com,720-560-7496
Office: lokation real estate
MLS#:9662320
Source:ML

Price summary

  • Price:$150,000
  • Price per sq. ft.:$83.71

About this home

Welcome to Arbordale Acres! Enjoy 3 months free lot rent on this great listing. Spacious 2019 doublewide mobile home located in the highly sought-after community! This beautiful home is nestled in an all-ages community, perfect for families of all sizes and generations. *EXPERIENCE CONVENIENCE* This fantastic property is situated in a great location, within walking distance to schools, parks, and a variety of restaurants. Imagine being able to walk to school, grab a drink, or enjoy a meal out without needing a vehicle! *FEATURES INSIDE AND OUT* This spacious 4 bedroom, 2 full bathroom home boasts laminate and vinyl flooring throughout, ensuring easy maintenance and a beautiful aesthetic, and up to three car-deeded parking spaces.The perfect blend of style and functionality! *DON'T MISS OUT ON THIS AMAZING OPPORTUNITY!* Contact us today for any questions ant 720.560.7496.7496 and make this incredible mobile home your dream home!

Contact an agent

contact an agent

Yes, I would like more information. Please use and/or share my information with a BHGRE®  affiliated agent to contact me about my real estate needs. By clicking Send message, I request to be contacted by phone or text message and consent to being contacted by automated means. I understand that my consent to receive calls or texts is not a condition of purchasing any property, goods, or services. Alternatively, I understand that I can access real estate services by email or I can contact the agent myself.

If a BHGRE®  affiliated agent is not available in the area where I need assistance, I agree to be contacted by a real estate agent affiliated with another brand owned or licensed by Anywhere Real Estate (CENTURY 21® , Coldwell Banker® , Corcoran® , ERA® , Sotheby's International Realty® ).
 I acknowledge that I have read and agree to theTerms of useandPrivacy notice

Home facts

  • Year built:2019
  • Listing ID #:9662320

Rooms and interior

  • Bedrooms:4
  • Total bathrooms:2
  • Full bathrooms:2
  • Flooring:Laminate, Vinyl
  • Kitchen Description:Dishwasher, Eat-in Kitchen, Kitchen Island, Microwave, Range, Refrigerator
  • Living area:1,792 sq. ft.

Heating and cooling

  • Cooling:Central Air
  • Heating:Natural Gas
  • Central air:Yes

Structure and exterior

  • Roof:Shingle
  • Year built:2019
  • Building area:1,792 sq. ft.
  • Construction Materials:Wood Siding
  • Exterior Features:Deck

Schools

  • High school:Centaurus
  • Middle school:Angevine
  • Elementary school:Lafayette

Utilities

  • Water:Public
  • Sewer:Public Sewer

Finances and disclosures

  • Price:$150,000
  • Price per sq. ft.:$83.71
  • Tax amount:$287 (2024)

Features and amenities

  • Laundry features:Dryer, Washer
  • Amenities:Double Pane Windows

Parking

  • Total parking spaces:3
  • Parking description:Asphalt, Oversized
MLS LogoBased on information submitted to the MLS GRID as of March 19, 2026 02:37 PM. All data is obtained from various sources and may not have been verified by broker or MLS GRID. Supplied Open House information is subject to change without notice. All information should be independently reviewed and verified for accuracy. Properties may or may not be listed by the office/agent presenting the information.