3419 Pinewood Street, Montrose, CO 81401
Local realty services provided by:Better Homes and Gardens Real Estate Fruit & Wine
3419 Pinewood Street,Montrose, CO 81401
$559,000
- 4 Beds
- 2 Baths
- 1,609 sq. ft.
- Single family
- Active
Listed by: shawn carroll
Office: nexthome virtual
MLS#:20260736
Source:CO_GJARA
Price summary
- Price:$559,000
- Price per sq. ft.:$347.42
- Monthly HOA dues:$25
About this home
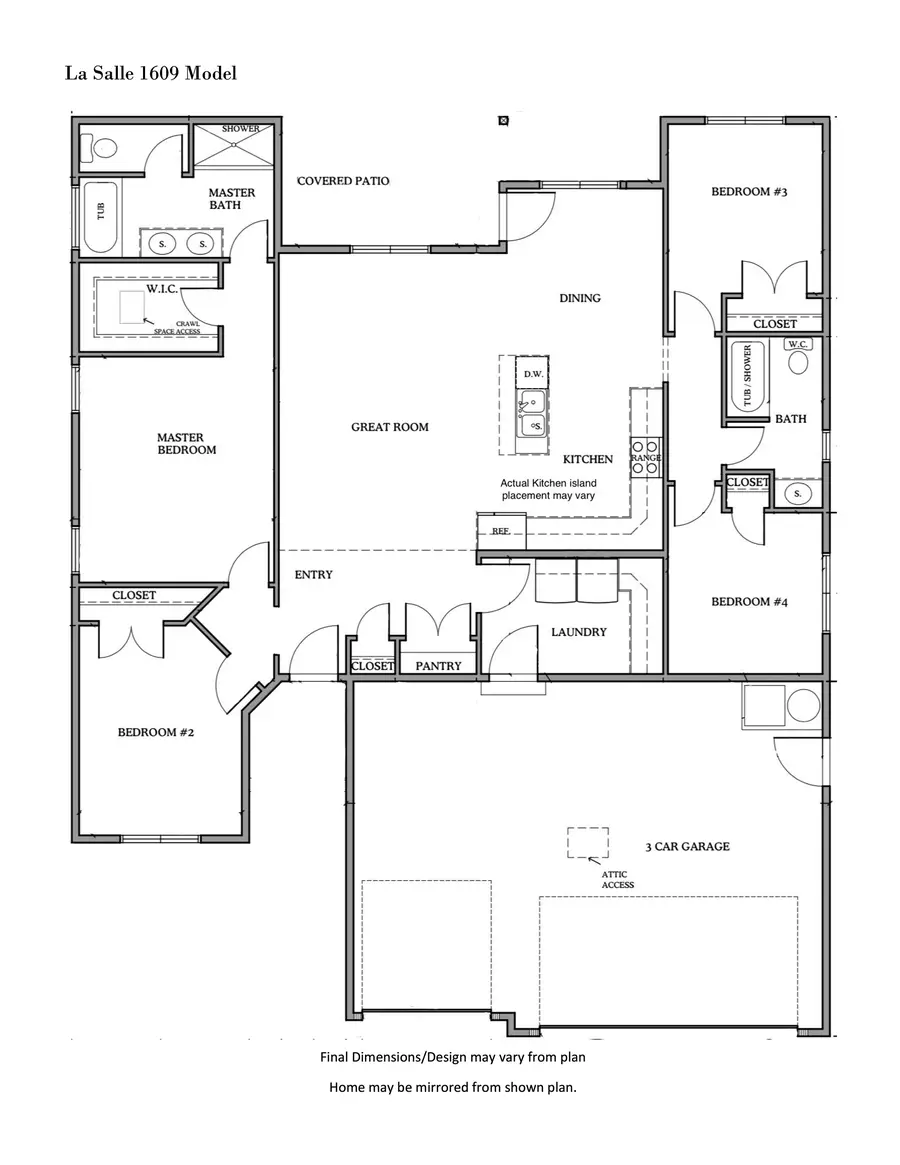
UNDER CONSTRUCTION with an estimated completion in mid-April 2026. This beautifully crafted LaSalle model offers 1,609 square feet of thoughtfully designed living space and a spacious three-car garage, built by one of Montrose’s premier builders, Ridgeline Homes. Designed with a zero-step foundation, the home provides seamless entry from the front door, garage, and back patio, offering both convenience and long-term accessibility. Inside, the open-concept great room features a vaulted living room ceiling with a ceiling fan and a stunning gas fireplace thatcreates a warm, inviting focal point. The kitchen is equally impressive, showcasing a large island with room for barstools, a beautifully tiled backsplash, under-cabinet lighting, a pantry, and an upgraded stainless steel appliance package. The dining area is enhanced by a French door that opens to the covered back patio, perfect for indoor-outdoor living. The split floor plan offers both privacy and functionality. The primary suite featuresa vaulted ceiling with ceiling fan, a spacious walk-in closet, and a luxurious ensuite bath complete with a dual-sink vanity, beautifully tiled shower with a Euro door, a separate soaking tub, and a private toilet. One additional bedroom is located on the same side as the primary suite, whiletwo more bedrooms and a full bath are situated on the opposite side of the home. Additional features include 9-foot ceilings, forced air gas heat,central air conditioning, an on-demand hot water heater, and a radon mitigation system already in place. The home’s exterior showcases excellent curb appeal with lap siding, shake accents in the eaves, and stone details. The large three-car garage includes primed and textured walls, while a convenient sidewalk leads from the driveway to the covered back porch. The fully fenced backyard features durable vinyl fencing and an irrigation backflow system for easy future landscaping. Located in a newer subdivision just minutes from downtown Montrose and the southern commercial district, this home offers the perfect blend of convenience, mountain views, sunshine, and quality craftsmanship—an exceptional opportunity to experience the very best of Montrose living. (Photo is of a rendition of the LaSalle model and actual exterior colors and stone placement may be different. Additional photos provide the interior and exterior colors planned for this home. Builder has a model home where buyer can view finish level and colors planned.)
Contact an agent
Home facts
- Year built:2026
- Listing ID #:20260736
- Added:7 day(s) ago
- Updated:February 23, 2026 at 03:32 PM
Rooms and interior
- Bedrooms:4
- Total bathrooms:2
- Full bathrooms:2
- Flooring:Laminate, Simulated Wood, Tile
- Dining Description:Kitchen/Dining Combo
- Bathrooms Description:Walk-In Shower
- Kitchen Description:Dishwasher, Disposal, Gas Oven, Gas Range, Microwave, Refrigerator
- Bedroom Description:Main Level Primary
- Basement:Yes
- Basement Description:Crawl Space
- Living area:1,609 sq. ft.
Heating and cooling
- Cooling:Central Air
- Heating:Forced Air, Natural Gas
Structure and exterior
- Roof:Asphalt, Composition
- Year built:2026
- Building area:1,609 sq. ft.
- Construction Materials:Wood Frame, Wood Siding
- Levels:1 Story
Schools
- High school:Montrose
- Middle school:Centennial
- Elementary school:Johnson
Utilities
- Water:Public
- Sewer:Connected
Finances and disclosures
- Price:$559,000
- Price per sq. ft.:$347.42
Features and amenities
- Appliances:Dishwasher, Disposal, Dryer, Gas Oven, Gas Range, Microwave, Refrigerator, Washer
- Laundry features:Dryer, Dryer Hookup, Washer, Washer Hookup
- Amenities:Ceiling Fans, Pantry, Vaulted Ceilings, Walk-In Closets
New listings near 3419 Pinewood Street
- New
$465,000Active3 beds 2 baths1,512 sq. ft.403 6600 Road, Montrose, CO 81401
MLS# 20260836Listed by: RIVER CITY REAL ESTATE, LLC - New
$84,900Active0.23 Acres2303 Painted Wall, Montrose, CO 81401
MLS# IR1052260Listed by: A. STEPHEN & CO. INC. - New
$779,900Active5 beds 3 baths3,848 sq. ft.3195 County Road 1, Montrose, CO 81403
MLS# 3979712Listed by: JPAR MODERN REAL ESTATE - New
$399,000Active3 beds 2 baths1,232 sq. ft.839 N 1st Street, Montrose, CO 81401
MLS# 20260659Listed by: NEXTHOME VIRTUAL
$420,000Active3 beds 2 baths1,289 sq. ft.1357 Fivemile Creek Avenue, Montrose, CO 81401
MLS# 20260569Listed by: NEXTHOME VIRTUAL
$424,900Active4 beds 2 baths1,410 sq. ft.22 Roundhouse St, Montrose, CO 81401
MLS# 236931Listed by: CODE OF THE WEST REAL ESTATE LLC
$540,000Active3 beds 2 baths2,212 sq. ft.1689 6429 Circle, Montrose, CO 81403
MLS# 20260544Listed by: NEXTHOME VIRTUAL
$1,100,000Active4 beds 3 baths2,861 sq. ft.66356 Otter Road, Montrose, CO 81403
MLS# 20260542Listed by: NEXTHOME VIRTUAL
$410,000Pending3 beds 2 baths1,275 sq. ft.1304 Fivemile Creek Avenue, Montrose, CO 81401
MLS# 20260530Listed by: KELLER WILLIAMS SOUTHWEST ASSOC