357 Grand Summit Drive, Monument, CO 80132
Local realty services provided by:Better Homes and Gardens Real Estate Kenney & Company
357 Grand Summit Drive,Monument, CO 80132
$799,690
- 5 Beds
- 4 Baths
- 3,879 sq. ft.
- Single family
- Active
Listed by: sarah futa
Office: keller williams action realty, llc.
MLS#:6270815
Source:CO_PPAR
Price summary
- Price:$799,690
- Price per sq. ft.:$206.16
- Monthly HOA dues:$41.67
About this home
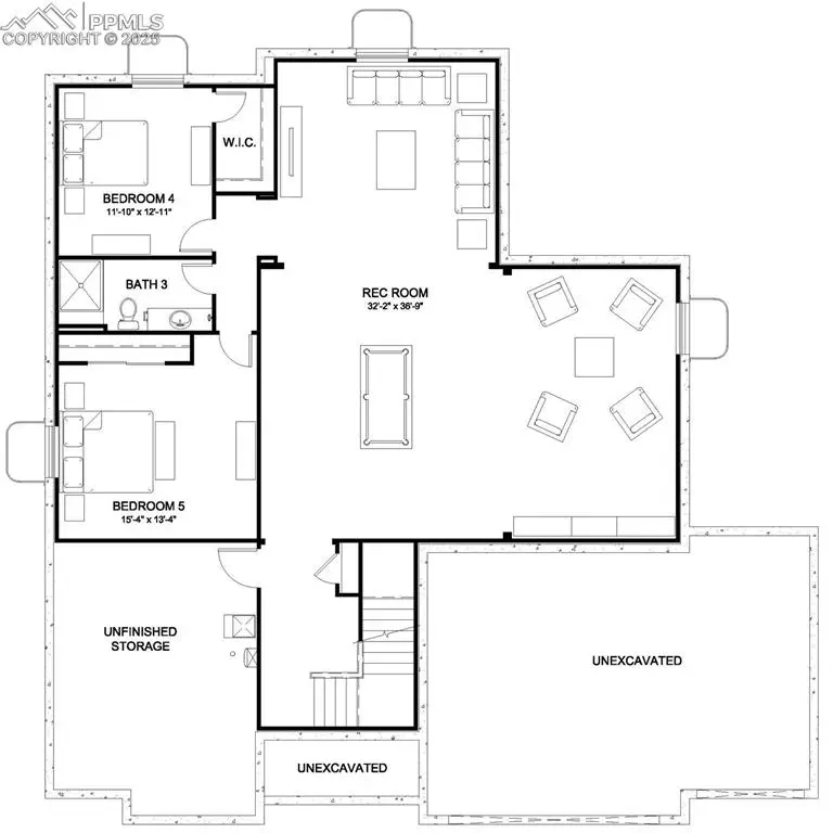
The Walter offers a distinctive take on ranch-style living, blending versatile spaces, modern finishes, and thoughtful design to create a home that feels both expansive and intimate. Set on a spacious homesite in Monument, this 5-bedroom, 3.5 bath home spans 3,879 square feet with a flexible layout perfect for entertaining or private retreats. From the moment you enter, The Walter’s unique layout sets it apart. The open-concept design connects the kitchen, dining area, and great room while offering privacy with distinct living zones. The kitchen is a chef’s dream, featuring an oversized island, ample storage, premium Samsung appliances, and direct access to the covered back patio for effortless indoor-outdoor living. The great room is filled with natural light from oversized windows and anchored by a central fireplace for a warm, welcoming feel. A private study offers a quiet space for a home office, library, or creative retreat. The primary suite is a retreat within the home, featuring a spa-inspired ensuite bath with dual vanities, a freestanding soaking tub framed between them, Kohler fixtures, and lighted mirrors with adjustable color settings. Two additional bedrooms on the main level share a Jack and Jill bath, providing comfort and privacy for family or guests. The finished basement expands the home’s possibilities with a large rec room, two bedrooms, and a full bath—ideal for a guest suite or game room. Designed with the Grand Lake interior package, The Walter exudes timeless design and sophistication with white cabinetry, crisp quartz countertops, and soft, neutral flooring. High-end Samsung appliances, Kohler fixtures, and smart home features, including a video garage opener and smart doorbell, enhance modern convenience. The farmhouse-style exterior blends rustic charm with contemporary appeal. Located in Jackson Creek in Monument, this home offers mountain views, top-rated schools, and easy access to outdoor recreation. Ready for a January 2026 closing.
Contact an agent
Home facts
- Year built:2025
- Listing ID #:6270815
- Added:38 day(s) ago
- Updated:November 19, 2025 at 03:06 PM
Rooms and interior
- Bedrooms:5
- Total bathrooms:4
- Full bathrooms:2
- Half bathrooms:1
- Living area:3,879 sq. ft.
Heating and cooling
- Cooling:Central Air
- Heating:Forced Air
Structure and exterior
- Roof:Composite Shingle
- Year built:2025
- Building area:3,879 sq. ft.
- Lot area:0.25 Acres
Schools
- High school:Lewis Palmer
- Middle school:Lewis Palmer
- Elementary school:Bear Creek
Utilities
- Water:Municipal
Finances and disclosures
- Price:$799,690
- Price per sq. ft.:$206.16
- Tax amount:$3,036 (2024)
New listings near 357 Grand Summit Drive
- New
$635,000Active4 beds 2 baths3,536 sq. ft.2159 Indian Balsam Drive, Monument, CO 80132
MLS# IR1047529Listed by: DOLBY HAAS - New
$799,000Active4 beds 4 baths3,548 sq. ft.17580 Chipped Arrow Way, Monument, CO 80132
MLS# 8263437Listed by: BERKSHIRE HATHAWAY HOMESERVICES SYNERGY REALTY GROUP - New
$799,000Active4 beds 4 baths3,548 sq. ft.17580 Chipped Arrow Way, Monument, CO 80132
MLS# 7208698Listed by: BERKSHIRE HATHAWAY HOMESERVICES SYNERGY REALTY GROUP
$620,000Pending4 beds 3 baths3,351 sq. ft.16389 Alpine Sorrel Drive, Monument, CO 80132
MLS# 5248861Listed by: THE CUTTING EDGE- New
$565,000Active3 beds 3 baths2,486 sq. ft.168 Old Creek Drive, Monument, CO 80132
MLS# 3153643Listed by: REMAX PROPERTIES - New
$740,000Active6 beds 4 baths3,876 sq. ft.2164 Coyote Mint Drive, Monument, CO 80132
MLS# 6303754Listed by: VENTERRA REAL ESTATE LLC - New
$699,900Active4 beds 3 baths3,042 sq. ft.16229 Monument Rock Court, Monument, CO 80132
MLS# 9588651Listed by: NEW HOME STAR LLC - New
$695,000Active4 beds 4 baths3,737 sq. ft.2064 Bobcat Valley Court, Monument, CO 80132
MLS# 6960220Listed by: BIRGER AND BIRGER INC - New
$689,900Active4 beds 3 baths3,400 sq. ft.150 Winding Meadow Way, Monument, CO 80132
MLS# 3491859Listed by: THE GOLD MEDAL TEAM
$420,000Pending3 beds 3 baths1,546 sq. ft.1408 Red Mica Way, Monument, CO 80132
MLS# 6882776Listed by: MB-BRUNK AND BRUNK INC