10730 Tomboy Drive, Parker, CO 80134
Local realty services provided by:Better Homes and Gardens Real Estate Kenney & Company
10730 Tomboy Drive,Parker, CO 80134
$665,900
- 4 Beds
- 3 Baths
- 2,954 sq. ft.
- Single family
- Pending
Listed by: tom ullrich
Office: re/max professionals
MLS#:1954835
Source:ML
Price summary
- Price:$665,900
- Price per sq. ft.:$225.42
- Monthly HOA dues:$24
About this home
**Contact builder today about Special Financing for this home - terms and conditions apply**
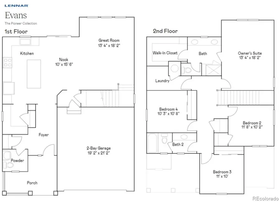
Available NOW!! This beautiful new Evans 2-story features 3 beds, 2.5 baths, laundry, great room, kitchen, dining room, loft, unfinished basement, 2 car garage and boasts an extensive backyard. Gorgeous design finishes and upgrades throughout including luxury vinyl plank flooring, stainless steel appliances and more. This builder provides the latest in energy efficiency and state of the art technology with several fabulous floorplans to choose from. Energy efficiency, and technology/connectivity seamlessly blended with luxury to make your new house a home. Newlin Crossing offers single family homes for every lifestyle. Close to dining, shopping, entertainment and other amenities. Don't miss your opportunity. Welcome Home! Photos and walkthrough tour are model only and subject to change. In addition to the Newlin Crossing Metro District, there is the Stonegate Village Metropolitan District that services and maintains the clubhouse and pool. An additional $72.78 per month operations fee is imposed....
Contact an agent
Home facts
- Year built:2026
- Listing ID #:1954835
Rooms and interior
- Bedrooms:4
- Total bathrooms:3
- Full bathrooms:1
- Half bathrooms:1
- Flooring:Carpet, Tile, Vinyl
- Kitchen Description:Dishwasher, Disposal, Kitchen Island, Microwave, Refrigerator, Self Cleaning Oven
- Basement:Yes
- Basement Description:Unfinished
- Living area:2,954 sq. ft.
Heating and cooling
- Cooling:Central Air
- Heating:Forced Air, Natural Gas
- Central air:Yes
Structure and exterior
- Roof:Composition
- Year built:2026
- Building area:2,954 sq. ft.
- Lot area:0.13 Acres
- Lot Features:Corner
- Construction Materials:Frame
- Exterior Features:Front Porch, Private Yard, Rain Gutters
- Levels:2 Story
Schools
- High school:Chaparral
- Middle school:Sierra
- Elementary school:Prairie Crossing
Utilities
- Water:Public
- Sewer:Public Sewer
Finances and disclosures
- Price:$665,900
- Price per sq. ft.:$225.42
- Tax amount:$7,543 (2024)
Features and amenities
- Laundry features:In Unit
- Amenities:Carbon Monoxide Detector(s), Double Pane Windows, Smoke Detector(s)
Parking
- Total parking spaces:2
- Parking description:Concrete Driveway
- Garage:Yes
- Garage spaces:2
New listings near 10730 Tomboy Drive
$705,400Pending3 beds 3 baths2,954 sq. ft.10807 Jagged Street, Parker, CO 80134
MLS# 7816319Listed by: RE/MAX PROFESSIONALS- Coming Soon
$1,495,000Coming Soon4 beds 4 baths8454 N Sundown Trail, Parker, CO 80134
MLS# 8114075Listed by: LIV SOTHEBY'S INTERNATIONAL REALTY - New
$649,990Active3 beds 3 baths2,903 sq. ft.13749 Daffodil Point, Parker, CO 80134
MLS# 3909683Listed by: DFH COLORADO REALTY LLC - Coming Soon
$689,000Coming Soon3 beds 3 baths6825 Zebra Grass Lane, Parker, CO 80138
MLS# 5632109Listed by: RE/MAX ALLIANCE - New
$790,000Active5 beds 4 baths3,907 sq. ft.5218 Bur Oak Lane, Parker, CO 80134
MLS# 8230697Listed by: RE/MAX PROFESSIONALS - New
$836,110Active3 beds 3 baths3,674 sq. ft.20927 Grays Peak Drive, Parker, CO 80138
MLS# 8755351Listed by: LANDMARK RESIDENTIAL BROKERAGE - Coming Soon
$530,000Coming Soon4 beds 3 baths8697 Aspen Circle, Parker, CO 80134
MLS# 7473084Listed by: MB THE REAL ESTATE FIRM - New
$498,000Active3 beds 2 baths1,672 sq. ft.8370 Sandreed Circle, Parker, CO 80134
MLS# 8559162Listed by: EQUITY COLORADO REAL ESTATE - New
$618,000Active3 beds 3 baths2,794 sq. ft.23831 Eagle Bend Lane, Parker, CO 80138
MLS# 5620253Listed by: TOTAL REALTY CORP. - New
$615,000Active3 beds 3 baths3,374 sq. ft.8895 Birch Run Drive, Parker, CO 80134
MLS# 6682850Listed by: ORCHARD BROKERAGE LLC