6821 Arbor Boulevard E, Thornton, CO 80602
Local realty services provided by:Better Homes and Gardens Real Estate Kenney & Company
6821 Arbor Boulevard E,Thornton, CO 80602
$524,900
- 3 Beds
- 3 Baths
- 2,460 sq. ft.
- Townhouse
- Pending
Listed by: kris cerettokris@thecerettogroup.com,720-939-0558
Office: coldwell banker realty 56
MLS#:9493415
Source:ML
Price summary
- Price:$524,900
- Price per sq. ft.:$213.37
- Monthly HOA dues:$190
About this home
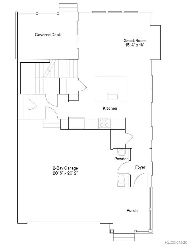
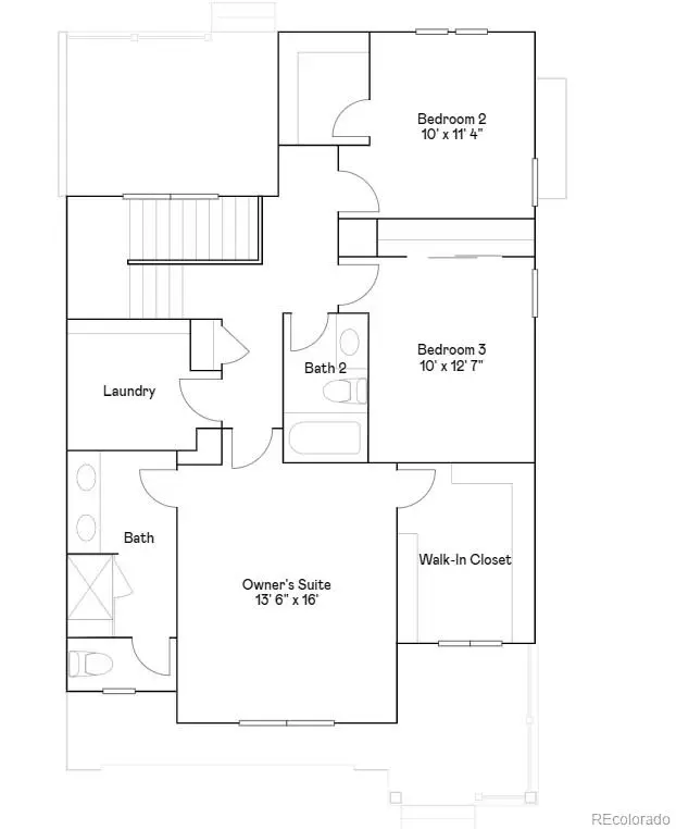
**Contact builder today about Special Financing for this home - terms and conditions apply**Experience the perfect balance of style and comfort in this beautifully crafted paired home. The spacious two-story design features an open-concept main level where the kitchen flows seamlessly into the Great Room and extends to a covered deck—ideal for entertaining or enjoying quiet moments outdoors. Upstairs, three well-designed bedrooms include a private owner’s suite tailored for rest and retreat. A conveniently located laundry room adds everyday ease, while elevated finishes such as quartz countertops and luxury vinyl plank flooring bring a touch of sophistication throughout. The unfinished basement offers endless potential—whether you envision a home gym, creative studio, or media room. Located in a vibrant community, you’ll enjoy easy access to upscale shopping and dining at Denver Premium Outlets, along with abundant recreational opportunities at Trail Winds Recreation Center. This home is designed to grow with you, offering lasting comfort, modern connections, and a lifestyle you’ll truly love. Estimated completion date is November 2025.
Contact an agent
Home facts
- Year built:2024
- Listing ID #:9493415
Rooms and interior
- Bedrooms:3
- Total bathrooms:3
- Full bathrooms:1
- Half bathrooms:1
- Flooring:Carpet, Vinyl
- Kitchen Description:Dishwasher, Disposal, Eat-in Kitchen, Kitchen Island, Microwave, Oven, Refrigerator
- Basement:Yes
- Basement Description:Full, Unfinished
- Living area:2,460 sq. ft.
Heating and cooling
- Cooling:Central Air
- Heating:Forced Air
Structure and exterior
- Roof:Composition
- Year built:2024
- Building area:2,460 sq. ft.
- Lot area:0.07 Acres
- Architectural Style:Contemporary
- Construction Materials:Frame, Stone
- Exterior Features:Covered, Deck, Front Porch
- Foundation Description:Slab
- Levels:2 Story
Schools
- High school:Riverdale Ridge
- Middle school:Roger Quist
- Elementary school:West Ridge
Utilities
- Water:Public
- Sewer:Public Sewer
Finances and disclosures
- Price:$524,900
- Price per sq. ft.:$213.37
- Tax amount:$5,565 (2024)
Features and amenities
- Amenities:Carbon Monoxide Detector(s), Double Pane Windows, Smoke Detector(s)
New listings near 6821 Arbor Boulevard E
- Open Sat, 11am to 1pmNew
$750,000Active4 beds 4 baths4,327 sq. ft.1980 E 150th Court, Thornton, CO 80602
MLS# 3433886Listed by: DEMIS REALTY INC - New
$375,000Active2 beds 3 baths1,446 sq. ft.5740 E 127th Place, Thornton, CO 80602
MLS# 5205262Listed by: BERKSHIRE HATHAWAY HOMESERVICES COLORADO REAL ESTATE, LLC - New
$330,000Active3 beds 2 baths1,380 sq. ft.833 E 98th Avenue #207, Thornton, CO 80229
MLS# 2311836Listed by: HOMESMART REALTY - Coming Soon
$444,900Coming Soon3 beds 3 baths13604 Garfield Street #E, Thornton, CO 80602
MLS# 6483243Listed by: RE/MAX NORTHWEST INC - New
$560,000Active4 beds 3 baths2,638 sq. ft.13871 Ivy Street, Thornton, CO 80602
MLS# 8016581Listed by: REDFIN CORPORATION - New
$414,000Active3 beds 3 baths2,437 sq. ft.811 E 98th Avenue #502, Thornton, CO 80229
MLS# 2373544Listed by: MODERN COLLECTIVE REAL ESTATE - New
$750,000Active4 beds 5 baths4,120 sq. ft.7018 E 123rd Place, Thornton, CO 80602
MLS# 4026156Listed by: SNYDER REALTY TEAM - New
$679,000Active3 beds 3 baths4,488 sq. ft.16076 Columbine Place, Thornton, CO 80602
MLS# 7511462Listed by: HOME SONG REALTY - Coming Soon
$580,000Coming Soon3 beds 3 baths12237 Cook Court, Thornton, CO 80241
MLS# 7686132Listed by: BERKSHIRE HATHAWAY HOMESERVICES COLORADO REAL ESTATE, LLC - New
$810,000Active3 beds 4 baths4,238 sq. ft.6261 E 142nd Way, Thornton, CO 80602
MLS# 4946821Listed by: TRELORA REALTY, INC.