3790 Fenton Street, Wheat Ridge, CO 80212
Local realty services provided by:Better Homes and Gardens Real Estate Kenney & Company
3790 Fenton Street,Wheat Ridge, CO 80212
$839,900
- 3 Beds
- 3 Baths
- 1,704 sq. ft.
- Single family
- Active
Listed by: nathan adamsnathan@redTHomes.com,720-255-4101
Office: redt llc.
MLS#:9489519
Source:ML
Price summary
- Price:$839,900
- Price per sq. ft.:$492.9
About this home
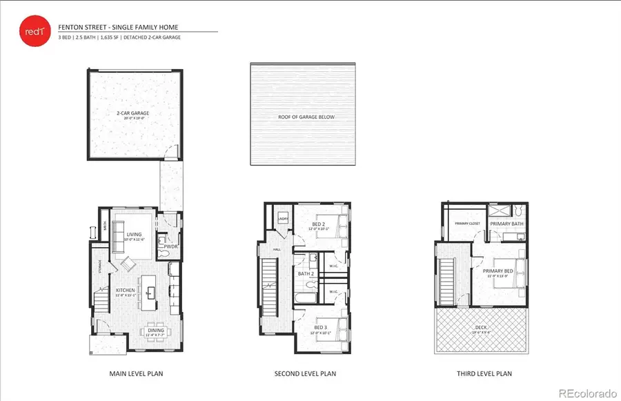
Welcome to Fenton, Wheat Ridge’s newest modern community just 6 miles from Downtown Denver! These stylish single-family homes offer open-concept layouts featuring 3 bedrooms, 2.5 bathrooms, and 1,704 sq. ft. of thoughtfully designed living space.
The main level includes a defined dining area, casual eating space, tons of natural light, and a convenient main floor powder room. West-facing orientation enhances natural light throughout the home.
Upstairs, all bedrooms feature walk-in closets, and the dedicated laundry room is conveniently located on the second level. The top level boasts a luxurious and private primary suite with expansive mountain views and an en suite bath, plus access to a roughly 170 sq. ft. deck — perfect for entertaining or relaxing while enjoying the scenery.
Additional highlights include a detached 2-car garage and a fenced private patio/yard space between the home and garage, ideal for outdoor enjoyment.
Nestled near parks, outdoor recreation, and local dining, Fenton blends small-town charm with easy access to city amenities. Perfect for young professionals, growing families, or downsizers seeking modern, low-maintenance living with excellent proximity to Downtown Denver, shopping, and green space.
Don’t miss this opportunity to own a brand-new home in Wheat Ridge!
By setting a showing on behalf of you and your client you acknowledge this property is an active construction site and proper attire is required. No open toed shoes and please remain on poured sidewalks when accessing the property.
Must wear hard hats for tours – hard hats will be on kitchen island; PLEASE MAKE SURE YOU RETURN THEM TO THE KITCHEN ISLAND WHEN FINISHED! If you have more guests to tour than there are hard hats, please take turns touring so everyone has the proper head protection available....
Contact an agent
Home facts
- Year built:2026
- Listing ID #:9489519
Rooms and interior
- Bedrooms:3
- Total bathrooms:3
- Full bathrooms:1
- Half bathrooms:1
- Living area:1,704 sq. ft.
Heating and cooling
- Cooling:Air Conditioning-Room
- Heating:Forced Air
Structure and exterior
- Roof:Membrane
- Year built:2026
- Building area:1,704 sq. ft.
- Lot area:0.04 Acres
- Architectural Style:Contemporary
- Construction Materials:Frame
- Exterior Features:Patio
- Levels:3 or More Stories
Schools
- High school:Wheat Ridge
- Middle school:Everitt
- Elementary school:Stevens
Utilities
- Sewer:Public Sewer
Finances and disclosures
- Price:$839,900
- Price per sq. ft.:$492.9
- Tax amount:$1,000 (2025)
Parking
- Total parking spaces:2
- Garage:Yes
- Garage spaces:2
New listings near 3790 Fenton Street
- New
$439,000Active2 beds 2 baths1,219 sq. ft.4676 Flower Street, Wheat Ridge, CO 80033
MLS# 2214256Listed by: WEST AND MAIN HOMES INC - Open Sat, 10am to 12pmNew
$800,000Active4 beds 2 baths2,344 sq. ft.9880 W 34th Drive, Wheat Ridge, CO 80033
MLS# 6741349Listed by: EXIT REALTY DTC, CHERRY CREEK, PIKES PEAK. - Open Sat, 11am to 1pmNew
$680,000Active4 beds 2 baths2,110 sq. ft.4216 Ammons Street, Wheat Ridge, CO 80033
MLS# 5797480Listed by: REALTY ONE GROUP ELEVATIONS, LLC - Open Sun, 11am to 1pmNew
$534,900Active4 beds 2 baths1,618 sq. ft.4714 Carr Street, Wheat Ridge, CO 80033
MLS# 7363680Listed by: BROKERS GUILD HOMES - Open Sat, 11am to 1pmNew
$775,000Active5 beds 3 baths2,658 sq. ft.3520 Urban Court, Wheat Ridge, CO 80033
MLS# 4760314Listed by: KELLER WILLIAMS PREFERRED REALTY - Coming SoonOpen Sat, 11am to 1pm
$650,000Coming Soon4 beds 2 baths6811 W 48th Avenue, Wheat Ridge, CO 80033
MLS# 7342470Listed by: COMPASS - DENVER - Coming Soon
$639,900Coming Soon3 beds 2 baths4330 Upham Street, Wheat Ridge, CO 80033
MLS# 5545840Listed by: THE GOLDEN GROUP - Open Sat, 1am to 4pm
$739,000Pending4 beds 3 baths2,454 sq. ft.4600 Reed Street, Wheat Ridge, CO 80033
MLS# 2391296Listed by: YOUR CASTLE REALTY LLC - Open Sat, 10am to 1pmNew
$649,900Active4 beds 3 baths1,845 sq. ft.12475 W 38th Avenue, Wheat Ridge, CO 80033
MLS# 9538328Listed by: REALTY ONE GROUP PREMIER COLORADO - New
$565,000Active3 beds 3 baths1,855 sq. ft.11737 W 45th Place, Wheat Ridge, CO 80033
MLS# 9415602Listed by: RE/MAX PROFESSIONALS