8 Fieldstone Court #8, Bethel, CT 06801
Local realty services provided by:Better Homes and Gardens Real Estate Gaetano Marra Homes
8 Fieldstone Court #8,Bethel, CT 06801
$719,000
- 3 Beds
- 3 Baths
- 2,164 sq. ft.
- Condominium
- Pending
Listed by: jay streaman(203) 994-9421
Office: re/max right choice(203) 744-2400
MLS#:24130962
Source:CT
Price summary
- Price:$719,000
- Price per sq. ft.:$332.26
- Monthly HOA dues:$413
About this home
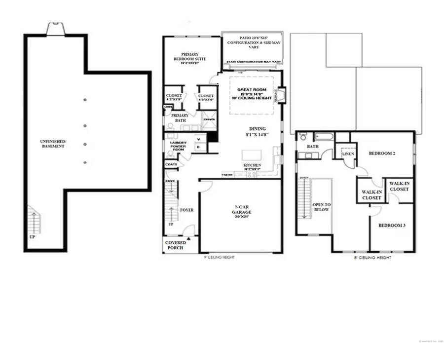
Introducing Phase 3 Fieldstone Commons. A Spectacular, newly constructed community that offers a low-maintenance lifestyle and energy conscious designs. Stand alone homes offering quality construction with high end features. 8 Fieldstone Court is currently under construction with a completion date spring 2026. This unit offers 2,166 Square Feet with open floor-plan. Stunning 2 story entry with open rail staircase leads to a custom kitchen and great room with tray ceiling, gas log fireplace and triple window sliding door to a private Nicoloc Paver patio. 4" Oak hardwood floors throughout. Main level Primary bedroom with 2 large walk-in closets and large bathroom with double sinks and walk-in shower. Upstairs has 2 additional bedrooms with large walk-in closets and an open loft for office or sitting area. Quality finishes throughout, efficient propane hot air heat with central A/C. This home also has a Spacious 2 Car Garage and a Full basement with the option to finish for an additional 686 square feet of space. Home is currently under construction. There is still time for you to customize the finishes! Convenient and central location off Stony Hill Road. Walking distance to restaurants and retail. Just minutes from Exits 8 and 9 on Interstate 84. Come see all that this new community has to offer! Fieldstone Commons A common interest community. Photos are from a similar unit in the same complex and may contain upgraded finishes. Estimated occupancy spring 2026...
Contact an agent
Home facts
- Year built:2026
- Listing ID #:24130962
- Added:190 day(s) ago
- Updated:April 12, 2026 at 07:19 AM
Rooms and interior
- Bedrooms:3
- Total bathrooms:3
- Full bathrooms:2
- Half bathrooms:1
- Rooms Total:7
- Kitchen Description:Dishwasher, Gas Range, Microwave, Range Hood, Refrigerator
- Basement Description:Full Basement, Interior Access, Unfinished
- Living area:2,164 sq. ft.
Heating and cooling
- Cooling:Central Air
- Heating:Hot Air
- Central air:Yes
Structure and exterior
- Year built:2026
- Building area:2,164 sq. ft.
- Lot Features:Level Lot, On Cul-De-Sac
- Architectural Style:Single Family Detached
- Construction Materials:Vinyl Siding
- Exterior Features:Patio, Porch
Schools
- High school:Bethel
- Middle school:Bethel
- Elementary school:Per Board of Ed
Utilities
- Water:Public Water Connected
Finances and disclosures
- Price:$719,000
- Price per sq. ft.:$332.26
- Tax amount:$9,999 (July 2025-June 2026)
Features and amenities
- Appliances:Dishwasher, Gas Range, Microwave, Range Hood, Refrigerator
- Amenities:Open Floor Plan, Shopping/Mall
Parking
- Total parking spaces:4
- Parking description:Driveway, Paved, Under House Garage
- Garage:Yes
New listings near 8 Fieldstone Court #8
- Open Sun, 1 to 3pmNew
$619,000Active3 beds 3 baths2,100 sq. ft.3 Old Dodgingtown Road, Bethel, CT 06801
MLS# 24160166Listed by: Nationwide Homes - Open Sun, 11am to 1:30pmNew
$899,000Active4 beds 3 baths2,199 sq. ft.4 Governors Lane, Bethel, CT 06801
MLS# 24164606Listed by: Klemm Real Estate Inc - Open Sun, 1 to 3pmNew
$569,900Active2 beds 2 baths2,080 sq. ft.11 Highland Avenue, Bethel, CT 06801
MLS# 24163347Listed by: Patricia Schiller Real Estate - Open Sun, 12 to 3pmNew
$985,000Active4 beds 3 baths3,586 sq. ft.132 Codfish Hill Road, Bethel, CT 06801
MLS# 24164729Listed by: Keller Williams Realty - New
$650,000Active3 beds 2 baths1,852 sq. ft.88 Putnam Park Road, Bethel, CT 06801
MLS# 24165440Listed by: William Pitt Sotheby's Int'l - Open Sun, 1 to 3pmNew
$620,000Active4 beds 3 baths2,173 sq. ft.65 Nashville Rd Extension, Bethel, CT 06801
MLS# 24164593Listed by: Coldwell Banker Realty - Open Sun, 12 to 2pmNew
$455,000Active3 beds 2 baths1,502 sq. ft.4 Midway Drive, Bethel, CT 06801
MLS# 24164794Listed by: Keller Williams Realty - New
Listed by BHGRE$379,000Active2 beds 2 baths1,248 sq. ft.81 Deer Run #81, Bethel, CT 06801
MLS# 24164221Listed by: BHGRE Gaetano Marra Homes
$398,000Pending3 beds 1 baths1,176 sq. ft.13 Fairchild Drive, Bethel, CT 06801
MLS# 24164041Listed by: William Pitt Sotheby's Int'l
$489,900Pending3 beds 2 baths1,664 sq. ft.112 Nashville Road, Bethel, CT 06801
MLS# 24158474Listed by: ERA Insite Realty Services