3821 14th St Nw #6, Washington, DC 20011
Local realty services provided by:Better Homes and Gardens Real Estate Reserve
3821 14th St Nw #6,Washington, DC 20011
$595,000
- 3 Beds
- 2 Baths
- 1,225 sq. ft.
- Condominium
- Active
Listed by: timothy d pierson, reagan anderson fox
Office: kw united
MLS#:DCDC2232564
Source:BRIGHTMLS
Price summary
- Price:$595,000
- Price per sq. ft.:$485.71
About this home
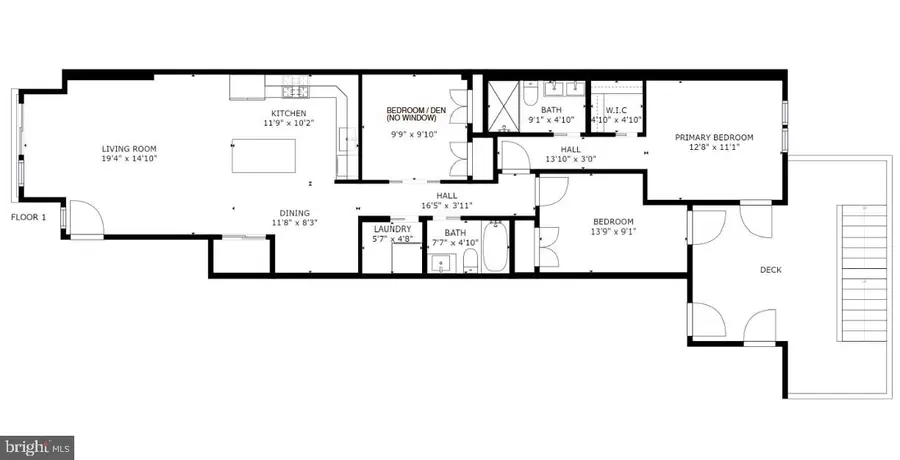
Welcome home to this glamorous luxury condo in the Columbia Heights neighborhood of D.C. with reserved parking! You will love the open floor plan, oversized windows, and gleaming Canadian maple hardwood floors! The spacious living room has treetop views and conversations are a breeze when entertaining in the kitchen. The kitchen boasts Carrera marble countertops, Stainless steel appliances, glass tile backsplash, Copenhagen door style cabinets, and a large island with bar stool seating! The three bedrooms (or two bedrooms with a large den) complete this over 1,200 square foot condo. The primary bedroom is a dream and provides access to a private bathroom with designer tiling and glass enclosed shower, a walk-in closet with Elfa storage system, and deck access. The second bedroom also has a private door to access the deck. Looking for a great home office, potential third bedroom, hobby room, or workout space? Opportunities are endless in this den that has been used as a bedroom and can be closed off with a stylish pocket door (two closets, but no window). Off the hallway is a spacious laundry room with a new washer and dryer. Not to be missed is the desirability of this boutique nine-unit building that was completed in 2015. Access each unit from the covered interior stairway or by the open-air back staircase. The common shared backyard has a firepit, beautiful landscaping, and room to entertain! Both the Petworth and Columbia Heights Metro stops are only eleven blocks away! Nearby restaurants, stores, and grocery shops include Giant Food, Target, Safeway, IronAge, The Coupe, Chipotle, and Chick-Fil-A. The home is also zoned for Powell Elementary School (rated an 8 in Great Schools)! Don’t miss this property, it will not last long....
Contact an agent
Home facts
- Year built:2015
- Listing ID #:DCDC2232564
- Added:103 day(s) ago
- Updated:March 16, 2026 at 01:41 PM
Rooms and interior
- Bedrooms:3
- Total bathrooms:2
- Full bathrooms:2
- Flooring:Hardwood
- Dining Description:Combination Dining/Living, Combination Kitchen/Dining
- Bathrooms Description:Primary Bath(s)
- Kitchen Description:Built-In Microwave, Combination Kitchen/Living, Dishwasher, Disposal, Kitchen - Gourmet, Microwave, Oven/Range - Gas, Recessed Lighting, Refrigerator, Stainless Steel Appliances, Upgraded Countertops
- Bedroom Description:Walk In Closet(s)
- Living area:1,225 sq. ft.
Heating and cooling
- Cooling:Central A/C
- Heating:Central, Natural Gas
Structure and exterior
- Year built:2015
- Building area:1,225 sq. ft.
- Architectural Style:Contemporary
- Construction Materials:Brick, Combination, Concrete
- Levels:1 Story
Schools
- High school:THEODORE ROOSEVELT
- Middle school:MACFARLAND
- Elementary school:POWELL
Utilities
- Water:Public
- Sewer:Public Sewer
Finances and disclosures
- Price:$595,000
- Price per sq. ft.:$485.71
- Tax amount:$4,801 (2025)
Features and amenities
- Laundry features:Dryer, Dryer In Unit, Washer, Washer In Unit
- Amenities:Double Pane Windows, Recessed Lighting, Window Treatments
Parking
- Parking description:Assigned, Off Street, Private, Surface
New listings near 3821 14th St Nw #6
- Coming SoonOpen Sat, 11am to 1pm
$315,000Coming Soon1 beds 1 baths1 Scott Cir Nw #106, WASHINGTON, DC 20036
MLS# DCDC2250650Listed by: COMPASS - New
$330,000Active3 beds 3 baths1,896 sq. ft.883 Barnaby St Se, WASHINGTON, DC 20032
MLS# DCDC2250310Listed by: NORTHROP REALTY - Coming SoonOpen Sun, 2 to 4pm
$524,750Coming Soon4 beds 4 baths4521 Clay St Ne, WASHINGTON, DC 20019
MLS# DCDC2249776Listed by: TTR SOTHEBY'S INTERNATIONAL REALTY - New
$179,524Active3 beds 2 baths1,539 sq. ft.1429 Girard St Nw #205, WASHINGTON, DC 20009
MLS# DCDC2250700Listed by: EXP REALTY, LLC - New
$682,500Active4 beds 3 baths1,520 sq. ft.3323 Sherman Ave Nw, WASHINGTON, DC 20010
MLS# DCDC2250606Listed by: RLAH @PROPERTIES - New
$599,000Active8 beds -- baths2,508 sq. ft.408 Newcomb St Se, WASHINGTON, DC 20032
MLS# DCDC2250686Listed by: EPIQUE REALTY - New
$629,000Active3 beds 4 baths1,480 sq. ft.1249 Owen Pl Ne, WASHINGTON, DC 20002
MLS# DCDC2250688Listed by: SIGNATURE HOME REALTY LLC - New
$700,000Active6 beds -- baths2,592 sq. ft.52 Forrester St Sw, WASHINGTON, DC 20032
MLS# DCDC2250690Listed by: BENNETT REALTY SOLUTIONS - Coming SoonOpen Sun, 11am to 1pm
$539,000Coming Soon2 beds 2 baths711 15th St Ne #4, WASHINGTON, DC 20002
MLS# DCDC2250684Listed by: SAMSON PROPERTIES - New
$2,300,000Active3 beds 3 baths2,304 sq. ft.700 New Hampshire Ave Nw #1218, WASHINGTON, DC 20037
MLS# DCDC2242322Listed by: WINSTON REAL ESTATE, INC.