7041 31st St Nw, Washington, DC 20015
Local realty services provided by:Better Homes and Gardens Real Estate Maturo
7041 31st St Nw,Washington, DC 20015
$1,495,000
- 4 Beds
- 4 Baths
- - sq. ft.
- Single family
- Coming Soon
Upcoming open houses
- Sat, Apr 1802:00 pm - 04:00 pm
Listed by: kimberly a cestari
Office: long & foster real estate, inc.
MLS#:DCDC2240384
Source:BRIGHTMLS
Price summary
- Price:$1,495,000
About this home
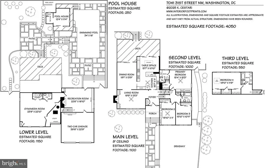
Located on a quiet tree-lined street, this spacious home with numerous appealing updates is sited on a desirable, elevated 8,736 square foot lot with tree top views overlooking Rock Creek Park. This beautiful residence offers over 4,000 finished square feet across four levels. The outdoor spaces are truly exceptional, featuring a stunning, newly renovated in-ground pool with pool house and flagstone patios, all surrounded by a cedar privacy fence, creating a quiet and private oasis perfect for relaxing or entertaining.
Inside, the main level welcomes you with an entry foyer, a gracious living room with fireplace, a formal dining room, and a table-space kitchen with skylight. Both the dining room and the kitchen offer direct access to the spacious, no-maintenance Trex deck. The second level includes three bedrooms and two full baths. A few steps up, the private primary suite is a retreat of its own, complete with an en-suite bath, a wall of closets, and a large skylight ideal for stargazing at night. The recreation room, with its second fireplace and custom built-ins, offers access to the rare 2-car garage and opens to the rear flagstone patio, seamlessly connecting indoor and outdoor living. The lowest level provides flexible space ideal for a gym or media room and includes laundry and a convenient powder room.
Meticulously maintained and thoughtfully updated by the current owners, improvements include a new roof, Andersen windows and sliding glass doors, deck, patio, and many additional upgrades throughout. This is a rare opportunity to enjoy space, privacy, and comfortable living in a truly special home in boundary for Lafayette, Deal and Jackson Reed....
Contact an agent
Home facts
- Year built:1958
- Listing ID #:DCDC2240384
- Added:1 day(s) ago
- Updated:April 14, 2026 at 11:40 PM
Rooms and interior
- Bedrooms:4
- Total bathrooms:4
- Full bathrooms:3
- Half bathrooms:1
- Flooring:Carpet, Hardwood
- Dining Description:Dining Area
- Bathrooms Description:Primary Bath(s)
- Kitchen Description:Breakfast Area, Built-In Microwave, Built-Ins, Carpet, Cooktop, Dishwasher, Disposal, Exhaust Fan, Icemaker, Kitchen - Table Space, Oven - Double, Oven - Wall, Oven/Range - Gas, Range Hood, Refrigerator, Upgraded Countertops, Wine Storage
- Bedroom Description:Carpet, Walk In Closet(s)
- Basement:Yes
- Basement Description:Connecting Stairway, Full, Fully Finished, Sump Pump
Heating and cooling
- Cooling:Ceiling Fan(s), Central A/C, Dehumidifier, Ductless/Mini-Split, Heat Pump(s)
- Heating:Forced Air, Heat Pump(s), Humidifier, Natural Gas
Structure and exterior
- Roof:Fiberglass, Flat
- Year built:1958
- Lot Features:Landscaping
- Architectural Style:Split Level
- Construction Materials:Brick, Combination
- Exterior Features:Deck(s), Exterior Lighting, Lawn Sprinkler, Patio(s)
- Levels:4 Story
Schools
- High school:JACKSON-REED
- Middle school:DEAL
- Elementary school:LAFAYETTE
Utilities
- Water:Public
- Sewer:Public Sewer
Finances and disclosures
- Price:$1,495,000
- Tax amount:$10,886 (2025)
Features and amenities
- Laundry features:Dryer, Washer
- Amenities:Built-Ins, Carbon Monoxide Detector(s), Carpet, Central Vaccum, Central Vacuum, Double Pane Windows, Electric Alarm, Exterior Cameras, Humidifer, Motion Detectors, Replacement Windows, Security System, Skylight(s), Smoke Detector, Water Treat System, Window Treatments
- Pool features:Gunite, In Ground, Lap/Exercise
Parking
- Parking description:Asphalt Driveway, Attached Garage, Garage Door Opener, Off Street
- Garage:Yes
- Garage spaces:2
New listings near 7041 31st St Nw
- Coming SoonOpen Sat, 1 to 3pm
$724,000Coming Soon2 beds 2 baths903 12th St Se, WASHINGTON, DC 20003
MLS# DCDC2255212Listed by: KELLER WILLIAMS CAPITAL PROPERTIES
$555,000Pending2 beds 2 baths895 sq. ft.1124 Florida Ave Ne #401, WASHINGTON, DC 20002
MLS# DCDC2256066Listed by: URBAN PACE POLARIS, INC.
$404,900Pending1 beds 2 baths695 sq. ft.1124 Florida Ave Ne #409, WASHINGTON, DC 20002
MLS# DCDC2256058Listed by: URBAN PACE POLARIS, INC.- Coming Soon
$799,900Coming Soon4 beds 4 baths3310 Theodore R Hagans Dr Ne, WASHINGTON, DC 20018
MLS# DCDC2255776Listed by: KELLER WILLIAMS CAPITAL PROPERTIES - Coming Soon
$490,000Coming Soon2 beds 1 baths1810 California St Nw #202, WASHINGTON, DC 20009
MLS# DCDC2255950Listed by: COMPASS - New
$925,000Active8 beds -- baths2,508 sq. ft.412 Newcomb St Se, WASHINGTON, DC 20032
MLS# DCDC2255994Listed by: SMART REALTY, LLC - New
$289,900Active3 beds 2 baths1,420 sq. ft.4020 Southern Ave Se, WASHINGTON, DC 20020
MLS# DCDC2256036Listed by: RLAH @PROPERTIES - Coming Soon
$1,100,000Coming Soon4 beds 3 baths3248 Jones Ct Nw, WASHINGTON, DC 20007
MLS# DCDC2248710Listed by: CORCORAN MCENEARNEY - Open Sat, 12 to 2pmNew
$649,000Active2 beds 2 baths1,543 sq. ft.773 Kenyon St Nw, WASHINGTON, DC 20010
MLS# DCDC2254564Listed by: REDFIN CORP