169 Tranquil Mirror Lake Court #Lot 7, Clermont, FL 34711
Local realty services provided by:Better Homes and Gardens Real Estate Lifestyles Realty
Listed by: edward durruthy, angela durruthy
Office: resolute development group, llc.
MLS#:O6391722
Source:MFRMLS
Price summary
- Price:$2,721,250
- Price per sq. ft.:$488.55
- Monthly HOA dues:$41.67
About this home
Introducing a premier LAKEFRONT elevated homesite within an exclusive gated luxury community. With expansive views across serene natural landscapes and tranquil water, this homesite truly stands out. Its higher position on the lake provides a rare vantage point, enhancing privacy while capturing sweeping panoramas and the charm of an active orange grove across the water. With approximately 90 feet of direct lake frontage and 90 feet of street frontage, the lot provides a generous and flexible building envelope suitable for a range of architectural expressions.
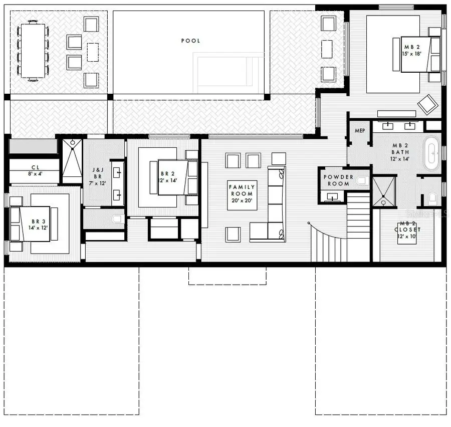
Designed as a refined retreat for elevated everyday living, the proposed 4,990 sq ft Nottingham residence blends architectural presence with warmth, comfort, and intentional design. Thoughtfully composed living spaces, curated materials, and layered natural light create a home that feels both elegant and effortless. The floor plan is intentionally adaptable, offering options for additional bedrooms, expanded garage capacity, and enhanced outdoor living environments while maintaining timeless craftsmanship.
The main floor includes the Primary suite, office/bonus room, 2 full baths, living room, kitchen and pantry, dining room, laundry, and a 2-car garage. The lower lakefront level includes 3 additional bedrooms and 2 additional baths, a powder room, and dedicated poolside living, ideal for entertaining or multi-generational living.
Situated within Mirror Lake, an intimate gated community of just 21 homesites, residents enjoy an uncommon pairing of lakefront serenity and wide-open golf course vistas from the adjacent Clermont National Golf Course. The setting offers privacy, exclusivity, and a lifestyle defined by natural beauty and architectural distinction.
This exceptional lot and custom designed home present a rare opportunity to build a luxury residence in one of Central Florida’s most captivating lakefront enclaves, offering privacy, exclusivity, and a thoughtful architectural vision. More than a place to live, Mirror Lake is a retreat for those who appreciate distinction, natural beauty, and a lifestyle designed with intention and differentiation. Close to all things but miles away in Lifestyle, this unique homesite is one of the most captivating sites in Mirror Lake —offering a timeless setting and an extraordinary canvas for your custom home. Call us to reserve this extraordinary Lot while you meet with MAREA Homes to explore this home design further and take next steps to making Mirror Lake your "Dream Home Come True!" There may be additional design fees from the Builder if the offered Home design is materially changed by Buyer....
Contact an agent
Home facts
- Year built:2027
- Listing ID #:O6391722
- Added:47 day(s) ago
- Updated:May 10, 2026 at 12:01 PM
Rooms and interior
- Bedrooms:4
- Total bathrooms:5
- Full bathrooms:4
- Half bathrooms:1
- Flooring:Tile
- Dining Description:Eat In Kitchen, Living Room/Dining Room Combo
- Kitchen Description:Dishwasher, Eat-in Kitchen, Microwave, Range, Refrigerator
- Bedroom Description:Walk-In Closet(s)
- Living area:4,990 sq. ft.
Heating and cooling
- Cooling:Central Air
- Heating:Electric
- Central air:Yes
Structure and exterior
- Roof:Shingle
- Year built:2027
- Building area:4,990 sq. ft.
- Lot area:0.3 Acres
- Construction Materials:Block
- Exterior Features:Outdoor Kitchen
- Foundation Description:Slab
- Levels:2 Story
Schools
- High school:Lake Minneola High
- Middle school:East Ridge Middle
- Elementary school:Grassy Lake Elementary
Utilities
- Water:Public, Water Available
- Sewer:Private Sewer, Sewer Available
Finances and disclosures
- Price:$2,721,250
- Price per sq. ft.:$488.55
- Tax amount:$3,002 (2025)
Features and amenities
- Appliances:Dishwasher, Microwave, Range, Refrigerator
- Laundry features:Inside
- Amenities:Eat-in Kitchen, Electricity Available, Gated, Living Room/Dining Room Combo, Open Floorplan, Walk-In Closet(s)
- Pool features:In Ground, Private Pool
Parking
- Parking description:Attached Garage
- Garage:Yes
- Garage spaces:2
New listings near 169 Tranquil Mirror Lake Court #Lot 7
- New
$369,000Active2 beds 2 baths1,884 sq. ft.4127 Kingsley Street, CLERMONT, FL 34711
MLS# G5111723Listed by: REAL BROKER, LLC - New
$499,500Active4 beds 3 baths2,075 sq. ft.10053 Spring Lake Drive, CLERMONT, FL 34711
MLS# O6406524Listed by: EXP REALTY LLC - New
$430,000Active4 beds 2 baths1,868 sq. ft.16839 Rockwell Heights Lane, CLERMONT, FL 34711
MLS# G5111678Listed by: OPTIMA ONE REALTY, INC. - New
$314,900Active2 beds 2 baths1,572 sq. ft.3716 Kingswood Court, CLERMONT, FL 34711
MLS# G5111683Listed by: REAL BROKER, LLC - New
$425,000Active3 beds 2 baths1,816 sq. ft.3445 Capland Avenue, CLERMONT, FL 34711
MLS# G5112125Listed by: RE/MAX TITANIUM GROUP - New
$465,000Active3 beds 2 baths1,485 sq. ft.17241 Cagan Crossings Boulevard, CLERMONT, FL 34714
MLS# S5149242Listed by: 365 REALTY, INC. - New
$475,000Active3 beds 2 baths1,485 sq. ft.17268 Cagan Crossings Boulevard, CLERMONT, FL 34714
MLS# S5149243Listed by: 365 REALTY, INC. - New
$975,000Active4 beds 3 baths2,401 sq. ft.13300 Skiing Paradise Boulevard, CLERMONT, FL 34711
MLS# O6406453Listed by: DAILLAND REAL ESTATE - New
$595,000Active4 beds 3 baths3,044 sq. ft.16741 Tall Grass Lane, CLERMONT, FL 34711
MLS# G5112133Listed by: COLDWELL BANKER HUBBARD HANSEN - New
$241,000Active1 beds 1 baths481 sq. ft.2450 Cypress Street, CLERMONT, FL 34714
MLS# G5112118Listed by: DOWN HOME REALTY, LLLP