206 W Mirror Lake Drive, Fruitland Park, FL 34731
Local realty services provided by:Better Homes and Gardens Real Estate Thomas Group
Listed by:karen kamperman
Office:keller williams cornerstone re
MLS#:G5102944
Source:MFRMLS
Price summary
- Price:$389,000
- Price per sq. ft.:$154
About this home
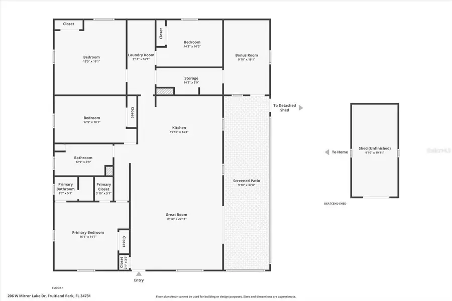
Lovely 4 bedroom, 2 bathroom home on corner lot with no homes behind is perfect for an active family. Roof 2023, HVAC 2021 and Hot Water Heater 2015. With ample living space, extra storage, large bedrooms, fenced in yard with no homes behind, and large enclosed porch you get the best of inside and outside!
This home features a covered entry and convenient parking pad at the front. Step inside to find a spacious open floor plan designed for comfortable living and entertaining. The great room showcases wood ceilings with decorative beams, chair rail detailing, and sliding doors leading to the screened, covered lanai overlooking the large, fenced yard offers privacy and peaceful views.
The open kitchen boasts a large wood-topped island with a breakfast bar and sink, Jenn-Air cooktop, built-in oven, pantry closet, beverage refrigerator, and second sink, making it perfect for cooking and entertaining.
The master bedroom features an ensuite bath with a walk-in shower, dual closets—one walk-in and one built-in with shelving—for extra storage. A split bedroom design ensures privacy and space for all.
The bonus room offers versatility as a gym or workout space, complete with rubber tile flooring and direct access to the screened and covered lanai. Leading to the bonus room is a large storage space offering room for organization while serving as a seamless passage to the adjoining room.
Enjoy the convenience of an interior laundry closet with a new washer and dryer, making chores a breeze. Outside, the large fenced yard provides a safe haven for pets and family, complemented by a storage shed for all your outdoor needs.
Additional highlights include wood-look laminate, carpet, and vinyl flooring, new T1-11 exterior siding, exterior storage shed, gutters all around, security cameras, fiber optics availability, and a single driveway along the side of the home.
This home combines comfort, charm, and functionality—ready for you to move in and make it your own! Close to downtown Fruitland Park, City Hall, the Library and many churches. Easy access to shopping on CR 466A. Call to make your appointment to see it today!
Contact an agent
Home facts
- Year built:1975
- Listing ID #:G5102944
- Added:2 day(s) ago
- Updated:October 13, 2025 at 12:05 PM
Rooms and interior
- Bedrooms:4
- Total bathrooms:2
- Full bathrooms:2
- Living area:2,121 sq. ft.
Heating and cooling
- Cooling:Central Air
- Heating:Heat Pump
Structure and exterior
- Roof:Shingle
- Year built:1975
- Building area:2,121 sq. ft.
- Lot area:0.45 Acres
Utilities
- Water:Public, Water Connected
- Sewer:Septic Tank, Sewer Connected
Finances and disclosures
- Price:$389,000
- Price per sq. ft.:$154
- Tax amount:$2,053 (2024)
New listings near 206 W Mirror Lake Drive
- New$185,000Active2 beds 2 baths1,152 sq. ft.
20 Captains Point, FRUITLAND PARK, FL 34731
MLS# G5103227Listed by: ERA GRIZZARD REAL ESTATE - New$385,000Active3 beds 2 baths1,558 sq. ft.
937 Kauska Way, THE VILLAGES, FL 32163
MLS# G5103131Listed by: COLDWELL BANKER HUBBARD HANSEN - New$439,000Active3 beds 2 baths1,646 sq. ft.
36130 S Grays Airport Road, FRUITLAND PARK, FL 34731
MLS# G5103213Listed by: ERA GRIZZARD REAL ESTATE - New$465,000Active4 beds 3 baths2,722 sq. ft.
1813 Forest Glen Drive, FRUITLAND PARK, FL 34731
MLS# G5102707Listed by: COLDWELL BANKER VANGUARD LIFESTYLE REALTY - New$549,900Active4 beds 3 baths2,892 sq. ft.
5035 Magnolia Ridge Road, FRUITLAND PARK, FL 34731
MLS# G5103085Listed by: ARROWSMITH REALTY, INC - New$274,900Active3 beds 2 baths1,680 sq. ft.
408 Century Avenue, FRUITLAND PARK, FL 34731
MLS# G5103086Listed by: ARROWSMITH REALTY, INC - New$680,000Active3 beds 3 baths2,409 sq. ft.
1092 Incorvaia Way, THE VILLAGES, FL 32163
MLS# G5103012Listed by: REALTY EXECUTIVES IN THE VILLAGES - New$489,900Active3 beds 2 baths1,880 sq. ft.
939 Koller Court, THE VILLAGES, FL 32163
MLS# O6350238Listed by: REAL PROPERTY INTERNATIONAL - New$325,000Active2 beds 2 baths1,704 sq. ft.
4230 North Road, FRUITLAND PARK, FL 34731
MLS# G5102752Listed by: KELLER WILLIAMS ELITE PARTNERS III REALTY